Starter home with private garden and two allocated parking spaces.
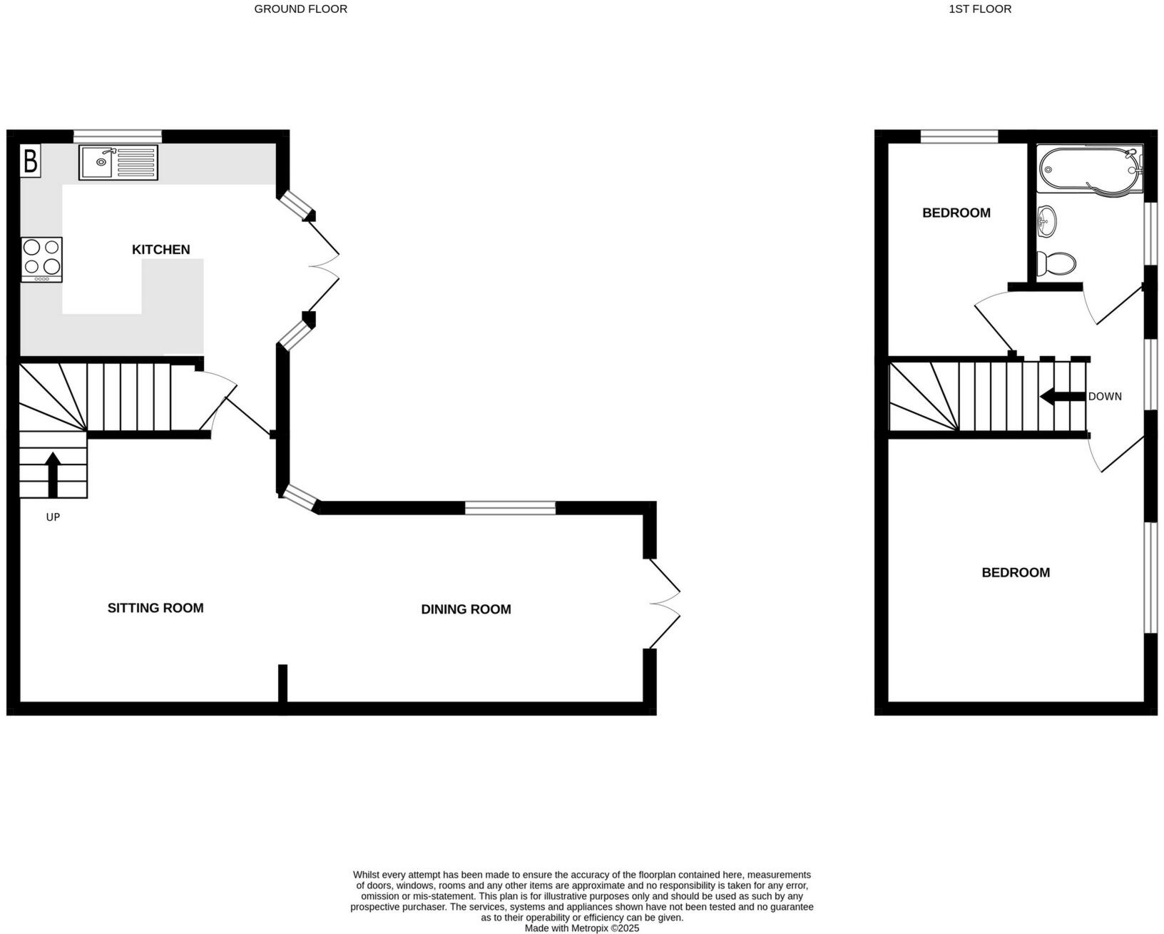
Two bedrooms in a compact 552 sq ft layout
This compact end-of-terrace home at Castle Mews is aimed squarely at first-time buyers seeking a low-maintenance starter property with parking. The ground floor offers an open-plan sitting/dining arrangement and a contemporary kitchen, while two upstairs bedrooms fit neatly into the modest footprint. The current owners have modernised key areas, so the house is ready to occupy with minimal immediate work.
Practical benefits include two allocated off-street parking spaces, an enclosed low-maintenance garden with gated access, gas central heating and double glazing throughout. The freehold tenure and cul-de-sac location add everyday convenience and a degree of privacy. Room sizes are modest but functional, making the home suitable for a couple, small family or buy-to-let investor.
Important limitations are clear: total internal area is small (approximately 552 sq ft), and Bedroom Two is particularly compact. Local area indicators show average crime levels, average mobile and broadband speeds, and wider area socioeconomic measures suggest relative deprivation—factors buyers should weigh when comparing locations. EPC rating is awaited; buyers should expect the standard efficiency considerations for a modernised but modest property.
Viewings are recommended to appreciate the layout and modern kitchen finish; this is a practical, affordable entry on to the property ladder rather than a large-family house or luxury purchase.
1 bedroom terraced house for sale in Castle Mews, Mill Hill, Deal, CT14 — £162,000 • 1 bed • 1 bath • 490 ft²
2 bedroom terraced house for sale in Westerhout Close, Deal, CT14 — £259,950 • 2 bed • 1 bath • 549 ft²
2 bedroom terraced house for sale in Redsull Avenue, Deal, Kent, CT14 — £265,000 • 2 bed • 1 bath • 711 ft²
2 bedroom end of terrace house for sale in Canute Road, Deal, CT14 — £249,950 • 2 bed • 1 bath • 624 ft²
2 bedroom terraced house for sale in Middle Deal Road, Deal, CT14 — £290,000 • 2 bed • 1 bath • 914 ft²
1 bedroom end of terrace house for sale in Cannon Street Deal, CT14 — £190,000 • 1 bed • 1 bath • 495 ft²














































