CT14 6QX - 2 bedroom end of terrace house for sale in Canute Road, Dea…

View on Property Piper

2 bedroom end of terrace house for sale in Canute Road, Deal, CT14

Summary - 36 CANUTE ROAD DEAL CT14 6QX

2 bed 1 bath End of Terrace

End-terrace near Deal seafront with garden, parking and extension potential.
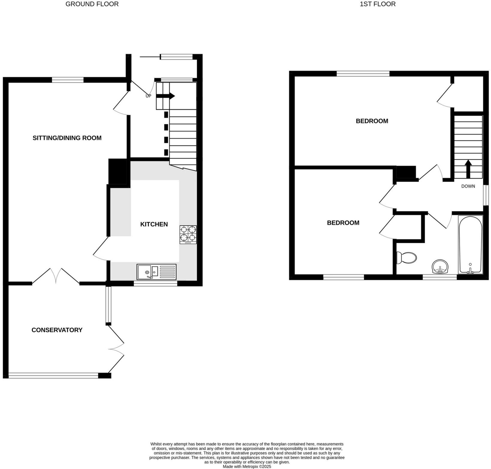
Two double bedrooms and 19ft sitting/dining room
This two-bedroom end-of-terrace sits just yards from Deal’s seafront, offering an affordable coastal entry point with no onward chain. The ground floor provides a 19ft sitting/dining room, a well-equipped kitchen and a conservatory that opens onto an enclosed rear garden approaching 40ft. Off-street parking and side access add everyday convenience.

The home is double glazed and has mains gas central heating, with an EPC rating of D. The plot has scope for a side extension subject to Dover District Council approval, so buyers seeking to add space or value will find genuine potential. The layout and room sizes suit first-time buyers, small families or buy-to-let investors.

Condition is sound but largely mid‑20th century in style; moderate cosmetic updating would maximise the property’s appeal and value. The property is freehold, in a low-crime area with fast broadband and excellent mobile signal — practical for modern living. Flooding risk is very low and council tax is described as cheap, supporting lower ongoing costs.

Viewings will show the practical strengths: sea proximity, private garden, parking and expansion potential. Important considerations include the need for cosmetic work to reach market-leading standards and that any extension requires planning and building-regulation approval.

Property Details

Brochure Descriptions

Image Descriptions

Floorplan Description

Rooms

Textual Property Features

Target Audience

AI Tags

Detected Visual Features

EPC Details

Nearby Schools

Nearest Bars And Restaurants

,,,,}

Nearest General Shops

,,}

Nearest Grocery shops

,,}

Nearest Supermarkets

,,}

Nearest Religious buildings

,,}

Nearest Medical buildings

,,,}

Nearest Leisure Facilities

,,,,}

Nearest Tourist attractions

,,}

Nearest Train stations

,,,,}

Nearest Bus stations and stops

,,,,}

Nearest Hotels

,,}

Tags

Local Market Stats

AirBnB Data

Similar Properties

Meta

High Res Images

Compatible Images

Low res Images

Thumbnails

Raw Images

High Res Floorplan Images

Compatible Floorplan Images

Low res Floorplan Images

FloorplanImages Thumbnail

Raw Floorplan Images