Ready-to-move-in family home with private garden and communal parking close to schools.
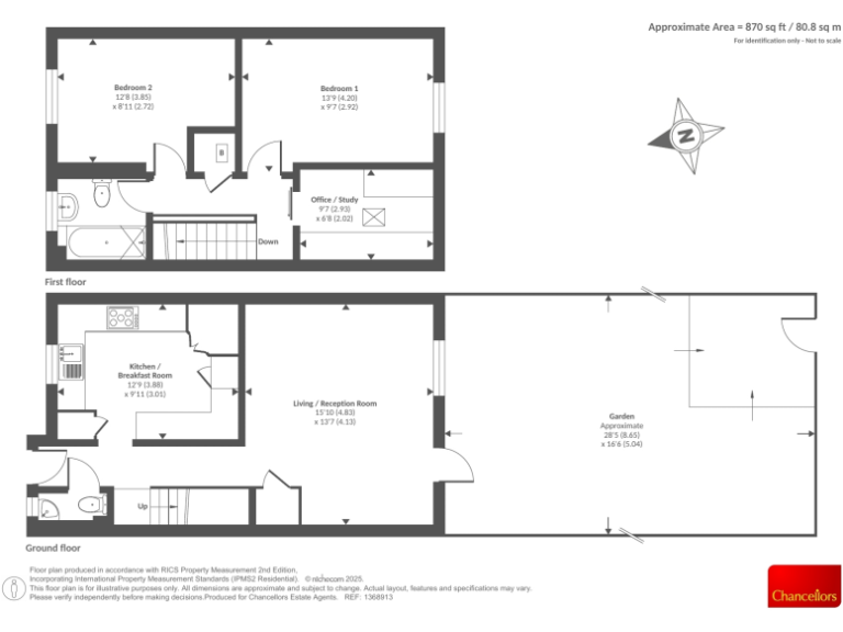
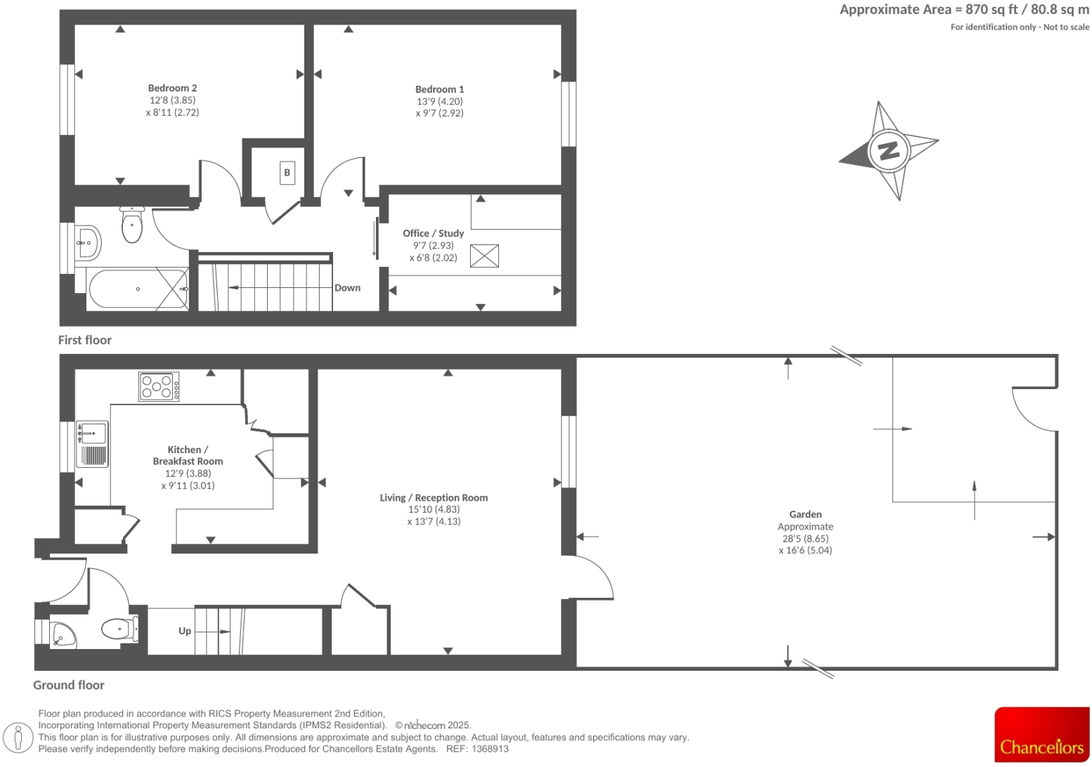
Three bedrooms, one family bathroom, plus downstairs WC
A bright, practical three-bedroom mid-terraced home tucked on a quiet no-through road in Slough. The ground floor offers a contemporary kitchen/diner, a rear lounge opening to a private garden, and a convenient downstairs WC — ideal for everyday family life. The property is freehold and measures around 870 sq ft, with useful loft access for extra storage.
This house is move-in ready with double glazing, gas central heating, and off-street communal parking accessed from the rear. Local amenities, regular bus links and several well-rated primary schools sit within easy reach, while Kennedy Park recreation grounds are under a mile away.
Notable constraints are the small plot size, a single family bathroom upstairs, and the neighbourhood classifications (constrained neighbourhoods / area deprivation). Crime levels are average; buyers should factor local market context into long-term plans. Overall, this is a practical, affordable family or first-home purchase with scope to update finishes to personal taste.
3 bedroom terraced house for sale in Wentworth Avenue, SLOUGH, SL2 — £425,000 • 3 bed • 1 bath • 969 ft²
3 bedroom end of terrace house for sale in Perryman Way, Slough, SL2 — £450,000 • 3 bed • 1 bath • 788 ft²
3 bedroom terraced house for sale in Bramber Court, Slough, SL1 — £435,000 • 3 bed • 1 bath • 768 ft²
3 bedroom end of terrace house for sale in Lower Cippenham Lane, Slough, SL1 — £450,000 • 3 bed • 2 bath • 899 ft²
3 bedroom end of terrace house for sale in Penn Road, Slough, SL2 — £460,000 • 3 bed • 2 bath • 1137 ft²
3 bedroom terraced house for sale in Gascons Grove, Slough, SL2 — £430,000 • 3 bed • 1 bath • 948 ft²






















































































