Characterful two-bedroom home with large rear garden, ideal for first-time buyers.
Desirable town-centre location, short walk to station and shops
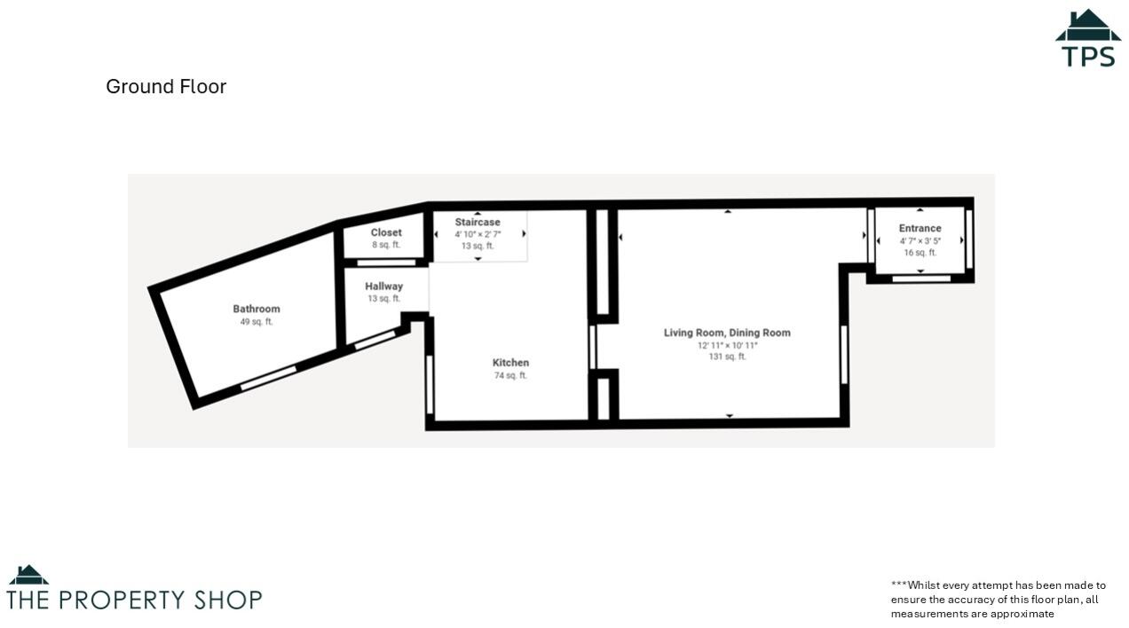
Tucked in the heart of Lostwithiel, this two-bedroom Victorian terrace offers a compact, characterful home ideal for first-time buyers. The living room feels welcoming with exposed beams and a well-maintained log burner, creating a cosy focal point for colder months. Two double bedrooms and a practical kitchen/dining area provide sensible everyday space.
A real strength is the generous rear garden — unusually spacious for a town-centre property — offering room for potting, alfresco meals or a children's play area. The property is freehold and sits within easy walking distance of the station, shops and highly regarded local schools, making daily life straightforward without needing a car.
Buyers should note the cottage’s age: solid granite walls likely lack modern cavity insulation and the EPC is D. The house is modest in size (about 509 sq ft) and some owners may want to upgrade insulation, heating controls or windows for improved efficiency. Overall, the house is well maintained but presents sensible improvement opportunities to lower running costs and increase comfort.
For a first-time purchaser seeking town-centre convenience, period charm and outdoor space, 24 Grenville Road is a rare, manageable entry into Cornish market living. It combines character features with practical amenities and good local transport links.
2 bedroom cottage for sale in Grenville Road, Lostwithiel, Cornwall, PL22 — £200,000 • 2 bed • 1 bath • 571 ft²
2 bedroom cottage for sale in Grenville Road, Lostwithiel, PL22 — £245,000 • 2 bed • 1 bath • 625 ft²
2 bedroom semi-detached house for sale in Melville Terrace, Lostwithiel, Cornwall, PL22 — £250,000 • 2 bed • 1 bath • 432 ft²
2 bedroom cottage for sale in North Street, Lostwithiel, Cornwall, PL22 — £195,000 • 2 bed • 1 bath • 588 ft²
2 bedroom end of terrace house for sale in 4 Church Lane, Lostwithiel, Cornwall, PL22 — £210,000 • 2 bed • 1 bath • 841 ft²
2 bedroom cottage for sale in King's Street , Lostwithiel , PL22 — £149,950 • 2 bed • 1 bath • 564 ft²










































