Affordable top-floor one-bedroom with parking, storage and easy access to Berkhamsted High Street..
One double bedroom top-floor flat with far-reaching views
Off-street parking plus secure personal storage locker
Compact overall size — approx. 373 sq ft (small)
No upper chain — quick completion possible
Leasehold — check lease length, ground rent and service charges
1960s build; likely scope and need for modernisation
Double glazing; boiler and radiators (mains gas)
Council tax described as cheap; low running costs expected
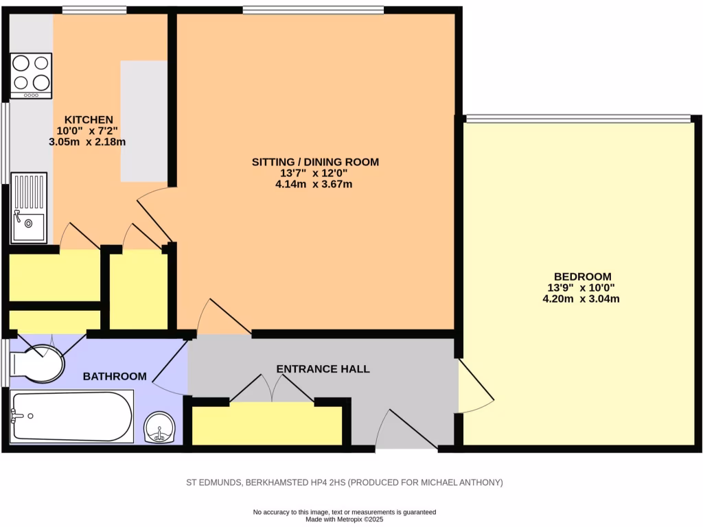
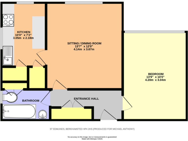
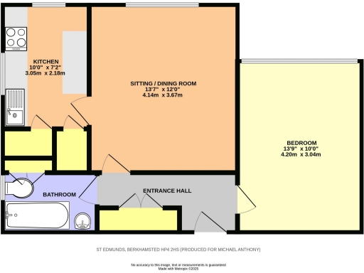
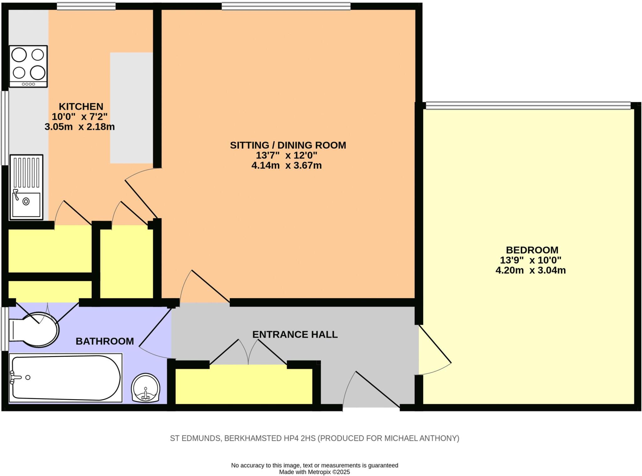
This compact top-floor one-bedroom flat offers far-reaching views across Berkhamsted and practical everyday conveniences for a first-time buyer or investor. The apartment sits in a mid-20th-century brick block and benefits from off-street parking, a secure personal storage locker and immediate access to Berkhamsted High Street — all with no upper chain.
At about 373 sq ft the accommodation is small but efficiently arranged as lounge/dining room, kitchen, bedroom and bathroom. The property is double-glazed and heated by a mains gas boiler with radiators. Its 1960s construction and traditional layout mean there’s clear scope to modernise internally to maximise space and rental or resale value.
Important practical points: the flat is leasehold (buyers should check lease length, ground rent and service charges) and ceiling heights are typical of the era, so storage and layouts need careful planning. The block is utilitarian in style and the apartment’s compact size will suit a single occupant or couple rather than a family.
Overall this is an affordable entry into Berkhamsted with parking, storage and excellent access to local shops, schools and transport. It will particularly appeal to buyers wanting a straightforward purchase with potential to update, or landlords seeking a centrally positioned rental with low running costs.
2 bedroom apartment for sale in Chiltern Park Avenue, Berkhamsted, HP4 — £285,000 • 2 bed • 1 bath • 562 ft²
2 bedroom flat for sale in High Street, Berkhamsted, Hertfordshire, HP4 — £375,000 • 2 bed • 2 bath • 588 ft²
1 bedroom flat for sale in Livingstone Walk, Hemel Hempstead, HP2 — £150,000 • 1 bed • 1 bath • 453 ft²
2 bedroom apartment for sale in Priory Court, Berkhamsted, HP4 — £335,000 • 2 bed • 1 bath • 759 ft²
2 bedroom flat for sale in Birtchnell Close, Berkhamsted, HP4 — £365,000 • 2 bed • 1 bath • 688 ft²
2 bedroom flat for sale in Manor Street, Berkhamsted, Hertfordshire, HP4 — £595,000 • 2 bed • 2 bath • 880 ft²














































