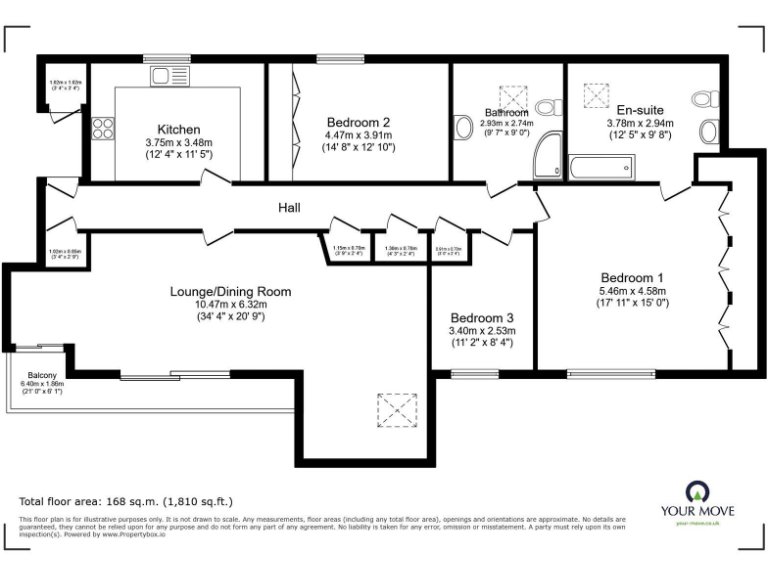
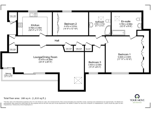
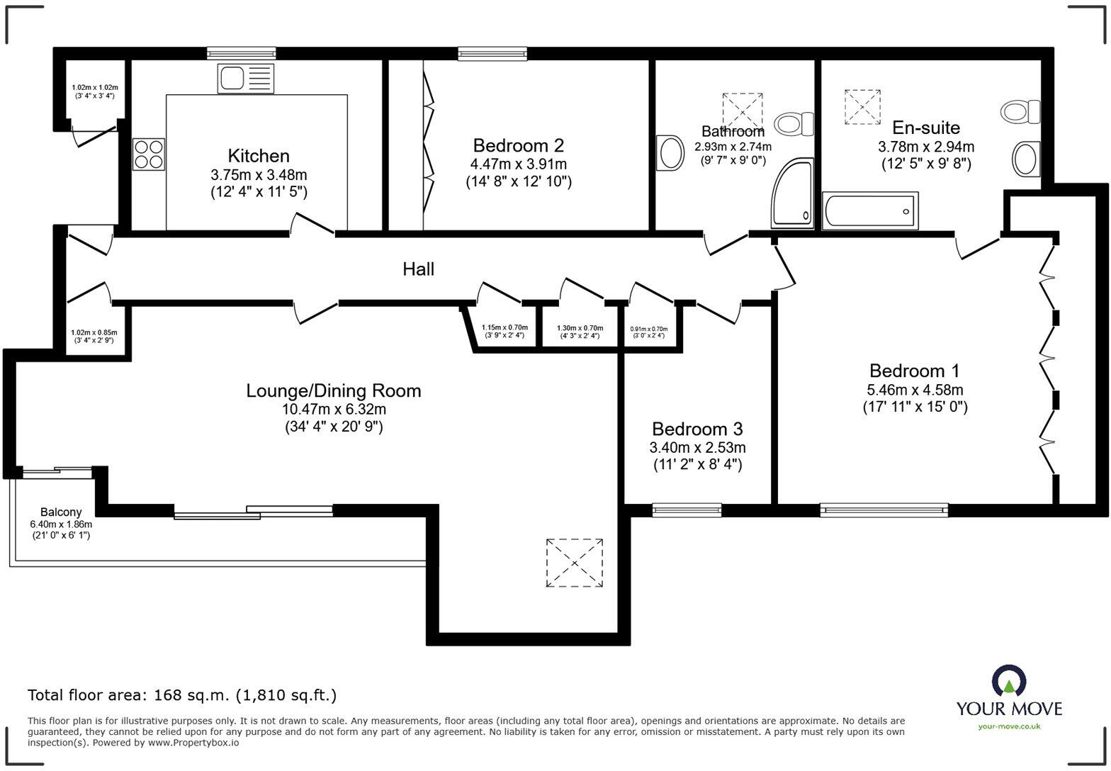
**Standout Features:**
- Expansive 1800 sq ft penthouse layout
- Three double bedrooms, including a master with en-suite
- Huge open-plan living room with balcony
- Secure allocated parking for two cars
- Access to mature communal gardens
- No chain, viewing recommended
This spectacular penthouse apartment in Cedars Court offers an unparalleled blend of space and modern elegance, ideal for families and professionals alike. Encompassing an impressive 1800 sq ft, it rivals larger detached homes while providing luxury living with captivating views of the Leicestershire countryside. The layout boasts three generously-sized double bedrooms, including a master with an en-suite, and a vast open-plan living area that flows onto a charming balcony, perfect for entertaining or enjoying serene evenings.
The property is nestled within well-maintained grounds, making it an oasis of tranquility, while the secure gated community enhances accessibility and safety. Offering hassle-free living with no upward chain, this unique apartment is a rare find in today’s market and is sure to attract significant interest. Don’t miss the chance to experience spacious living in a modern environment—schedule your viewing today before it’s gone!
2 bedroom apartment for sale in Cedars Court, Off Ward Close, Barwell, LE9 — £229,950 • 2 bed • 2 bath • 927 ft²
2 bedroom flat for sale in Ward Close, Barwell, Leicester, Leicestershire, LE9 — £220,000 • 2 bed • 2 bath • 916 ft²
3 bedroom apartment for sale in Watkin Road, Freemans Meadow, Leicester, LE2 — £250,000 • 3 bed • 3 bath • 1324 ft²
2 bedroom apartment for sale in Glenhills Court, Little Glen Road, Glen Parva, Leicester, LE2 9DH, LE2 — £160,000 • 2 bed • 1 bath • 944 ft²
1 bedroom flat for sale in Apt 67 Mitchian Grand Union Building, 55 Northgate Street, Leicester, Leicestershire, LE3 — £250,000 • 1 bed • 1 bath • 452 ft²
3 bedroom flat for sale in Apartment 34, LE2 — £269,950 • 3 bed • 2 bath • 1055 ft²






























































































