Spacious three-bedroom apartment near town, station and seafront.
Chain free; share of the freehold with lift access
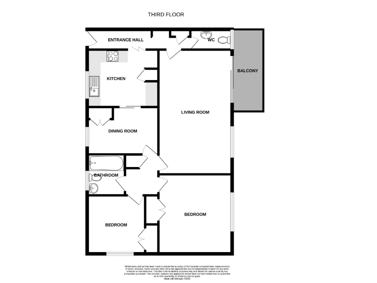
This third-floor three-bedroom flat sits in a mid‑century building close to Eastbourne town centre, the train station and seafront — a practical location for family life, commuting and leisure. The sitting/dining room opens onto a large private balcony with views over Devonshire Park tennis courts and towards the South Downs, offering useful outdoor space and a pleasant outlook.
The accommodation is straightforward and adaptable: an entrance hall with storage, a generous reception room, kitchen, family bathroom plus a separate WC, and three bedrooms (one currently used as a dining room). The property benefits from a share of the freehold, lift access, double glazing and gas central heating via boiler and radiators. It is offered chain free which suits a quicker move.
Buyers should note the practical running costs and building details: a service charge of about £800 per quarter (c.£3,200 pa), EPC rating D and a construction period of 1967–1975. The building’s cavity walls are assumed uninsulated which could affect heating bills and future retrofit costs. Lease length and letting/pets policy are not confirmed, so check terms if buy-to-let or pet ownership is important.
This flat will suit a family or anyone wanting roomy, well‑located accommodation with immediate access to town amenities and good transport links. It presents a comfortable home as‑is and also offers scope to update kitchens or bathrooms to increase comfort and value.
3 bedroom flat for sale in Blackwater Road, Eastbourne, BN21 — £260,000 • 3 bed • 1 bath • 888 ft²
3 bedroom flat for sale in Compton Street, Eastbourne, BN21 — £350,000 • 3 bed • 2 bath • 1216 ft²
3 bedroom apartment for sale in Blackwater Road, Eastbourne, East Sussex, BN21 — £375,000 • 3 bed • 1 bath • 1936 ft²
3 bedroom flat for sale in Burlington Place, Eastbourne, BN21 — £220,000 • 3 bed • 2 bath • 1046 ft²
3 bedroom apartment for sale in Vicarage Road, Eastbourne, East Sussex, BN20 — £315,000 • 3 bed • 1 bath • 1077 ft²
2 bedroom flat for sale in Spencer Road, Eastbourne, BN21 — £185,000 • 2 bed • 1 bath • 605 ft²


















































