Turnkey four-bed home with large garden and annexe potential.
Four double bedrooms including large first-floor master suite
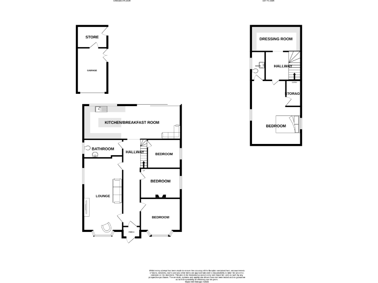
Recently and comprehensively renovated, this four-bedroom detached chalet bungalow offers a contemporary, move-in ready home on a large plot in Tiptree. The ground floor centres on generous living spaces — a 28ft living/dining room with a feature log burner and a 27ft kitchen/family room with bespoke cabinetry, quartz worktops and bi-fold doors opening to the patio and garden.
The entire first floor is dedicated to a spacious master suite with a large dressing room and a modern en-suite shower room, creating a private owner’s retreat. Practical extras include an in-and-out gravel driveway, garage with rear access to an adjoining powered studio, an outhouse with lighting, and a covered BBQ area for year-round outdoor entertaining.
The property is freehold, has fast broadband and excellent mobile signal, and sits in a low-crime, affluent neighbourhood with several well-rated primary schools nearby — making it suitable for family life or buyers seeking generous single-level living with upstairs privacy.
Notable considerations: the garage and studio have potential for annexe conversion but would require planning permission and associated costs. While recently modernised throughout, buyers should confirm council tax banding and any works they may want to personalise, as this is being sold turnkey.
4 bedroom detached bungalow for sale in Oak Road, Tiptree, CO5 — £400,000 • 4 bed • 1 bath • 1002 ft²
4 bedroom detached bungalow for sale in Anchor Road, Tiptree, Colchester, CO5 — £500,000 • 4 bed • 3 bath • 1012 ft²
3 bedroom detached bungalow for sale in Morley Road, Tiptree, CO5 — £500,000 • 3 bed • 1 bath • 1058 ft²
3 bedroom detached bungalow for sale in Green Lane, Tiptree, CO5 — £500,000 • 3 bed • 2 bath • 1236 ft²
3 bedroom detached bungalow for sale in Tiptree, CO5 — £495,000 • 3 bed • 2 bath • 623 ft²
4 bedroom detached house for sale in Winston Avenue, Tiptree, Colchester, CO5 — £525,000 • 4 bed • 2 bath • 970 ft²














































































































