CO5 0JU - 4 bed winston avenue detached in Witham, CO5 0JU

View on Property Piper

4 bedroom detached house for sale in Winston Avenue, Tiptree, Colchester, CO5

Summary - Winston Avenue, Tiptree, Colchester CO5 0JU

4 bed 2 bath Detached

Contemporary four-bedroom detached home with landscaped garden and garage, ideal for families..
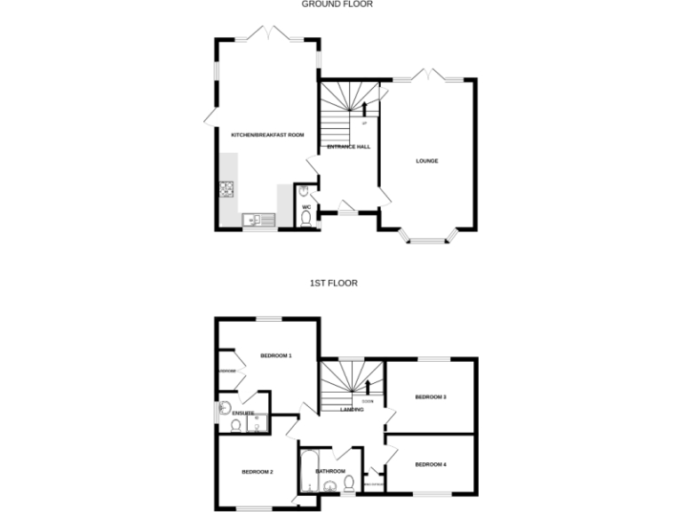
- Four bedrooms with en-suite to the master
- Large open-plan kitchen/diner/family room with French doors
- Separate lounge with bay window and rear access
- Landscaped rear garden, patio, summer house and vegetable patch
- Detached garage and driveway with rear gated access
- Double glazed and gas central heating throughout
- Total internal area approx. 970 sq ft (relatively small footprint)
- Council tax band above average
Set on a quiet Tiptree street, this four-bedroom detached home offers practical family living with modern finishes. The ground floor features a large open-plan kitchen/diner/family room and a separate lounge, both with French doors to the landscaped rear garden — ideal for children and entertaining. The principal bedroom has an en-suite; three further bedrooms and a family bathroom sit on the first floor.

Practical comforts include gas central heating, double glazing throughout, a detached garage and driveway parking, plus a ground-floor cloakroom. The rear garden is landscaped with a porcelain patio, lawn, vegetable patch and summer house, and double gates provide rear access to the garage. Freehold tenure and no flood risk add security for buyers.

Notable considerations: the listing notes the overall footprint is relatively small (total approx. 970 sq ft) so rooms, while well-proportioned, are compact compared with larger family homes. Council tax is above average for the area. The property is presented to a show-home standard but buyers seeking larger floor area or extended accommodation should allow for limited expansion potential without major works.

Located in a very affluent, semi-rural fringe area with low crime and good primary schools nearby, this house suits families wanting a modern, low-maintenance home with easy parking and outside space. It will particularly appeal to buyers prioritising turnkey condition and outdoor living over expansive internal square footage.

Property Details

Brochure Descriptions

Image Descriptions

Rooms

Textual Property Features

Target Audience

AI Tags

Detected Visual Features

Nearby Schools

Nearest Bars And Restaurants

,,,,}

Nearest General Shops

,,}

Nearest Grocery shops

,,}

Nearest Supermarkets

,,}

Nearest Religious buildings

,,}

Nearest Medical buildings

,,,}

Nearest Airports

}

Nearest Leisure Facilities

,,,,}

Nearest Tourist attractions

,,}

Nearest Train stations

,,,,}

Nearest Bus stations and stops

,,,,}

Nearest Hotels

,,}

Tags

Local Market Stats

Similar Properties

Meta

High Res Images

Compatible Images

Low res Images

Thumbnails

Raw Images

High Res Floorplan Images

Compatible Floorplan Images

Low res Floorplan Images

FloorplanImages Thumbnail

Raw Floorplan Images