Period six-bedroom home with garden apartment, double garage and proven holiday-let potential in Holcombe.
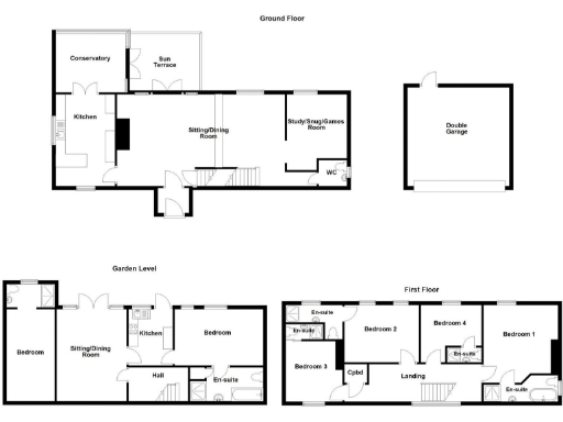
Six bedrooms including garden-level two-bedroom apartment
Set on a private road in sought-after Holcombe, this substantial Victorian Coach House offers flexible accommodation ideal for dual-family living, home-and-income or continued holiday-let use. The main house features a large sitting/dining room with sun terrace, conservatory and four ensuite bedrooms across the upper floors, while a self-contained garden-level apartment provides two more ensuite bedrooms and direct garden access.
Characterful features include exposed beams, vaulted landing, timber floors and a multi-fuel burner, with some rooms enjoying sea and countryside glimpses. Outside, a detached double garage, raised sun terrace, cobbled courtyard and low-maintenance walled garden create useful outdoor living and secure parking space for several vehicles.
The property is offered freehold and has a successful holiday-let history, presenting clear income potential. Practical considerations: windows are double glazed (installed before 2002), external walls are original granite likely without modern insulation, and the EPC is D (58) with potential to improve to C (79). Council tax sits above average (Band E).
5 bedroom detached house for sale in Windward Lane, Holcombe, Dawlish, EX7 0JQ, EX7 — £695,000 • 5 bed • 3 bath • 2599 ft²
4 bedroom detached house for sale in Woodland Avenue, Teignmouth, TQ14 — £595,000 • 4 bed • 2 bath • 1459 ft²
4 bedroom detached house for sale in Windward Rise, Holcombe., EX7 — £650,000 • 4 bed • 3 bath • 2293 ft²
5 bedroom semi-detached house for sale in Shutterton Lane, Dawlish, EX7 — £575,000 • 5 bed • 3 bath • 1883 ft²
3 bedroom detached house for sale in East Cliff Road, Dawlish, EX7 — £550,000 • 3 bed • 2 bath • 1405 ft²
4 bedroom detached house for sale in Strand Hill, Dawlish, EX7 — £550,000 • 4 bed • 2 bath • 2021 ft²






















































































































































