Smartly presented three-bed with conservatory, drive and garden near town amenities.
- End-of-cul-de-sac location within short walk to town centre
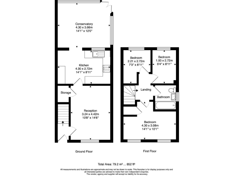
- Conservatory extends living and opens onto patio and lawn
- Kitchen with integrated appliances and space for large fridge
- Driveway provides off-street parking; powered garden shed
- Single family bathroom only; one shower over bath
- Small overall internal size (c. 713 sq ft) and small plot
- EPC D; built c.1996–2002 with gas central heating
- Local crime level above average, stated factually
Set at the quiet end of a small cul-de-sac, this well-presented three-bedroom semi-detached home offers practical family living within easy walking distance of Ashby-de-la-Zouch town centre. The front lounge is bright and includes useful understairs storage, while the adjoining conservatory extends the living space and opens onto a neatly maintained rear garden with patio and powered shed.
The kitchen is well laid out with integrated appliances and room for an American-style fridge-freezer; a handy kneehole desk suits home homework or a small workspace. Upstairs provides three bedrooms and a single family bathroom with an electric shower over the bath, suitable for a growing family or first-time buyers looking for a move-in-ready home.
Outside, a tarmac driveway provides convenient off-street parking and a side gate gives direct access to the enclosed rear garden. Built around the late 1990s–early 2000s, the house benefits from cavity wall insulation, double glazing and gas central heating via a boiler and radiators. The property is freehold with a low council tax band and fast broadband — practical for modern family life.
Buyers should note the property sits on a small overall footprint and internal space is modest (circa 713 sq ft). There is only one bathroom, which may be limiting for larger families, and local crime statistics are above average for the area. The EPC is rated D. These factors are reflected in the price and make the house a realistic option for first-time buyers, downsizers or investors seeking a straightforward, low-maintenance home close to local schools and amenities.
3 bedroom semi-detached house for sale in Millfield Close, Ashby-De-La-Zouch, LE65 — £245,000 • 3 bed • 1 bath • 776 ft²
3 bedroom semi-detached house for sale in Saxon Way, Ashby-De-La-Zouch, LE65 — £240,000 • 3 bed • 1 bath • 723 ft²
3 bedroom semi-detached house for sale in Brick Kiln Lane, Ashby-De-La-Zouch, LE65 — £270,000 • 3 bed • 1 bath • 953 ft²
3 bedroom town house for sale in Denstone Close, Ashby-De-La-Zouch, Leicestershire, LE65 — £240,000 • 3 bed • 1 bath • 711 ft²
3 bedroom semi-detached house for sale in Trinity Court, Ashby, Ashby-De-La-Zouch, LE65 — £239,950 • 3 bed • 1 bath • 646 ft²
3 bedroom semi-detached house for sale in Burton Road, Ashby-De-La-Zouch, LE65 — £215,000 • 3 bed • 1 bath • 883 ft²


















































