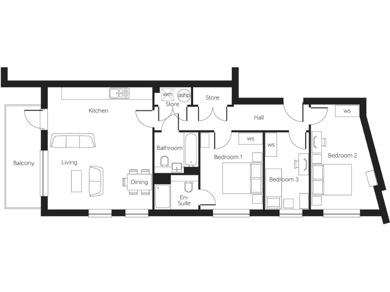
**Standout Features:**
- **Spacious open-plan living:** Generous kitchen, dining, and living area connecting to a large private balcony.
- **Three well-sized bedrooms:** Bedroom 1 with en-suite for added convenience, perfect for families or sharers.
- **Modern amenities:** Equipped with ultrafast fibre broadband, air source heat pump technology, and electric towel warmers in bathrooms.
- **Storage solutions:** Two storage cupboards in the entrance hallway for organized living.
- **Long leasehold:** 999 years remaining, reducing to maintain value.
**Concerns:**
- **High crime rate** in the local area, necessitating caution.
- **Service charge:** Annually estimated at £1,546, which may affect long-term affordability.
This contemporary 3-bedroom apartment in the heart of Reading offers a perfect blend of modern living and urban convenience. Its open-plan kitchen and living space are ideal for entertaining and family life, with bi-folding doors that encourage outdoor enjoyment on a substantial private balcony. The versatile layout features three bedrooms, including a spacious master with an en-suite, making it suitable for families or young professionals looking for shared living arrangements.
With a focus on comfort and modern design, the apartment also includes smart tech features like ultrafast fibre broadband and energy-efficient heating, offering a lifestyle that is both luxurious and practical. Additionally, the proximity to local amenities, schools, and the city center enhances its appeal. However, potential buyers should take note of the area's high crime rates and the service charges associated with upkeep. Act quickly to explore the potential of this vibrant urban dwelling—properties like this won't last long on the market!
3 bedroom apartment for sale in Caversham Road,
Caversham,
Reading,
RG1 8AR, RG1 — £450,000 • 3 bed • 1 bath • 953 ft²
2 bedroom apartment for sale in Flat 4, 1 Carters Close, Reading, RG1 — £380,000 • 2 bed • 2 bath • 727 ft²
2 bedroom apartment for sale in Alfred Street, Reading, Berkshire, RG1 — £340,000 • 2 bed • 2 bath • 643 ft²
2 bedroom apartment for sale in Abbey Square, Reading, Berkshire, RG1 — £270,000 • 2 bed • 1 bath • 737 ft²
2 bedroom apartment for sale in Da Vinci House, 1 Nightingale Way, Reading, Berkshire, RG30 — £335,000 • 2 bed • 2 bath • 708 ft²
2 bedroom apartment for sale in Caversham Road, Reading, RG1 — £365,000 • 2 bed • 2 bath • 699 ft²














































