Contemporary three-bedroom new-build with balcony and NHBC cover, ideal for commuters..
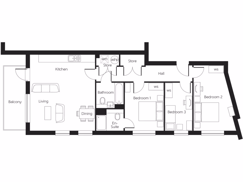
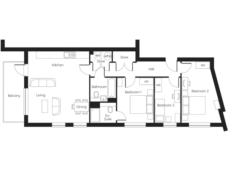
- Three-bedroom new-build apartment, c.953 sq ft
- Open-plan triple-aspect living area with balcony
- Fitted kitchen with integrated appliances
- Bedroom 1 described with en suite; verify bathroom count
- 10-year NHBC Buildmark policy included
- Leasehold with 999 years remaining
- Annual service charge c. £1,546.14; estate charge £165
- Area recorded as very high crime and locally deprived
This newly built three-bedroom apartment offers contemporary, low-maintenance living across approximately 953 sq ft. The open-plan, triple-aspect kitchen/living/dining area leads to a balcony, bringing generous natural light and flexible space for daily life or entertaining. The fitted kitchen includes integrated appliances and a stylish finish, backed by a 10-year NHBC Buildmark policy for structural reassurance.
Bedroom 1 is described as having an en suite, with additional bedrooms suitable for family use, home office, or guest rooms. Two useful storage cupboards and an audio entry system add everyday convenience. The long 999-year lease provides security of tenure typical of new developments.
Practical costs and local context are important here: the annual service charge is estimated at £1,546.14 plus an estate management charge of £165, and ground rent is a peppercorn. Council tax band is not yet confirmed. The property sits in an inner-city, cosmopolitan area with excellent mobile and broadband connectivity and good transport links—appealing for commuters—but it is also recorded as having very high crime and local area deprivation, which may concern some buyers.
This apartment suits first-time buyers and commuting professionals seeking a modern new-build close to Reading’s northern hub. Prospective purchasers should verify the exact bathroom count (the description references an en suite and a family bathroom, while the supplied bathroom total is one) and review service charge details and local safety information before viewing.
1 bedroom apartment for sale in Caversham Road,
Caversham,
Reading,
RG1 8AR, RG1 — £282,500 • 1 bed • 1 bath • 561 ft²
1 bedroom apartment for sale in Caversham Road,
Caversham,
Reading,
RG1 8AR, RG1 — £290,000 • 1 bed • 1 bath • 590 ft²
1 bedroom apartment for sale in Caversham Road,
Caversham,
Reading,
RG1 8AR, RG1 — £282,500 • 1 bed • 1 bath • 570 ft²
1 bedroom apartment for sale in Caversham Road,
Caversham,
Reading,
RG1 8AR, RG1 — £282,500 • 1 bed • 1 bath • 560 ft²
3 bedroom apartment for sale in Caversham Road,
Caversham,
Reading,
RG1 8AR, RG1 — £455,000 • 3 bed • 1 bath • 974 ft²
1 bedroom apartment for sale in Caversham Road,
Caversham,
Reading,
RG1 8AR, RG1 — £285,000 • 1 bed • 1 bath • 560 ft²






































