**Standout Features:**
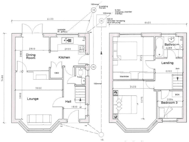
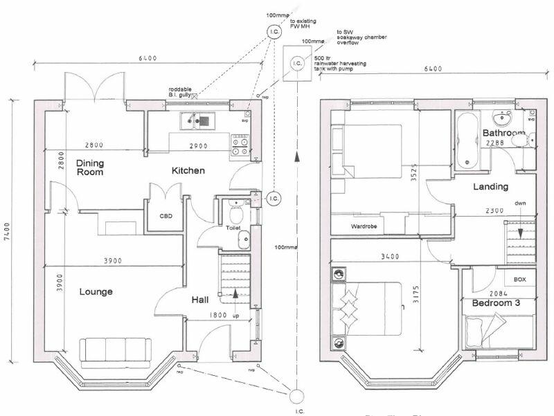
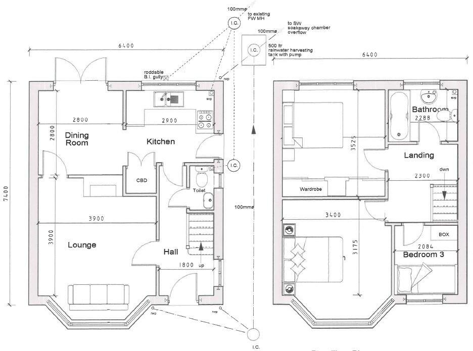
- Freehold building plot
- Planning permission in place (3-bedroom home)
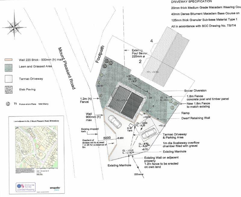
- Popular Mount Pleasant area with local amenities
- Clear neighborhood views with privacy from bordering fencing
- Fast broadband speeds
**Potential Concerns:**
- High local crime rates
- Average area deprivation
- Average sized plot
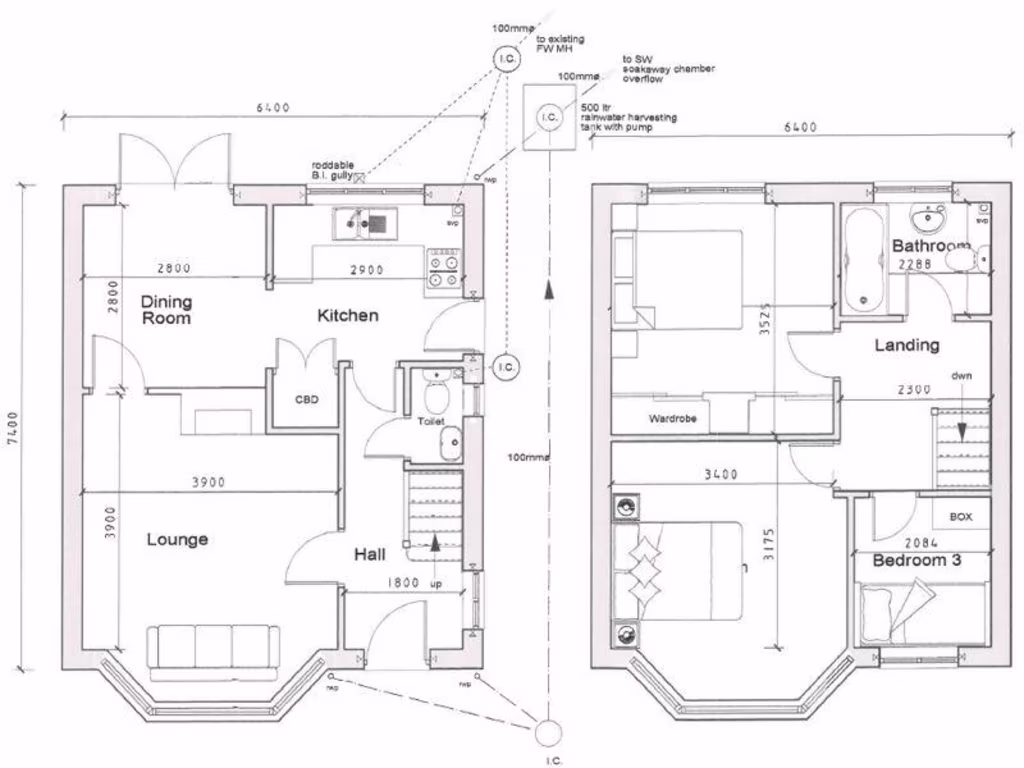
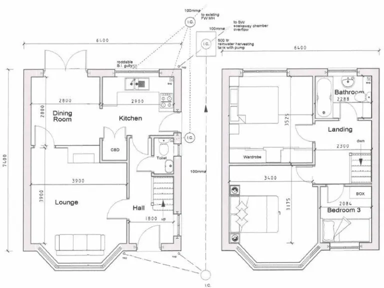
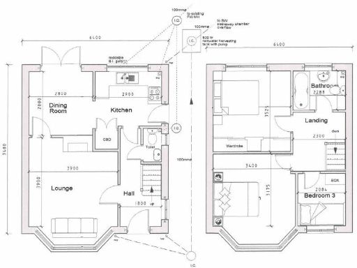
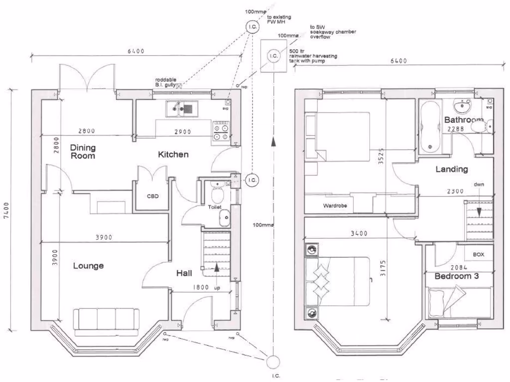
Discover an exciting opportunity to develop your dream home in the sought-after area of Mount Pleasant, Shrewsbury. This freehold building plot boasts approved planning consent for a detached three-bedroom residence (Application no: 21/00875/REM), allowing you to create a bespoke family space in a vibrant community. With convenient access to an array of local amenities, including schools rated 'Good' by Ofsted and numerous shops and services, you'll find everything you need just moments away.
While the plot's size is modest, it offers the potential for a spacious home and a lovely garden, all framed by a fenced perimeter providing privacy. Keep in mind that the area has a high crime rate and average levels of deprivation; however, with swift broadband and a residential atmosphere, this location combines comfort with convenience. Don't miss out on this rare chance to secure land for your future home—explore the possibilities today!
Plot for sale in Building Plot East Of Mount Pleasant Road, Shrewsbury, SY1 3BQ, SY1 — £90,000 • 1 bed • 1 bath • 580 ft²
Land for sale in Land by Heathgates, Shrewsbury, SY1 — £150,000 • 1 bed • 1 bath
Land for sale in Land by Heathgates, Shrewsbury, SY1 — £150,000 • 1 bed • 1 bath
Plot for sale in Shelton Lane, Shrewsbury, SY3 — £175,000 • 1 bed • 1 bath • 632 ft²
Plot for sale in Building Plot - The Mount Nursery, Minsterley Road, Pontesbury, Shrewsbury, SY5 0QJ, SY5 — £140,000 • 1 bed • 1 bath
Land for sale in Land Adjacent to 38 Longden Road, Coleham, Shrewsbury, SY3 7HE, SY3 — £300,000 • 1 bed • 1 bath






















