**Standout Features:**
- Freehold plot in the tranquil village of Pontesbury.
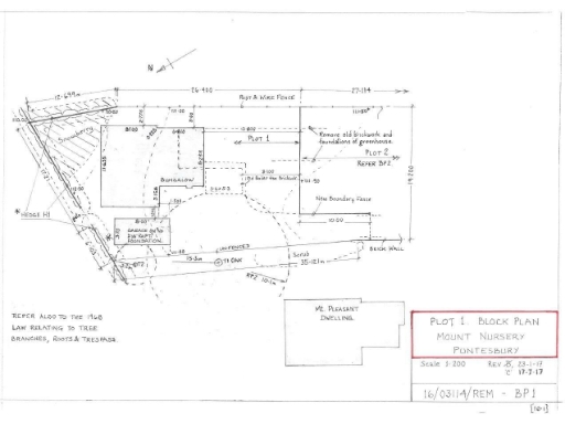
- Approved planning permission for a 2-bedroom detached bungalow.
- Expansive countryside views and large garden potential.
- Located roughly 8 miles southeast of Shrewsbury.
- Affluent area with low crime rates and excellent mobile signal.
This remarkable plot offers the perfect combination of charm and potential in the picturesque village of Pontesbury. With planning permission already approved for a 2-bedroom detached bungalow, your vision of a serene countryside home can become a reality. Enjoy the vast natural surroundings and a sprawling garden area perfect for outdoor living, all while being surrounded by affluent communities with outstanding local amenities.
Families will appreciate proximity to highly-rated schools such as Pontesbury CofE Primary School and Mary Webb School, ensuring quality education options for children. While broadband speeds are currently slow, the ample plot size presents an inviting opportunity for future development and expansion. Don’t miss this chance to secure a slice of rural paradise—this inclusive space invites you to create a personalized sanctuary in a peaceful, community-oriented setting. Grab this unique investment opportunity before it slips away!
Plot for sale in Shelton Lane, Shrewsbury, SY3 — £175,000 • 1 bed • 1 bath • 632 ft²
Land for sale in Land by Heathgates, Shrewsbury, SY1 — £150,000 • 1 bed • 1 bath
Land for sale in Land by Heathgates, Shrewsbury, SY1 — £150,000 • 1 bed • 1 bath
Land for sale in Building Plot East of Mount Pleasant Road, Shrewsbury, SY1 3BQ, SY1 — £90,000 • 1 bed • 1 bath • 611 ft²
Land for sale in Longden Common Lane, Longden Common, Shrewsbury, SY5 — £120,000 • 1 bed • 1 bath • 6970 ft²
Land for sale in Land Adjacent to 38 Longden Road, Coleham, Shrewsbury, SY3 7HE, SY3 — £300,000 • 1 bed • 1 bath


























