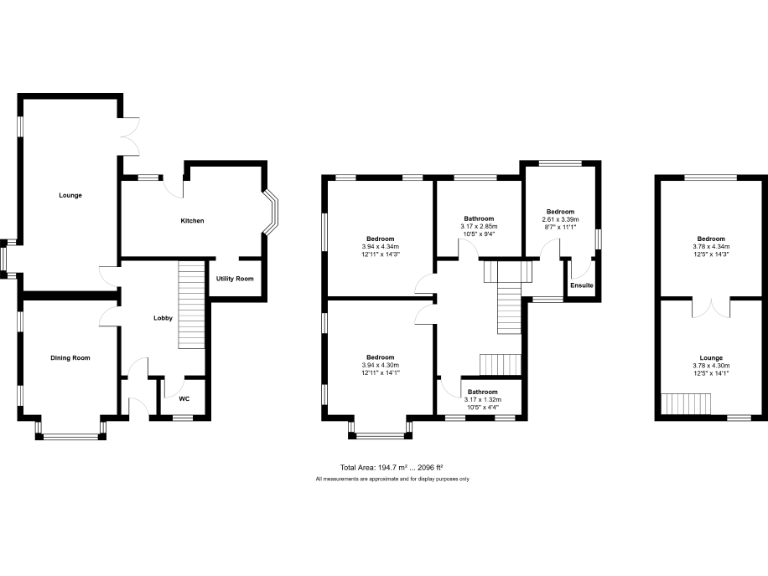
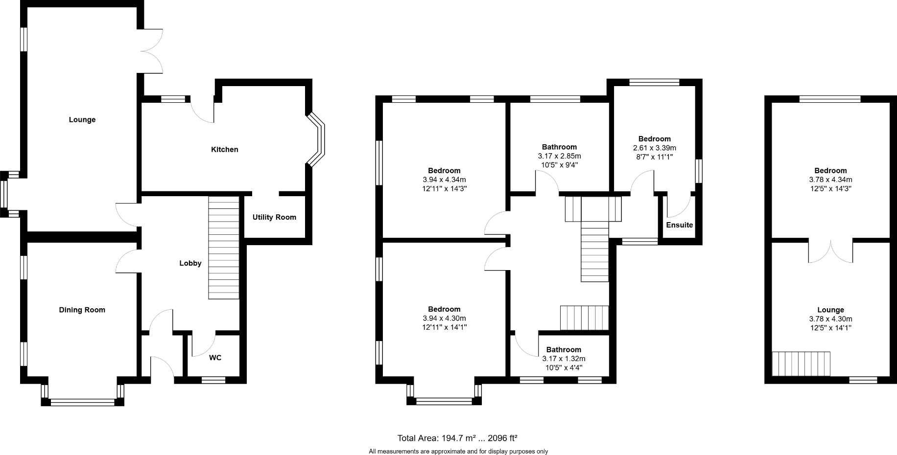
**Standout Features:**
- Character-rich four-bedroom detached Tudor Revival home
- Spacious dual-aspect lounge with French doors to the garden
- Elegant dining room with bay window and traditional fireplace
- Well-equipped kitchen with breakfast area and utility room
- Second floor with a fourth bedroom and private snug, perfect for teens or guests
- Generous and beautifully landscaped front, side, and low-maintenance rear gardens
- Preserved original features: timber paneling, stained glass, parquet flooring
- Nestled on prestigious Prescot Road, Aughton, near local amenities and excellent schools
- Chain-free with ample potential for personalization
Nestled on the prestigious Prescot Road in Aughton, this exceptional four-bedroom detached residence radiates character and modern living potential. Boasting a spacious dual-aspect lounge that flows out to the picturesque garden, an elegant dining room with natural light streaming through a stunning bay window, and a well-equipped kitchen with direct access to a utility room, this home is designed for both comfort and entertaining.
The upper floors present versatile spaces—including a private snug area ideal for teenagers—as well as well-proportioned bedrooms filled with natural light. With beautifully preserved original features like timber paneling and parquet flooring, this home offers a blend of historical charm and contemporary comfort. The expansive gardens ensure outdoor relaxation and entertainment is effortless.
While the property is in great condition, the layout allows for creative renovation opportunities to personalize your dream home. Highly sought-after local schools make it perfect for families, while chain-free status means an expedited transition. Viewing is essential to fully appreciate the unique charm and expansive potential of this noteworthy home. Don’t miss this rare opportunity!
5 bedroom detached house for sale in Town Green Lane, Aughton, Ormskirk, Lancashire, L39 — £899,995 • 5 bed • 4 bath • 3186 ft²
4 bedroom detached house for sale in Wimbrick Close, Ormskirk, Lancashire, L39 — £640,000 • 4 bed • 3 bath • 2289 ft²
4 bedroom detached house for sale in Sefton Gardens, Aughton, L39 — £525,000 • 4 bed • 1 bath • 2502 ft²
4 bedroom detached house for sale in Prescot Road, Aughton, L39 — £530,000 • 4 bed • 1 bath • 2588 ft²
4 bedroom detached house for sale in Cirrus Drive, Aughton, L39 — £550,000 • 4 bed • 2 bath • 2197 ft²
4 bedroom detached house for sale in Prescot Road, Aughton, L39 4SN, L39 — £616,000 • 4 bed • 4 bath • 2215 ft²






































































































