Generous living, double garage and low-maintenance garden in sought-after Aughton.
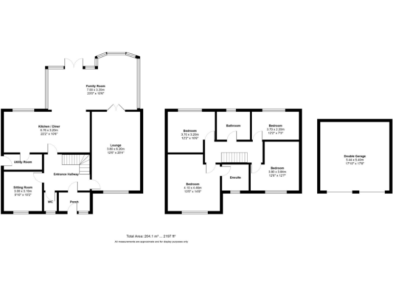
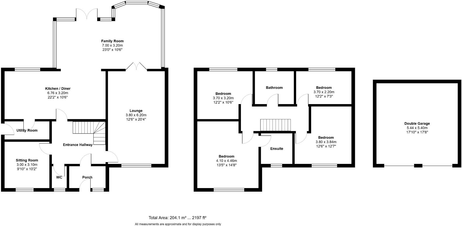
Large detached four-bedroom family home, about 2,197 sq ft
This substantial four-bedroom detached home on Cirrus Drive is arranged over two floors and offers generous living space for a growing family. The ground floor features a bright lounge with a gas fire, a family room with wall-to-wall windows opening to the garden, a modern fitted kitchen/diner with integrated appliances, utility and an additional sitting room that works well as a home office or playroom.
Upstairs are four well-proportioned bedrooms, the principal benefitting from an ensuite, plus a four-piece family bathroom. At approximately 2,197 sq ft the house has flexible living areas and storage, with a detached double garage and a wide driveway providing plentiful parking for multiple vehicles.
Outside, the rear garden is low-maintenance with a patio, lawn, mature planting and a feature pond—ideal for summer entertaining with direct access from the family room. The property is freehold, in a very low-crime, affluent area with excellent mobile and broadband connectivity and good local amenities.
Practical points to note: council tax is Band F which will be a material running cost. Local secondary school ratings nearby are mixed, including one listed as requiring improvement and another rated inadequate, which may matter for families with older children. Overall the house offers a spacious, modern family home in a sought-after Aughton location but factor in running costs and school choices when considering purchase.
4 bedroom detached house for sale in Cherry Green, Aughton, L39 — £475,000 • 4 bed • 2 bath • 1736 ft²
4 bedroom link detached house for sale in Black Moss Lane, Aughton, L39 — £400,000 • 4 bed • 2 bath • 1687 ft²
4 bedroom semi-detached house for sale in Swanpool Lane, Aughton, L39 — £675,000 • 4 bed • 2 bath • 2606 ft²
4 bedroom detached house for sale in Sagar Fold, Aughton, Lancashire, L39 — £525,000 • 4 bed • 2 bath • 2508 ft²
4 bedroom detached house for sale in Prescot Road, Aughton, L39 — £530,000 • 4 bed • 1 bath • 2588 ft²
5 bedroom detached house for sale in Cirrus Drive, Aughton, L39 — £615,000 • 5 bed • 3 bath • 2268 ft²






















































































