Spacious plot, practical layout and excellent school access for families.
- Extended traditional semi-detached family home
- Three good-sized bedrooms, smallest bedroom compact
- Large established rear garden with patio and lawn
- Driveway parking leading to single garage (single-width)
- Gas central heating and double glazing throughout
- Convenient for multiple 'Good' rated primary and secondary schools
- EPC rating D; some interiors dated, scope for cosmetic updating
- Freehold with affordable council tax (Band C)
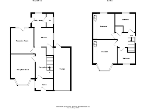
This extended three-bedroom semi-detached house sits on a large plot in one of Kingswinford’s more desirable roads, close to several well-regarded primary and secondary schools. The layout offers a through reception hall, bay-fronted lounge, separate dining room, kitchen with adjoining utility and a convenient downstairs shower room — practical for family life.
Upstairs there are three good-sized bedrooms and a refitted family bathroom. Practical comforts include gas central heating, double glazing and off-street parking that extends to a single garage. The generous rear garden is well established with a patio and lawn, providing space for children to play or for future landscaping projects.
The property is mostly well maintained but has some dated internal finishes in places and an EPC rating of D. The third bedroom is the smallest of the three and the garage is single-width. Overall this is a solid freehold family home with scope for cosmetic updating or modest improvement to increase comfort and value.
3 bedroom semi-detached house for sale in KINGSWINFORD, Ranleigh Avenue, DY6 — £215,000 • 3 bed • 1 bath • 785 ft²
3 bedroom semi-detached house for sale in KINGSWINFORD, Ridge Road, DY6 — £345,000 • 3 bed • 1 bath • 943 ft²
3 bedroom semi-detached house for sale in KINGSWINFORD, Court Crescent, DY6 — £340,000 • 3 bed • 1 bath • 912 ft²
3 bedroom semi-detached house for sale in KINGSWINFORD, Tunstall Road, DY6 — £232,950 • 3 bed • 1 bath • 732 ft²
3 bedroom semi-detached house for sale in KINGSWINFORD, Rangeways Road, DY6 — £265,000 • 3 bed • 1 bath • 1068 ft²
3 bedroom house for sale in Barnett Lane, Kingswinford, DY6 — £320,000 • 3 bed • 1 bath • 1259 ft²






























































