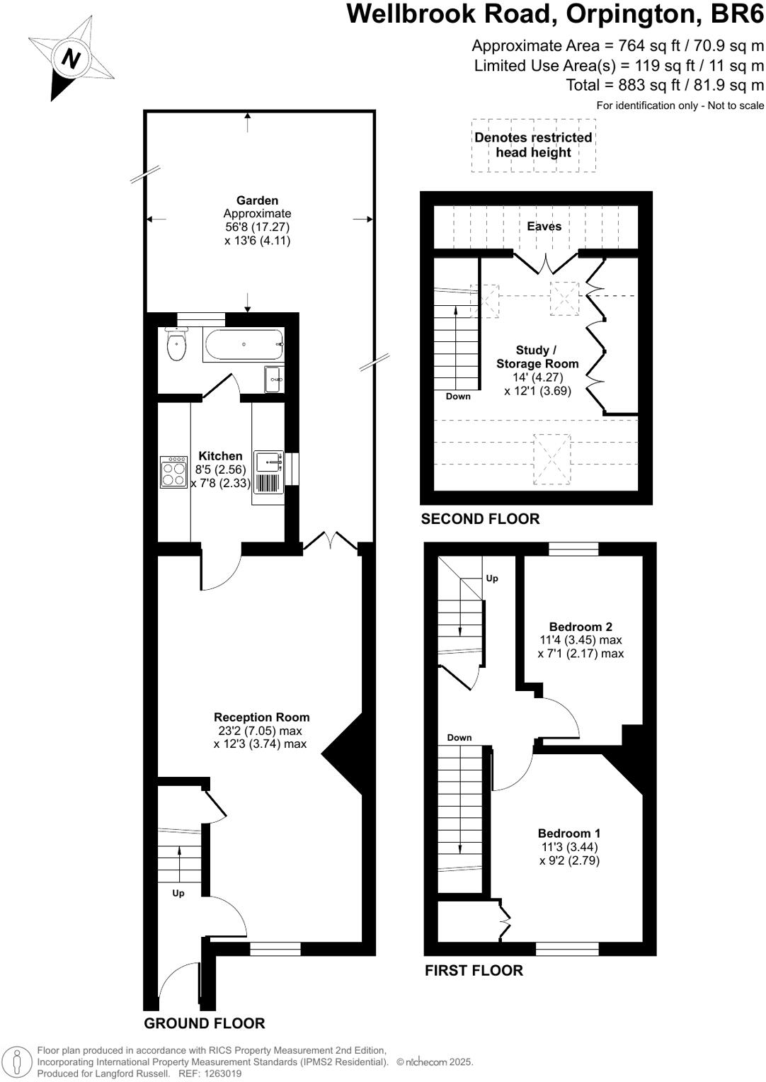
**Standout Features:**
- Extended into the loft, adding a third bedroom
- Spacious lounge/diner with wood floors and neutral decor
- Modern bathroom suite, well-equipped kitchen
- Landscaped rear garden with seating and lawn area
- Off-street parking available
- Chain-free, Freehold tenure
- Prime location near Orpington train station and excellent schools
This charming Victorian terraced house offers an appealing blend of modernity and character, perfect for families or first-time buyers seeking space and convenience. With two generous bedrooms and a newly added third bedroom under the loft, it provides flexibility for growing families. The spacious lounge/diner is filled with natural light, boasting beautifully maintained wood floors and a seamless flow into a contemporary kitchen and bathroom.
Enjoy outdoor living in the landscaped rear garden, designed for relaxation and entertaining, while the low-maintenance front garden includes valuable off-street parking. Located within the desirable catchment for exceptional schools and just a short walk to Orpington station for easy commuting into London, this property won't last long. Embrace the potential for future renovations or extensions (subject to planning permission), allowing you to add your personal touch to this already appealing home. Don’t miss this opportunity to secure a delightful residence in a vibrant community!
4 bedroom terraced house for sale in Crofton Road, Orpington, BR6 8JF, BR6 — £625,000 • 4 bed • 2 bath • 1301 ft²
2 bedroom terraced house for sale in Wellbrook Road, Farnborough, Orpington, Kent, BR6 — £425,000 • 2 bed • 1 bath • 722 ft²
3 bedroom terraced house for sale in Edith Road, Orpington, BR6 — £600,000 • 3 bed • 2 bath • 984 ft²
3 bedroom semi-detached house for sale in Winton Road, Orpington, BR6 — £535,000 • 3 bed • 1 bath • 948 ft²
3 bedroom semi-detached house for sale in Hilda Vale Road, Orpington, BR6 — £549,000 • 3 bed • 2 bath • 914 ft²
3 bedroom semi-detached house for sale in Red Oak Close, Orpington, BR6 — £675,000 • 3 bed • 1 bath • 1335 ft²


























































