Traditional layout, garage and garden close to good primary schools.
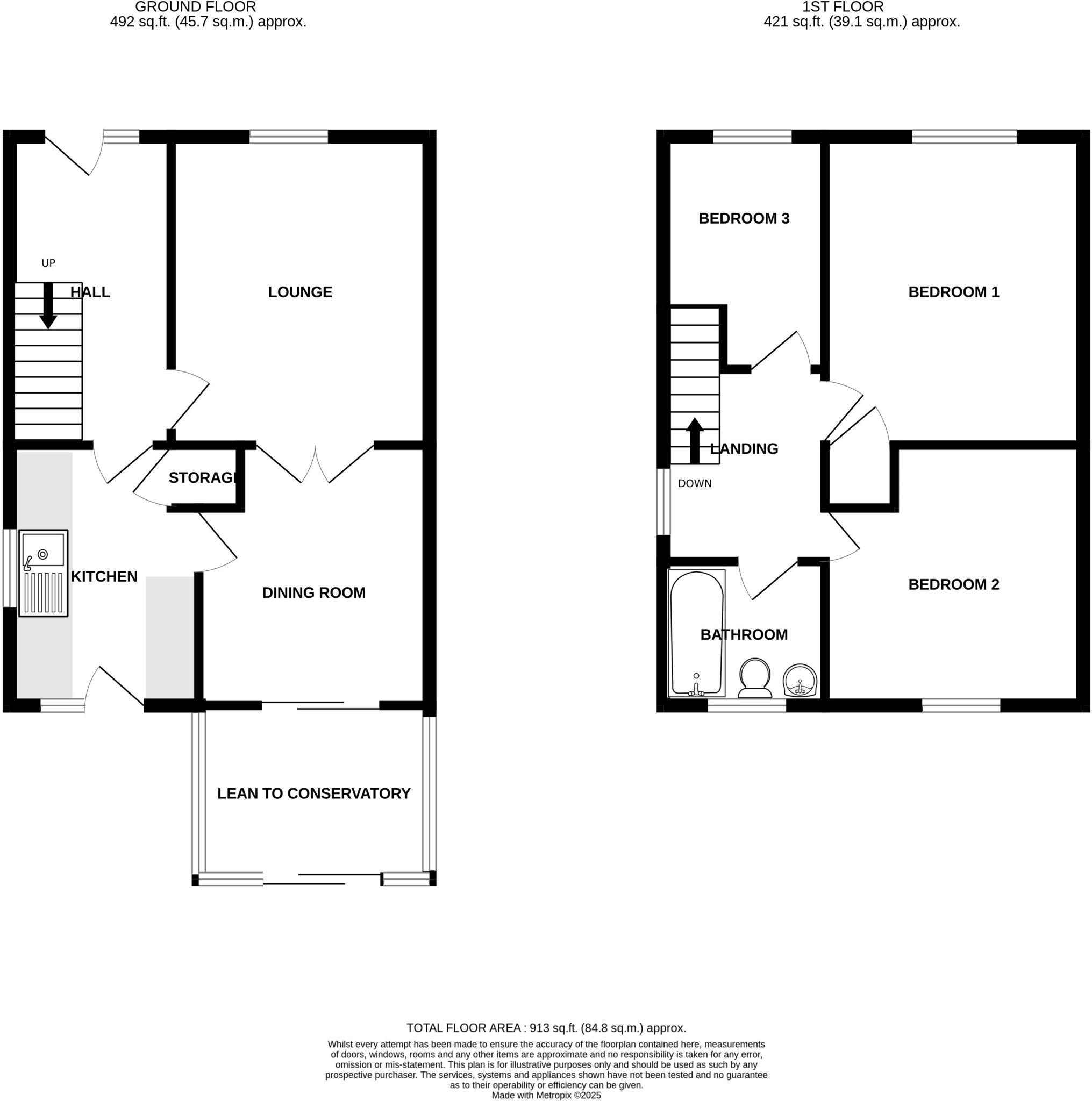
Three bedrooms with separate lounge and dining room
This three-bedroom semi-detached home on Winston Ave offers straightforward family living on a decent plot in prosperous Tiptree. The layout is traditional: separate lounge and dining room, a fitted kitchen with side access, and a conservatory opening onto an enclosed rear garden — useful for summer use or as a children's play area.
Practical positives include off-street parking, a detached garage with power and light, and freehold tenure. The property sits in a low-crime, very affluent area close to good primary schools and local amenities, with no flood risk — a reassuring setting for families.
Buyers should note material facts plainly: the conservatory is single glazed and will not provide year-round comfort without upgrading. Heating is by an oil-fired boiler and radiators, which can be more expensive and requires tank storage and regular servicing. The house dates from the late 1970s/early 1980s and shows the expected ageing: cavity walls are only partially insulated (assumed) and some updating or refurbishment will be needed to modernise finishes and improve energy efficiency.
Overall this is a solid, average-sized family home with clear potential to increase comfort and value through sensible improvements — insulation, heating modernisation, and kitchen or bathroom updating. It will suit buyers wanting a practical starter or family home in a quiet town-fringe neighbourhood, or investors seeking a rental in a stable, school-friendly location.
 3 bedroom semi-detached house for sale in Carolina Way, Tiptree, CO5 — £365,000 • 3 bed • 1 bath • 1226 ft²
 3 bedroom semi-detached house for sale in Carolina Way, Tiptree, CO5 — £365,000 • 3 bed • 1 bath • 1226 ft² 3 bedroom semi-detached house for sale in Anchor Road, Tiptree , CO5 — £385,000 • 3 bed • 2 bath • 828 ft²
 3 bedroom semi-detached house for sale in Anchor Road, Tiptree , CO5 — £385,000 • 3 bed • 2 bath • 828 ft² 3 bedroom semi-detached house for sale in Birchwood Close, Tiptree, CO5 — £375,000 • 3 bed • 1 bath • 999 ft²
 3 bedroom semi-detached house for sale in Birchwood Close, Tiptree, CO5 — £375,000 • 3 bed • 1 bath • 999 ft² 3 bedroom semi-detached house for sale in Walnut Tree Way, Tiptree, Colchester, CO5 — £260,000 • 3 bed • 1 bath • 520 ft²
 3 bedroom semi-detached house for sale in Walnut Tree Way, Tiptree, Colchester, CO5 — £260,000 • 3 bed • 1 bath • 520 ft² 3 bedroom semi-detached house for sale in Church Road, Tiptree, CO5 — £340,000 • 3 bed • 1 bath • 988 ft²
 3 bedroom semi-detached house for sale in Church Road, Tiptree, CO5 — £340,000 • 3 bed • 1 bath • 988 ft² 3 bedroom semi-detached house for sale in Cedar Avenue, Tiptree, CO5 — £300,000 • 3 bed • 1 bath • 802 ft²
 3 bedroom semi-detached house for sale in Cedar Avenue, Tiptree, CO5 — £300,000 • 3 bed • 1 bath • 802 ft²


































































































