ML11 9UH - 5 bed large countryside plot in Lanark And Hamilton East, M…

View on Property Piper

Land for sale in Land At Kirkfield Lodge, Kirkfieldbank, ML11

Summary - KIRKFIELD LODGE, LANARK ML11 9UH

5 bed 3 bath Land

Build-ready 8.2-acre smallholding with stables and woodland near Clyde Valley views.
Full planning permission for a 1.5-storey five-bedroom house (P/21/0847)
A rare 8.2-acre plot with full planning permission (P/21/0847) for a 1.5-storey, five-bedroom home offers a straightforward route to a countryside family residence or smallholding. The approved design provides about 232 sq m of internal space across ground and first floors; services on-site include a water supply, water treatment plant and electricity access within the boundary.

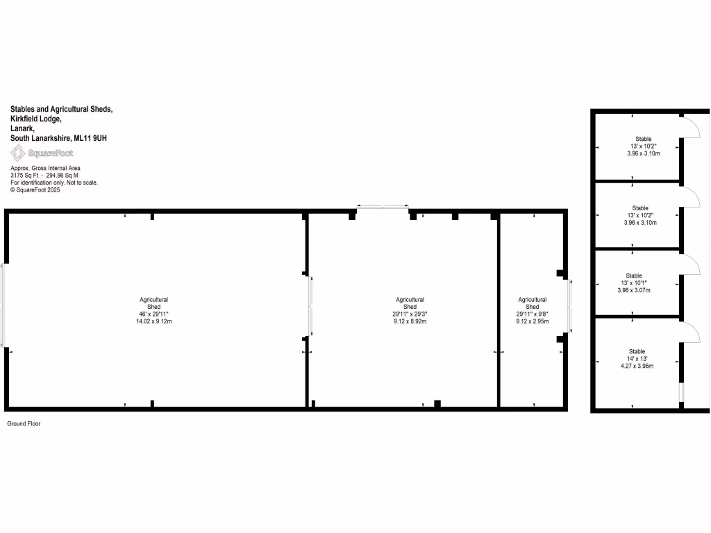
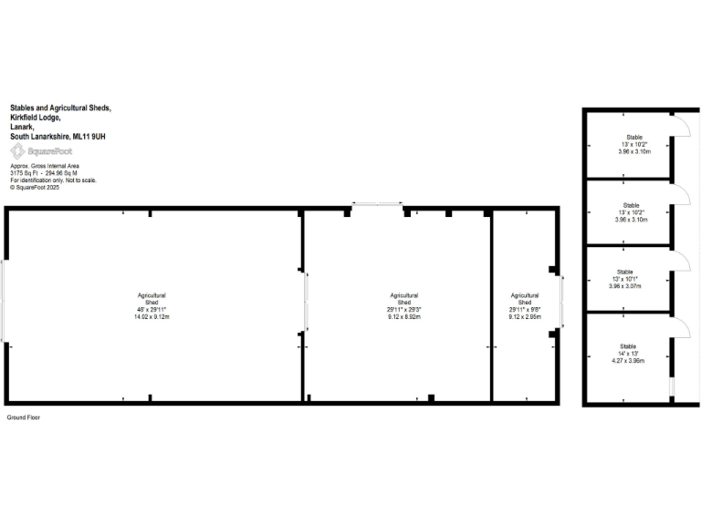
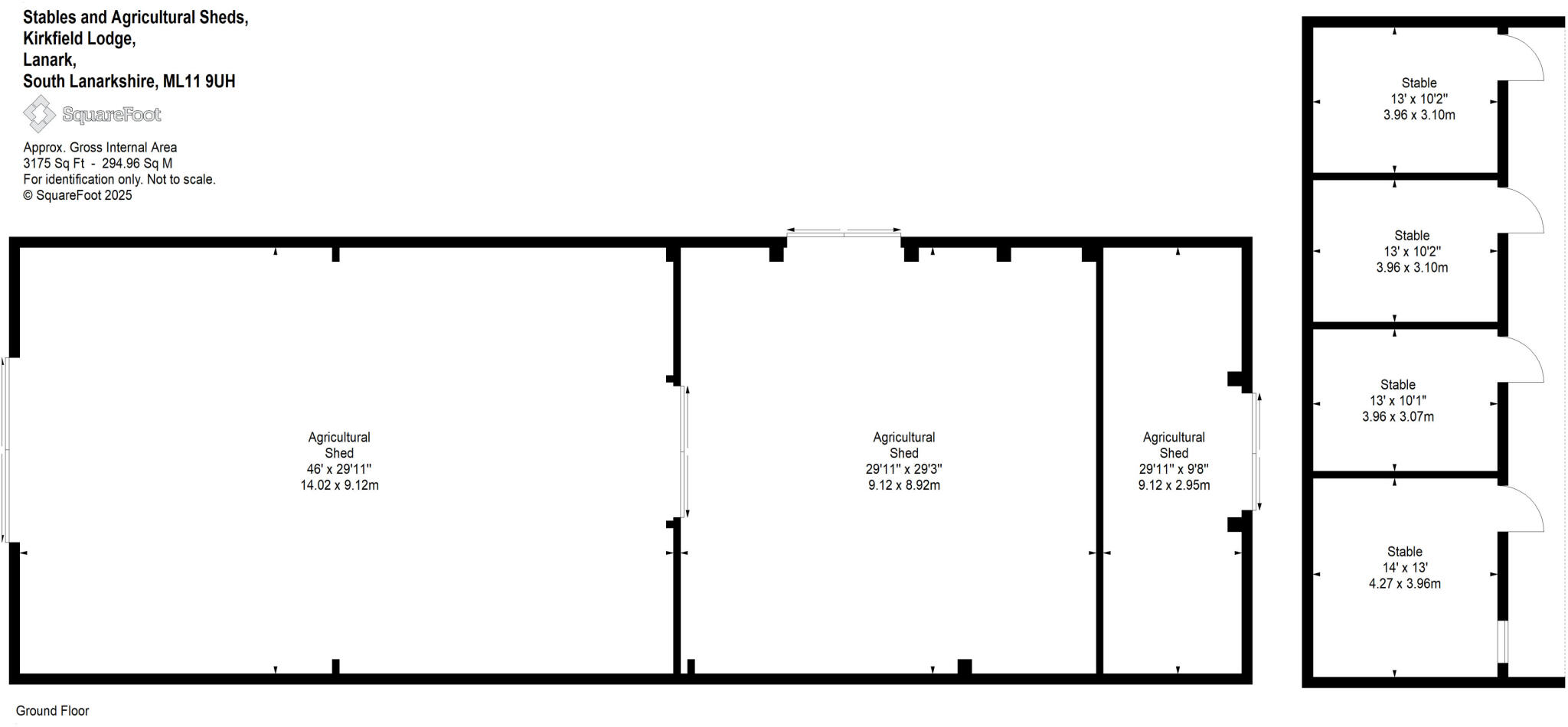
The holding is arranged into paddocks with four brick stables and a large wood-clad agricultural shed (approx 24.4m x 9.1m x 5.8m), plus roughly 0.7 acres of mature woodland. Parking and garaging are included with the proposed house layout. Broadband is fast and mobile signal is excellent, which suits remote working or family connectivity despite the rural setting.

Practical points to note: the planning permission lapses in September 2026, tenure is recorded as unknown, and the wider area is classified as very deprived and remoter/agricultural communities. There is no flooding risk recorded. These factors affect financing, timelines and potential resale; buyers should verify tenure, confirm utility connections, and consider their timetable for building consent and construction.

This is a strong opportunity for a buyer seeking an established smallholding or an expansive private plot with approved plans already in place. The site’s scale, existing outbuildings and services reduce initial groundwork, while the landscape and views over the Clyde Valley provide lasting countryside appeal.

Property Details

Image Descriptions

Floorplan Description

Rooms

Textual Property Features

Target Audience

AI Tags

Detected Visual Features

Nearest Bars And Restaurants

,,,,}

Nearest General Shops

,,}

Nearest Grocery shops

,,}

Nearest Supermarkets

,,}

Nearest Religious buildings

,,}

Nearest Medical buildings

,,,}

Nearest Leisure Facilities

,,,,}

Nearest Tourist attractions

,,}

Nearest Train stations

,,,,}

Nearest Bus stations and stops

,,,,}

Nearest Hotels

,,}

Tags

Local Market Stats

Similar Properties

Meta

High Res Images

Compatible Images

Low res Images

Thumbnails

Raw Images

High Res Floorplan Images

Compatible Floorplan Images

Low res Floorplan Images

FloorplanImages Thumbnail

Raw Floorplan Images