RH15 0DU - 2 bedroom bungalow for sale in The Warren, Burgess Hill, RH…

View on Property Piper

2 bedroom bungalow for sale in The Warren, Burgess Hill, RH15

Summary - 9 THE WARREN BURGESS HILL RH15 0DU

2 bed 1 bath Bungalow

Single-storey living with large gardens and a home office summerhouse.
Large dual-aspect lounge/dining room with sliding garden doors
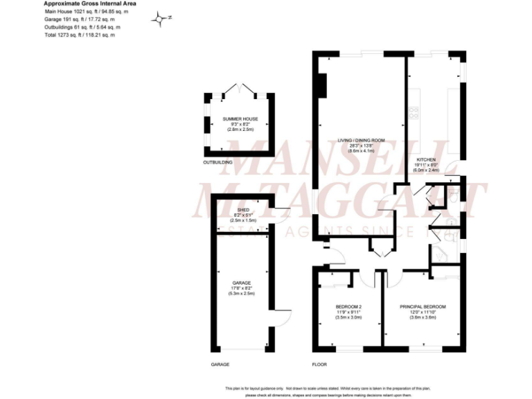
This detached two-bedroom bungalow offers single-storey living with substantial outdoor space, presented with vacant possession. A well-executed extension creates a large dual-aspect lounge/dining room and a generous kitchen/breakfast room, both with sliding doors to the garden — ideal for easy indoor-outdoor living. The accommodation is cleanly finished and ready to move into for buyers seeking low-step living in a quiet, established neighbourhood.

The mature, well-planted gardens flank the house on two sides and include a quality summerhouse/home office with electric heating, multiple patios, decking and colourful borders. A long private driveway leads to a garage with a useful garden room behind, giving practical storage and flexible workspace options. The bungalow sits within easy walking distance of Ditchling Common, Birchwood Grove Primary School and Burgess Hill town centre and station.

Practical details: gas central heating with a Worcester combi boiler (located in the linen cupboard), uPVC double glazing and double bedrooms with built-in wardrobes. The EPC is rated D and council tax is above average — factors to consider for running costs. Overall, this bungalow suits downsizers or those wanting single-level living with large gardens and convenient access to local amenities.

Property Details

Image Descriptions

Floorplan Description

Rooms

Textual Property Features

Target Audience

AI Tags

Detected Visual Features

EPC Details

Nearby Schools

Nearest Bars And Restaurants

,,,,}

Nearest General Shops

,,}

Nearest Grocery shops

,,}

Nearest Supermarkets

,,}

Nearest Religious buildings

,,}

Nearest Medical buildings

,,,}

Nearest Leisure Facilities

,,,,}

Nearest Tourist attractions

,,}

Nearest Train stations

,,,,}

Nearest Bus stations and stops

,,,,}

Nearest Hotels

,,}

Tags

Local Market Stats

AirBnB Data

Similar Properties

Meta

High Res Images

Compatible Images

Low res Images

Thumbnails

Raw Images

High Res Floorplan Images

Compatible Floorplan Images

Low res Floorplan Images

FloorplanImages Thumbnail

Raw Floorplan Images