GU6 8JW - 4 bed modern country barn in Knowle Lane, GU6 8JW

View on Property Piper

4 bedroom barn conversion for sale in Knowle Lane, Cranleigh, Surrey, GU6., GU6

Summary - 2 Snoxhall Barns, Snoxhall, Knowle Lane GU6 8JW

4 bed 3 bath Barn Conversion

Contemporary rural living with low-maintenance systems and large garden.
10-year build guarantee and high-quality modern finishes
Air-source heat pump with underfloor heating, low running emissions
Principal bedroom with ground-floor en suite for accessibility
Large open-plan living, high ceilings and extensive glazing
Large patio and generous rear garden with panoramic rural views
Electric car charging point and fast broadband for home working
Quiet hamlet setting; nearest mainline stations typically 8–10 miles
Mixed record on school Ofsted ratings; check catchment and performance
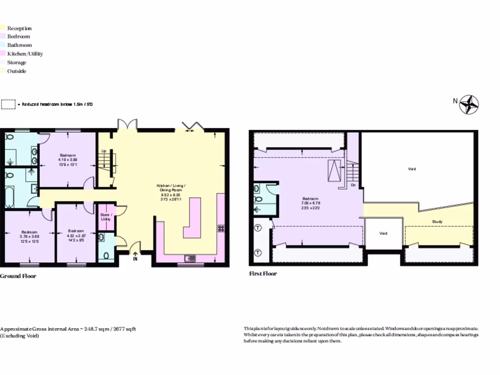
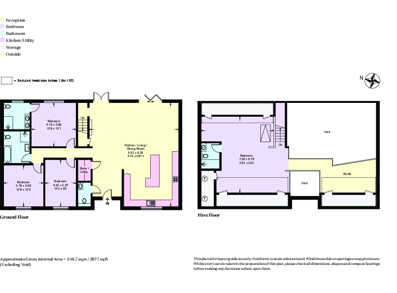
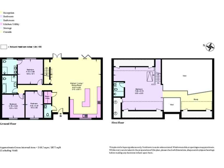
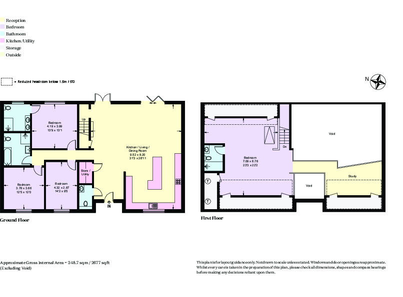
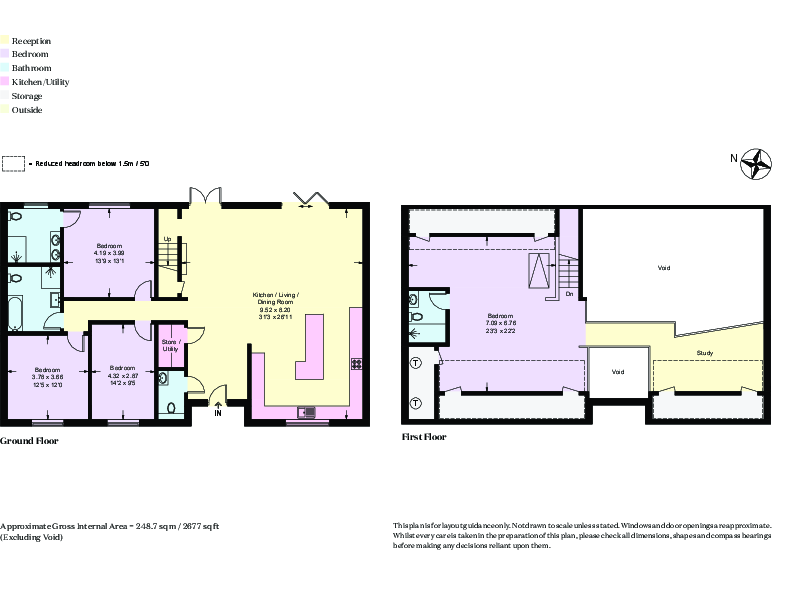
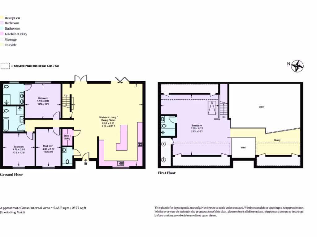
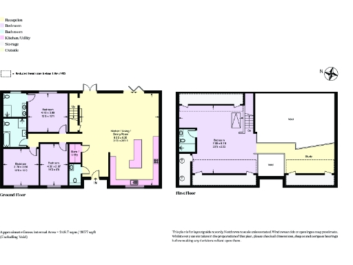
Snoxhall Barn is a contemporary barn conversion set in tranquil Cranleigh countryside, finished to a high standard in 2022 and offered with a 10-year guarantee. The property combines generous open-plan living, high ceilings and large windows with efficient modern systems: air-source heat pump, underfloor heating and an electric car charging point. The principal bedroom with en suite sits on the ground floor, alongside a flexible study and living space, with two further bedrooms and a family bathroom plus scope for a fourth bedroom using an existing first-floor bathroom.

The house sits on a large plot with a substantial patio and wide rural views, ideal for family life and outdoor entertaining. The location is quiet and semi-isolated in an established farming community, giving privacy and low local crime. Broadband is reported fast, making home working feasible, though mobile signal is average and the nearest rail links are 8–10 miles away for services into London.

Practical points to note: tenure is freehold, council tax is moderate, and there is no flooding risk. The property is recorded with mixed descriptors (detached in some details, built form noted as mid-terrace elsewhere) — interested buyers should confirm the building’s exact legal classification and boundary responsibilities. Nearby schools include several independent and state options with mixed Ofsted results; families should check catchments and performance for specific needs.

Property Details

Brochure Descriptions

Image Descriptions

Floorplan Description

Rooms

Textual Property Features

Target Audience

AI Tags

Detected Visual Features

EPC Details

Nearby Schools

Nearest Bars And Restaurants

,,,,}

Nearest General Shops

,,}

Nearest Grocery shops

,,}

Nearest Supermarkets

,,}

Nearest Religious buildings

,,}

Nearest Medical buildings

,,,}

Nearest Airports

}

Nearest Leisure Facilities

,,,,}

Nearest Tourist attractions

,,}

Nearest Train stations

,,,,}

Nearest Bus stations and stops

,,,,}

Nearest Hotels

,,}

Tags

Local Market Stats

Similar Properties

Meta

High Res Images

Compatible Images

Low res Images

Thumbnails

Raw Images

High Res Floorplan Images

Compatible Floorplan Images

Low res Floorplan Images

FloorplanImages Thumbnail

Raw Floorplan Images