Cash-only buy-to-let with steady rental income and long-term tenants.
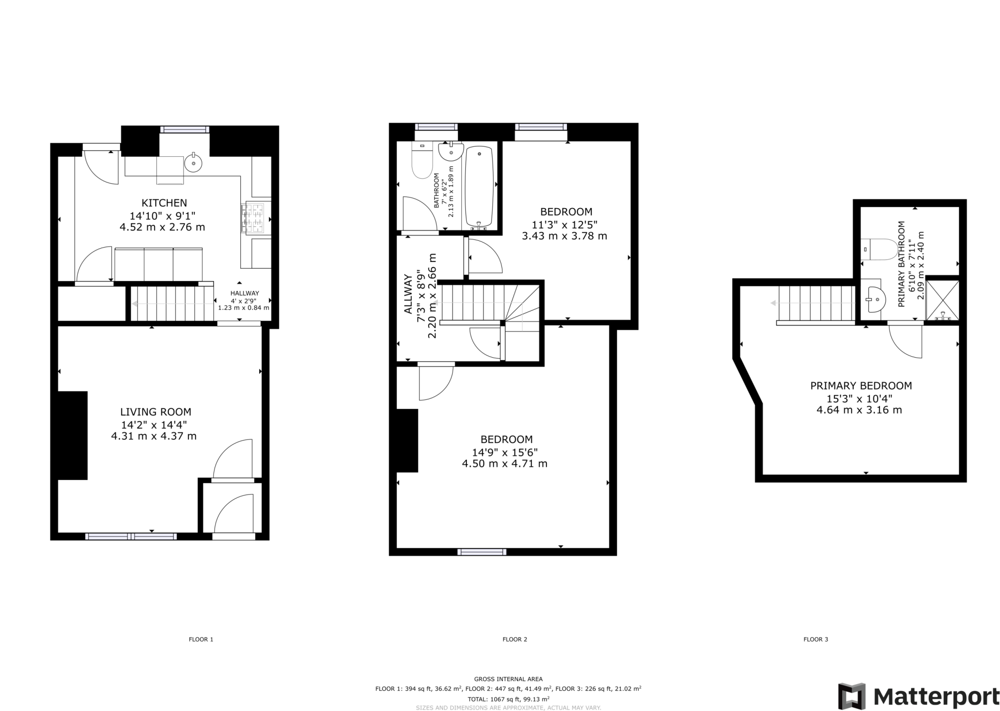
Three-bedroom Victorian mid-terrace, approx. 893 sq ft
A three-bedroom Victorian mid-terrace with established long-term tenants, offered as a buy-to-let opportunity in Heywood. The property currently produces a gross annual income of £9,000 and sits on Green Lane close to local amenities and transport links, making it likely to attract investor interest.
The house is average-sized (approximately 893 sq ft) with a living room, kitchen, three-piece bathroom, and a rear private garden. Accommodation is straightforward and practical, with small-to-medium room sizes typical of period terraces; decor appears functional rather than bespoke.
Important practical notes: the sale is leasehold and cash offers only. The property is in an area classified as deprived with ageing urban communities, and on-street parking only. Tenants are long-standing and intend to remain, so possession will not be immediate for owner-occupiers.
For buyers focused on rental returns or portfolio growth, this represents a low-entry-price investment with immediate income. Buyers seeking an owner-occupied move-in will face tenancy constraints and should factor potential refurbishment and maintenance into purchase plans.
2 bedroom terraced house for sale in Middleton Road, Heywood, Greater Manchester, OL10 — £100,000 • 2 bed • 1 bath • 753 ft²
3 bedroom terraced house for sale in Queens Park Road, Heywood, OL10 — £117,600 • 3 bed • 1 bath • 807 ft²
2 bedroom terraced house for sale in Claybank Street, Heywood, Greater Manchester, OL10 — £115,000 • 2 bed • 1 bath • 646 ft²
2 bedroom end of terrace house for sale in Gorton Street, Heywood, OL10 — £105,000 • 2 bed • 1 bath • 732 ft²
3 bedroom terraced house for sale in Rochdale Road, Bury, BL9 — £140,000 • 3 bed • 1 bath • 1012 ft²
3 bedroom terraced house for sale in Stevenson Drive, Oldham, OL1 — £140,000 • 3 bed • 1 bath • 829 ft²






































































































