CV6 4QY - 3 bedroom end of terrace house for sale in Whitmore Place,…

View on Property Piper

3 bedroom end of terrace house for sale in Whitmore Place, Holbrook Lane, Coventry, West Midlands, CV6 4QY, CV6

Summary - SALES OFFICE AT WHITMORE PLACE, HOLBROOK LANE CV6 4QY

3 bed 1 bath End of Terrace

Modern three-bed end terrace with en suite and parking—ideal for first-time buyers.
Three-storey new build — modern fixtures and efficient layout
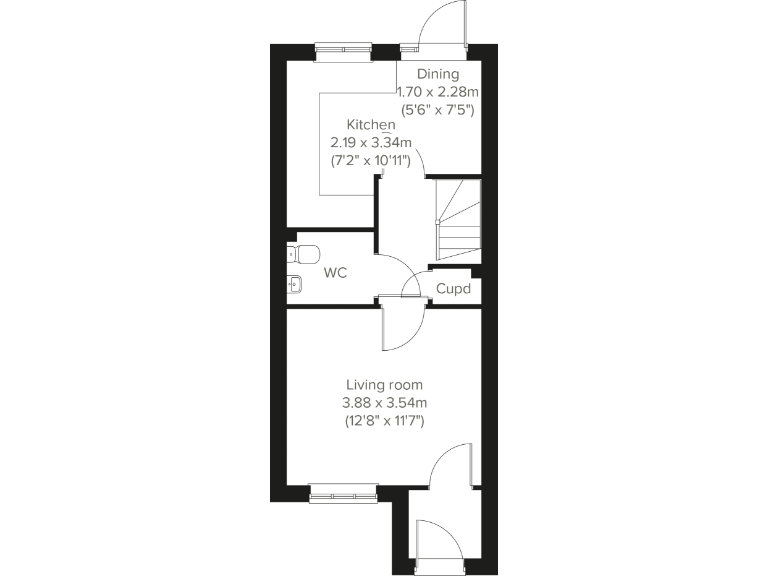
A compact three-storey end-of-terrace new build offering efficient modern living across 656 sq ft. The layout includes an open-plan kitchen/dining room with outside access, a front-aspect living room, downstairs WC and useful storage cupboards — practical for first-time buyers or small families seeking low-maintenance accommodation.

Bedroom one occupies the top floor and benefits from an en suite; two further bedrooms and a family bathroom sit on the middle floor. The property is energy efficient and comes with allocated off-street parking and an enclosed porch, giving immediate everyday convenience.

Be aware of local context: the neighbourhood records higher crime levels and the wider area shows signs of deprivation. Broadband speeds are reported as slow and the overall size is small, so buyers wanting extensive living space, high-speed internet, or a quieter locale should consider this before viewing.

This home suits buyers prioritising modern build quality, low-maintenance living and strong transport/mobile connectivity. It presents a straightforward move-in option with potential for personalisation, rather than a large-family forever home.

Property Details

Brochure Descriptions

Image Descriptions

Floorplan Description

Rooms

Textual Property Features

Target Audience

AI Tags

Detected Visual Features

Nearby Schools

Nearest Bars And Restaurants

,,,,}

Nearest General Shops

,,}

Nearest Grocery shops

,,}

Nearest Supermarkets

,,}

Nearest Religious buildings

,,}

Nearest Medical buildings

,,,}

Nearest Airports

}

Nearest Leisure Facilities

,,,,}

Nearest Tourist attractions

,,}

Nearest Train stations

,,,,}

Nearest Bus stations and stops

,,,,}

Nearest Hotels

,,}

Tags

Local Market Stats

AirBnB Data

Similar Properties

Meta

High Res Images

Compatible Images

Low res Images

Thumbnails

Raw Images

High Res Floorplan Images

Compatible Floorplan Images

Low res Floorplan Images

FloorplanImages Thumbnail

Raw Floorplan Images