Central, low‑maintenance home with energy-efficient heating and allocated parking.
Three double bedrooms, master with ensuite
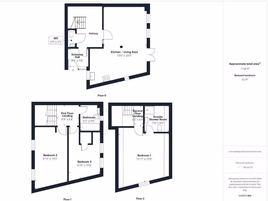
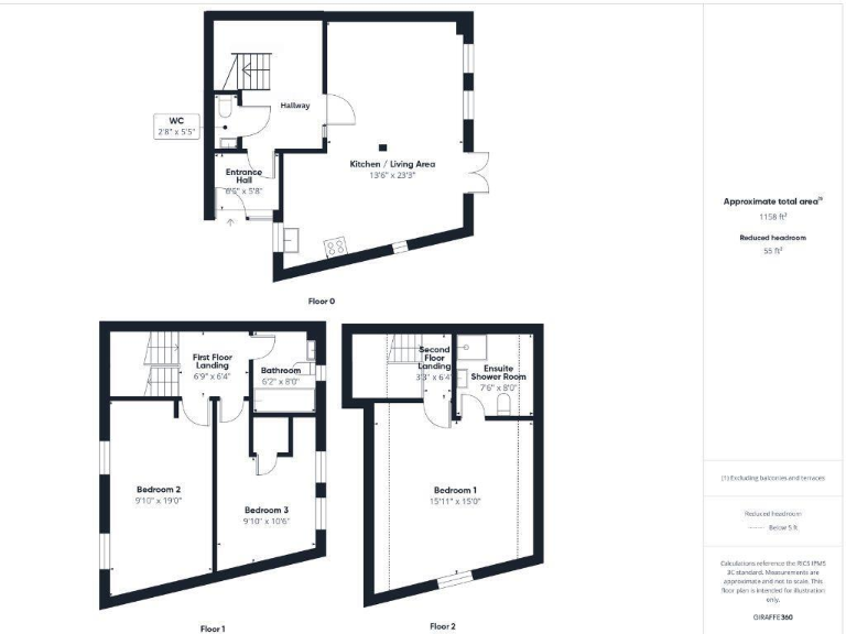
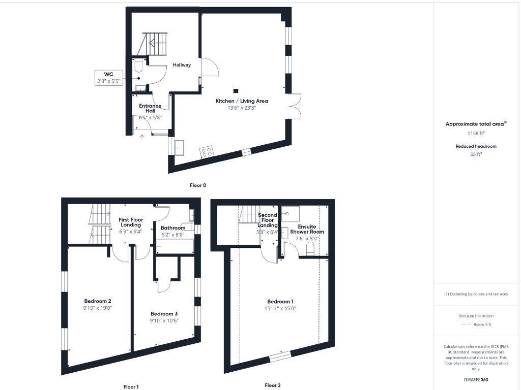
A modern three-bedroom semi-detached townhouse arranged over three floors, built in 2018 and presented with contemporary open-plan living on the ground floor. The generous living/dining/kitchen is bright with French doors to a fully enclosed courtyard patio — a low-maintenance outdoor space ideal for families or busy owners. The master bedroom includes an ensuite, with two further double bedrooms and a family bathroom completing the sleeping accommodation.
Practical running costs are improved by an air source heat pump and uPVC double glazing throughout, and the property comes with an assigned off-street parking space. The house is freehold and sits within walking distance of Louth town centre and several well-regarded schools, making it convenient for everyday shopping, services and school runs.
Buyers should note the plot is small and the rear garden is a courtyard rather than a lawned garden — suited to patio living but offering limited outdoor play space. The wider area is classified as relatively deprived with higher local crime levels; prospective purchasers may want to check local crime data and consider security measures. Broadband and mobile signals are average.
A £10,000 allowance towards a deposit is offered to support purchase. Overall this is a practical, energy-efficient family home in a central location for those prioritising town access and modern, low-maintenance living rather than a large garden or rural seclusion.
3 bedroom semi-detached house for sale in Queen Street Place, Louth, LN11 — £230,000 • 3 bed • 2 bath • 1109 ft²
3 bedroom terraced house for sale in Queen Street, Louth, LN11 — £159,950 • 3 bed • 1 bath • 740 ft²
3 bedroom town house for sale in Kings Mews, Louth LN11 0HW, LN11 — £150,000 • 3 bed • 1 bath • 732 ft²
2 bedroom semi-detached house for sale in The Gatherums, Queen Street Place, Louth, LN11 — £160,000 • 2 bed • 1 bath • 819 ft²
3 bedroom terraced house for sale in Eastfield Road, Louth, LN11 — £159,950 • 3 bed • 1 bath • 743 ft²
3 bedroom semi-detached house for sale in Primrose Hollow, Louth, LN11 — £375,000 • 3 bed • 2 bath • 1502 ft²






































































































