New-build starter home with garden, warranty and parking close to local amenities.
Three bedrooms with flexible second-floor rooms
French doors to a private rear garden
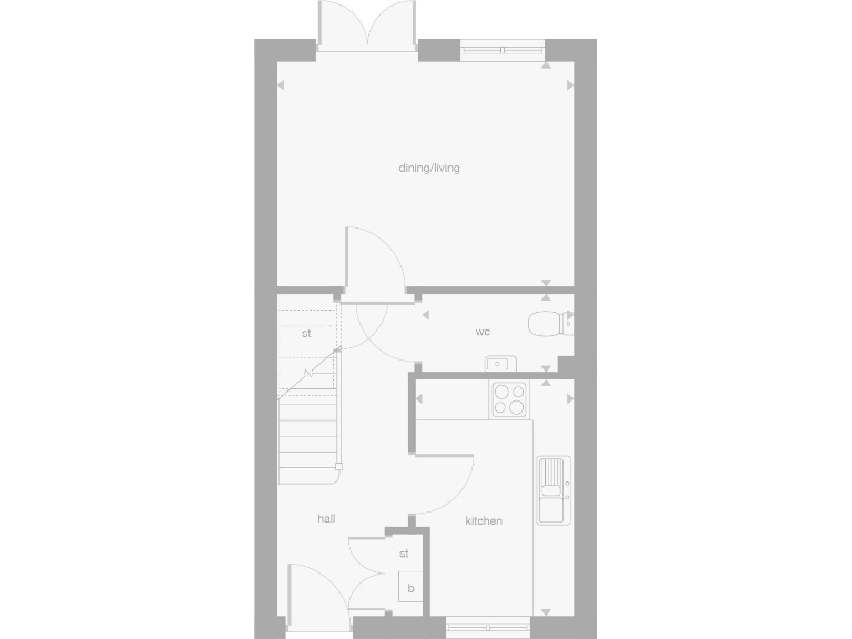
Separate kitchen; open-plan living-dining room
10-year NHBC warranty included
Off-street parking for one vehicle
Small overall footprint — 445 sq ft (compact rooms)
Single family bathroom only
Service charge £114.85 pa; area shows higher deprivation
This newly built mid-terrace mews offers an efficient three-bedroom layout across a compact 445 sq ft footprint, finished to a contemporary developer specification. The ground floor features a living-dining room with French doors that open onto a private garden, and a separate kitchen laid out for everyday use. Upstairs provides a principal bedroom with extra storage, plus two further bedrooms adaptable as home office or gym space.
Practical benefits include off-street parking, a 10-year NHBC warranty, and a below-average annual service charge of £114.85. The house is aimed at buyers seeking a low-maintenance starter home in a modern development and will suit first-time purchasers looking for warranty-backed new build security and modest running costs.
Buyers should note the property’s small overall size and modest room dimensions; the single bathroom and limited internal space will require careful consideration for families needing more living area. Broadband speeds are average and the wider area records higher deprivation levels, which may affect local services and resale appeal. The home is sold on a freehold basis (plot 23) and is available with developer incentives on selected plots.
3 bedroom mews property for sale in Off Whitecraig Road,
Whitecraig,
East Lothian
EH21 8PG, EH21 — £285,000 • 3 bed • 1 bath • 591 ft²
4 bedroom semi-detached house for sale in Off Whitecraig Road,
Whitecraig,
East Lothian
EH21 8PG, EH21 — £329,000 • 4 bed • 1 bath • 661 ft²
4 bedroom detached house for sale in Off Whitecraig Road,
Whitecraig,
East Lothian
EH21 8PG, EH21 — £400,000 • 4 bed • 1 bath • 1091 ft²
4 bedroom detached house for sale in Off Whitecraig Road,
Whitecraig,
East Lothian
EH21 8PG, EH21 — £388,000 • 4 bed • 1 bath • 965 ft²
4 bedroom detached house for sale in Off Whitecraig Road,
Whitecraig,
East Lothian
EH21 8PG, EH21 — £420,000 • 4 bed • 1 bath • 943 ft²
5 bedroom detached house for sale in Off Whitecraig Road,
Whitecraig,
East Lothian
EH21 8PG, EH21 — £457,000 • 5 bed • 1 bath • 1202 ft²


































































































































































