WS7 0HX - Equestrian facility for sale in Lichfield Road, Edial, Burn…

View on Property Piper

Equestrian facility for sale in Lichfield Road, Edial, Burntwood, WS7

Summary - 173 LICHFIELD ROAD BURNTWOOD WS7 0HX

4 bed 1 bath Equestrian Facility

**Standout Features:**
- Four-bedroom cottage set on 1.2 acres
- Gated horse paddock and stables, perfect for equestrian enthusiasts
- Spacious gated driveway with ample parking
- Large private rear garden with patio, ideal for entertainment
- Generous open-plan living space with modern kitchen and dining area
- Stunning countryside views from all bedrooms
- Detached, pre-1900 construction with solid brick walls
- Freehold tenure

**Concise Summary:**
Escape to this charming four-bedroom cottage nestled on a sprawling 1.2-acre plot, offering breathtaking countryside views that create an atmosphere of tranquility and space. Perfect for equestrian buyers, this property includes a gated horse paddock and stables, making it an ideal retreat for horse lovers. The exterior features a spacious driveway accommodating multiple vehicles and a beautifully landscaped rear garden with patio areas for family gatherings and entertaining guests.

Inside, the home boasts a generous open-plan layout, effortlessly combining a modern kitchen, dining space, and lounge, ensuring a comfortable family lifestyle. Each of the four double bedrooms provides picturesque views, complemented by a luxurious grand bathroom suite. Although the property exhibits the charm of a period build, prospective buyers should note the solid brick construction lacks insulation, which may require future attention. With its prime rural location near essential amenities in Lichfield and excellent transport links, this property offers a rare blend of countryside living and metropolitan convenience. Don’t miss out on this unique opportunity to own a piece of rural paradise!

Property Details

Brochure Descriptions

Image Descriptions

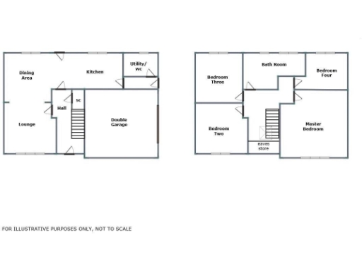
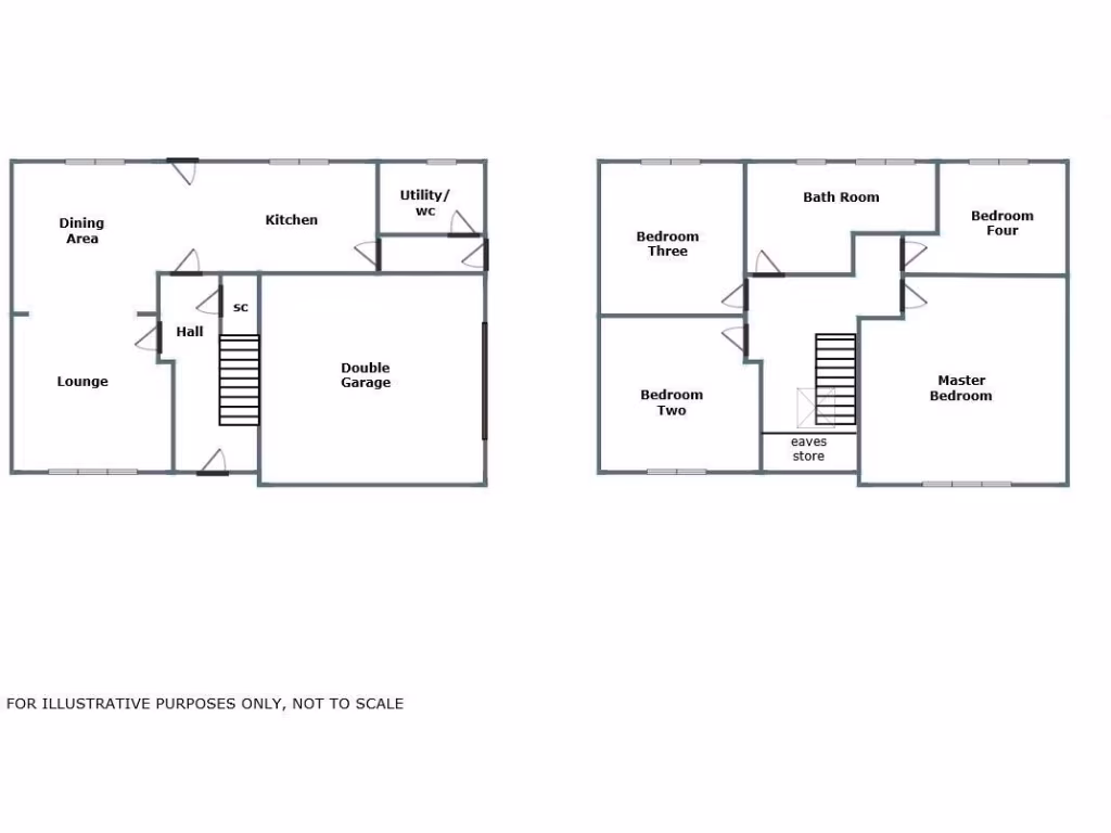
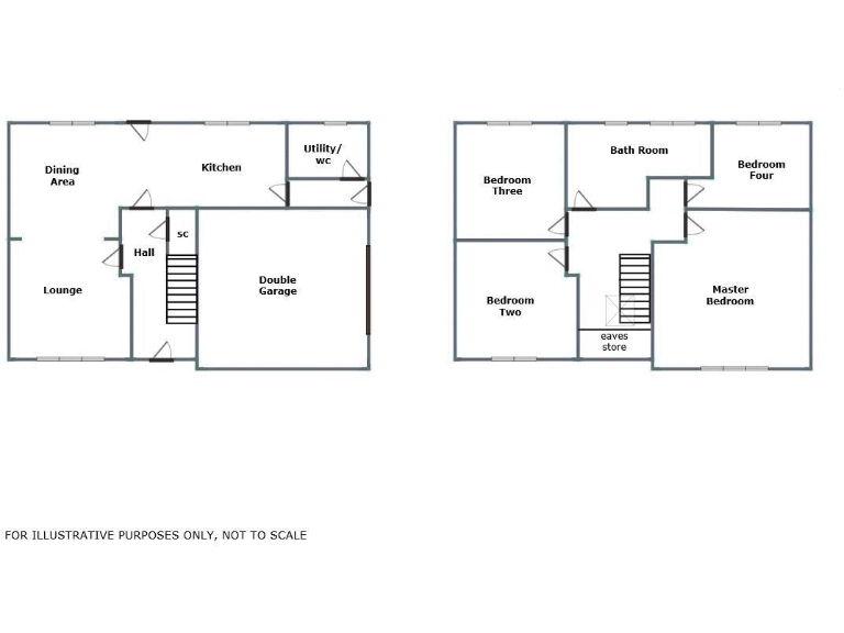
Floorplan Description

Rooms

Textual Property Features

Detected Visual Features

EPC Details

Nearby Schools

Nearest Bars And Restaurants

,,,,}

Nearest General Shops

,,}

Nearest Grocery shops

,,}

Nearest Supermarkets

,,}

Nearest Religious buildings

,,}

Nearest Medical buildings

,,,}

Nearest Airports

}

Nearest Leisure Facilities

,,,,}

Nearest Tourist attractions

,,}

Nearest Train stations

,,,,}

Nearest Bus stations and stops

,,,,}

Nearest Hotels

,,}

Tags

Local Market Stats

AirBnB Data

Similar Properties

Meta

High Res Images

Compatible Images

Low res Images

Thumbnails

Raw Images

High Res Floorplan Images

Compatible Floorplan Images

Low res Floorplan Images

FloorplanImages Thumbnail

Raw Floorplan Images