**Standout Features:**
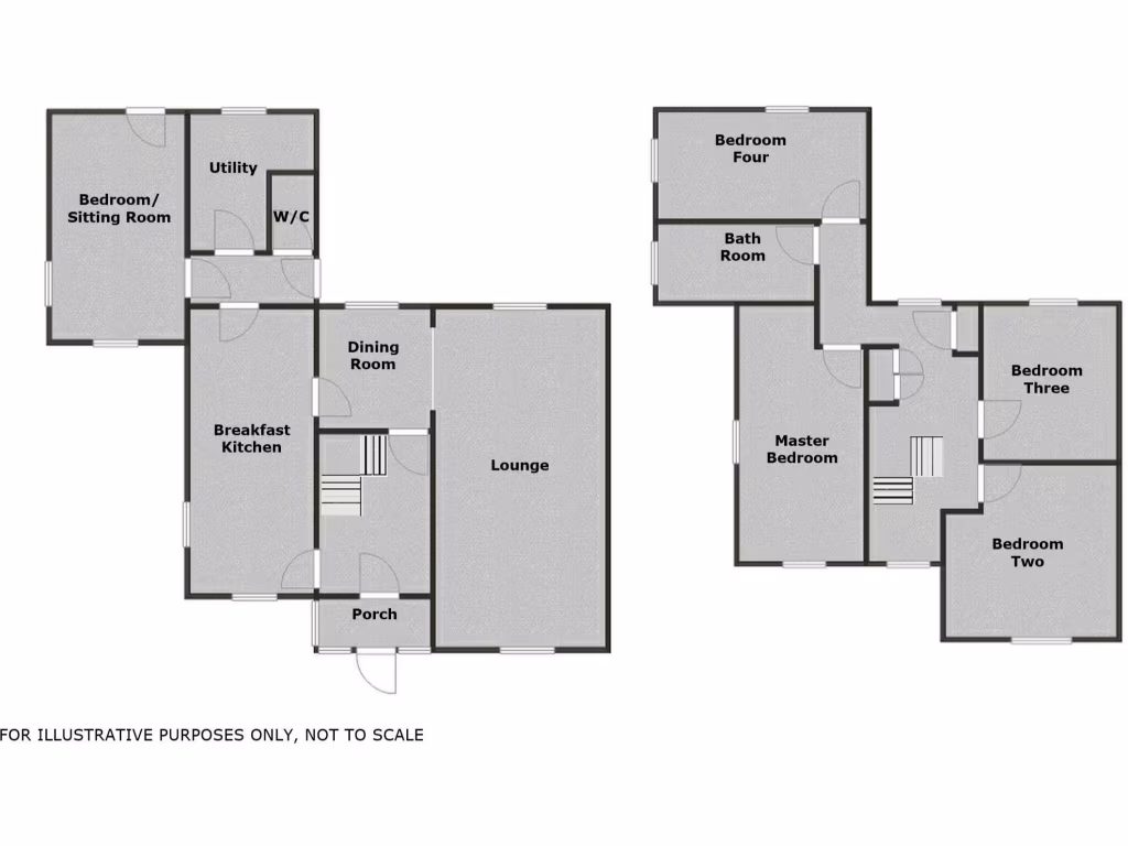
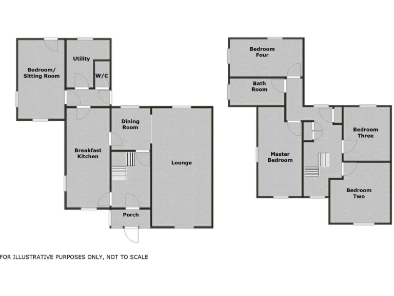
- Newly renovated five-bedroom semi-detached character property
- Modern fitted kitchen and spacious open plan lounge-diner
- Generous plot with a substantial garden and stunning countryside views
- Ground floor bedroom/sitting room for added flexibility
- Off-street parking with space for several vehicles
- Located in a low-crime, affluent suburb with good amenities and transport links
Nestled in the charming hamlet of Edial, this beautifully appointed five-bedroom character cottage offers a perfect blend of modern comfort and traditional charm. The recent renovations shine through in the large open-plan lounge-dining area and the contemporary kitchen equipped with a breakfast bar and utility space. Ideal for families, the ground floor also features a versatile bedroom or sitting room, ensuring ample space to accommodate guests or create a home office.
Set on a generous plot, the property boasts a magnificent rear garden—perfect for outdoor entertaining and family activities—complete with breathtaking views of the surrounding countryside. With off-street parking available and superb connectivity to Burntwood and Lichfield City, this property caters to those seeking a tranquil lifestyle without sacrificing convenience.
The local area features outstanding primary schools and essential amenities, making it an excellent choice for families and first-time buyers. Don’t miss your chance to own this stunning home that combines comfort, security, and future potential—properties like this are in high demand!
2 bedroom terraced house for sale in Lichfield Road, Edial, Burntwood, WS7 — £270,000 • 2 bed • 1 bath • 560 ft²
Equestrian facility for sale in Lichfield Road, Edial, Burntwood, WS7 — £625,000 • 4 bed • 1 bath • 2013 ft²
3 bedroom detached house for sale in Ironstone Road, Burntwood, WS7 — £375,000 • 3 bed • 2 bath • 926 ft²
4 bedroom detached house for sale in Hanney Hay Road, Burntwood, WS7 — £475,000 • 4 bed • 2 bath • 1151 ft²
2 bedroom semi-detached house for sale in Pooles Way, Burntwood, WS7 — £325,000 • 2 bed • 1 bath • 1012 ft²
3 bedroom semi-detached house for sale in Warren Road, Burntwood, WS7 — £310,000 • 3 bed • 1 bath • 1031 ft²














































































































































