Charming period home with courtyards and rare town-centre parking.
Town-centre, sought-after address near Wymondham Abbey
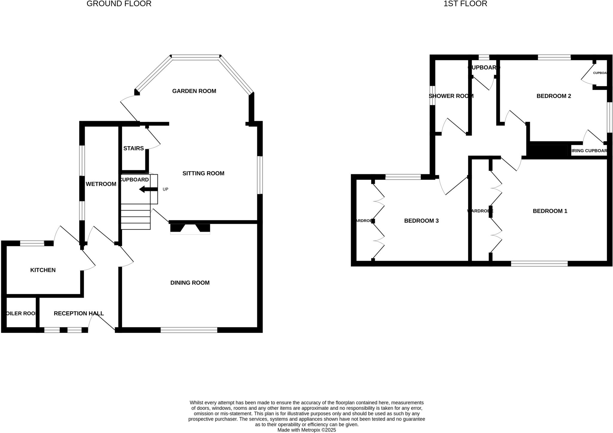
Three bedrooms with two bathrooms, including remodelled wet room
Private off-street parking plus three lock-up workshop stores
Two interconnected enclosed courtyards ideal for dining and planting
Character features: leaded windows, vaulted ceiling, exposed truss
Solid brick walls assumed uninsulated; energy upgrades likely needed
Glazing installed before 2002 — consider window/thermal improvements
Central heating present; fuel type referenced as both gas and oil, verify
Set on one of Wymondham’s most sought-after streets near the Abbey, this chain-free end-of-terrace cottage blends period character with practical modern touches. The accommodation is arranged over two floors and makes clever use of its compact footprint, with a garden/sitting room and two private courtyards that extend living outdoors. Three bedrooms and two bathrooms suit a young family or downsizer seeking town-centre convenience.
The house has been updated in parts: a recently remodelled wet room, a separate shower room, an efficient fitted kitchen and built-in storage throughout. There is an external car space plus three lock-up stores/workshops — a rare asset for a town-centre property and useful for bicycles, DIY or extra secure storage. The layout feels cosy rather than expansive, but vaulted ceilings and leaded windows add character and personality.
Buyers should note a few practical points: the property’s solid brick walls are assumed to lack cavity insulation and the glazing was installed before 2002, so energy-efficiency improvements may be needed. The listing contains mixed references to fuel type for the boiler, so confirm the heating fuel and recent service history. The plot and internal size are both modest, and the area records above-average crime, which some purchasers may want to investigate further.
Overall, this cottage will appeal to buyers prioritising town-centre location, period charm and easy outdoor space, while accepting a compact layout and scope for thermal upgrades or minor modernisation.
3 bedroom terraced house for sale in Damgate Street, Wymondham, NR18 — £375,000 • 3 bed • 1 bath • 1292 ft²
2 bedroom terraced house for sale in Avenue Road, Wymondham, Norfolk, NR18 — £190,000 • 2 bed • 1 bath • 747 ft²
3 bedroom house for sale in Cock Street, Wymondham, NR18 — £350,000 • 3 bed • 1 bath • 755 ft²
2 bedroom detached house for sale in The Nest, Leigh Close, Attleborough NR17 — £240,000 • 2 bed • 1 bath • 876 ft²
3 bedroom end of terrace house for sale in Pople Street, Wymondham, NR18 0PS, NR18 — £350,000 • 3 bed • 2 bath • 1200 ft²
2 bedroom end of terrace house for sale in White Horse Street, Wymondham, NR18 — £220,000 • 2 bed • 1 bath • 526 ft²


























































































































