Generous plot, garage and parking close to town amenities and transport.
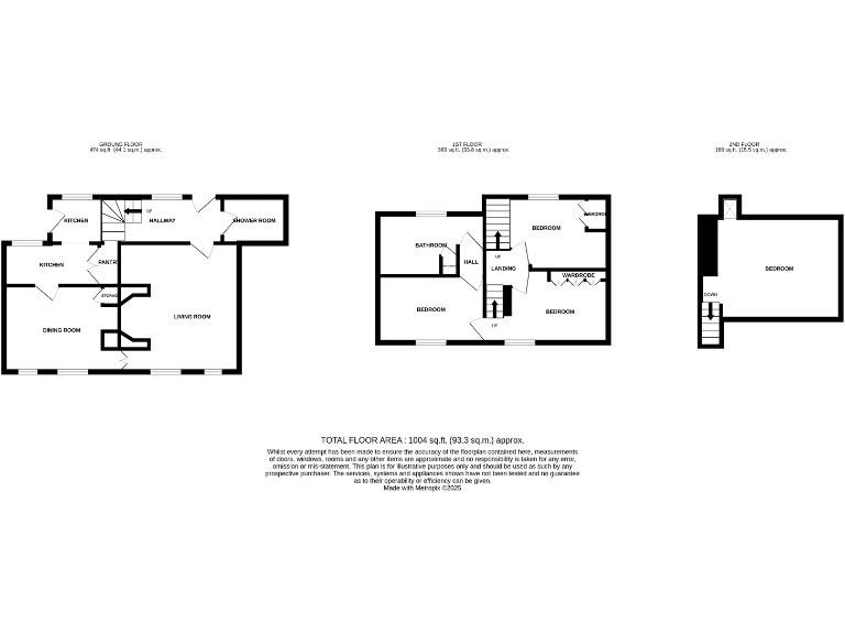
Approximately 1,200 sq ft of versatile period living space
This charming Georgian end-of-terrace cottage, dated 1797, sits within Wymondham town centre and offers around 1,200 sq ft of flexible living across multiple levels. Original features such as exposed beams and a restored inglenook fireplace create a warm, characterful reception space, while an attic room and dedicated pantry increase practical living and storage. The plot is notably generous for a town location, with a long rear garden, 22ft garage, garden shed and off-street parking.
The home is well placed for everyday life: short walks to shops, cafes, rail and bus links to Norwich and Cambridge, and a range of primary and secondary schools nearby (including several rated Outstanding). Modern conveniences include mains gas heating, boiler and radiators, and ultrafast FTTP broadband. Council Tax Band C and freehold tenure are additional practical benefits.
Buyers should be aware of several material considerations. The property has solid brick walls with no assumed cavity insulation, an EPC rating of D and some typical period maintenance needs; improvement works could increase energy efficiency. Part of the shower room extends beneath the neighbouring property (flying freehold), which may affect mortgage conditions for some lenders. The rear garden is bisected by a right of way for the adjacent house, and local crime statistics are above average — all factual points prospective purchasers should check independently.
For those who value period character and a substantial town-centre plot with parking and a garage, this cottage offers rare scope. It will particularly suit buyers looking to combine historic charm with sympathetic updating, or families seeking convenient access to Wymondham’s amenities and schools.
3 bedroom terraced house for sale in Pople Street, WYMONDHAM, Norfolk, NR18 — £230,000 • 3 bed • 1 bath • 831 ft²
3 bedroom terraced house for sale in Damgate Street, Wymondham, NR18 — £375,000 • 3 bed • 1 bath • 1292 ft²
3 bedroom house for sale in Cock Street, Wymondham, NR18 — £350,000 • 3 bed • 1 bath • 755 ft²
2 bedroom terraced house for sale in Avenue Road, Wymondham, Norfolk, NR18 — £190,000 • 2 bed • 1 bath • 747 ft²
4 bedroom semi-detached house for sale in Cock Street, Wymondham, NR18 — £425,000 • 4 bed • 2 bath • 1009 ft²
2 bedroom cottage for sale in Skipping Block Row, Wymondham, NR18 — £220,000 • 2 bed • 1 bath • 528 ft²










































































































