Bright renovated four-bedroom home with versatile living and generous gardens.
Four double bedrooms, including ground-floor bedroom with ensuite
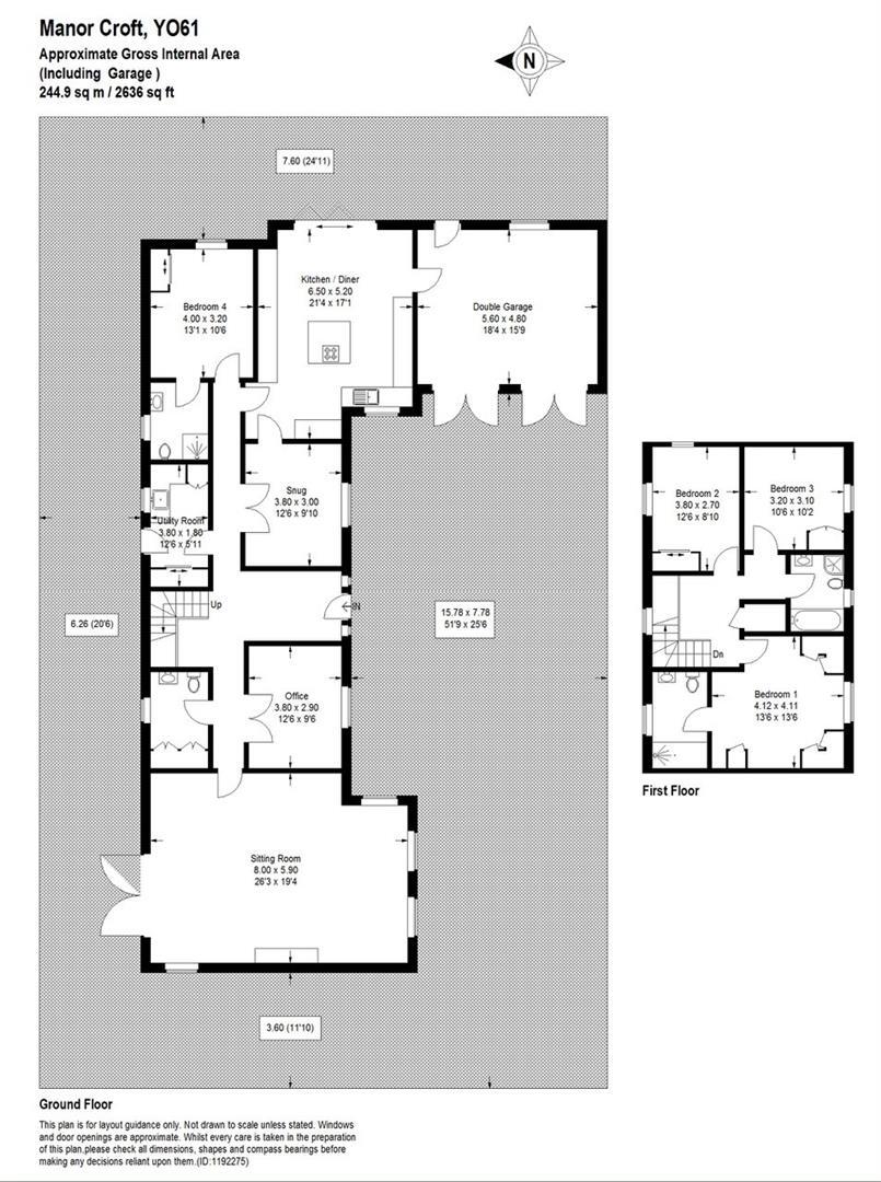
Manor Croft is a spacious, newly renovated detached home tailored for family life in the sought-after village of Tollerton. The house offers versatile living across generous reception rooms and an open-plan contemporary kitchen with bifold doors that connect seamlessly to paved terraces and landscaped gardens. A ground-floor double bedroom with ensuite provides convenient guest or multi-generational accommodation, while three further double bedrooms upstairs include a principal ensuite and fitted wardrobes.
The current owners have completed a high-quality update, with designer kitchen appliances and thoughtful joinery throughout. Practical benefits include a double garage with an electric charging point, ample off-street parking, a smart utility room and an aluminium greenhouse for keen gardeners. The property sits on a large plot with multiple outdoor seating areas and easy access to village amenities and highly regarded schools.
Buyers should note some material considerations: the house is of solid brick construction likely without cavity insulation, glazing install dates are unknown, and broadband speeds in the area are reported slow. There is a medium flood risk for the location and council tax is described as quite expensive. These factors should be considered alongside the immediate move-in readiness and high-spec presentation of the home.
Overall, Manor Croft will suit families seeking substantial, turn-key accommodation in a picturesque village setting who value indoor-outdoor living and high-quality finishes. Viewing is recommended to appreciate the scale, craftsmanship and the landscaped grounds.
4 bedroom detached house for sale in Ings View, Tollerton, YO61 — £532,250 • 4 bed • 2 bath • 2100 ft²
4 bedroom semi-detached house for sale in Newton Road, Tollerton, York, YO61 — £500,000 • 4 bed • 2 bath • 1504 ft²
4 bedroom detached house for sale in Pond View, Tollerton, York, YO61 — £580,000 • 4 bed • 2 bath • 1445 ft²
4 bedroom detached house for sale in Newton Road, Tollerton, YO61 — £525,000 • 4 bed • 3 bath • 1820 ft²
4 bedroom detached house for sale in Kine Croft, Tennis Court Lane, Tollerton, YO61 — £850,000 • 4 bed • 3 bath • 2600 ft²
4 bedroom house for sale in Hayrick House, Tennis Court Lane, Tollerton, YO61 — £799,950 • 4 bed • 3 bath • 2487 ft²


































































































