Practical family home with garage, garden and commuter links.
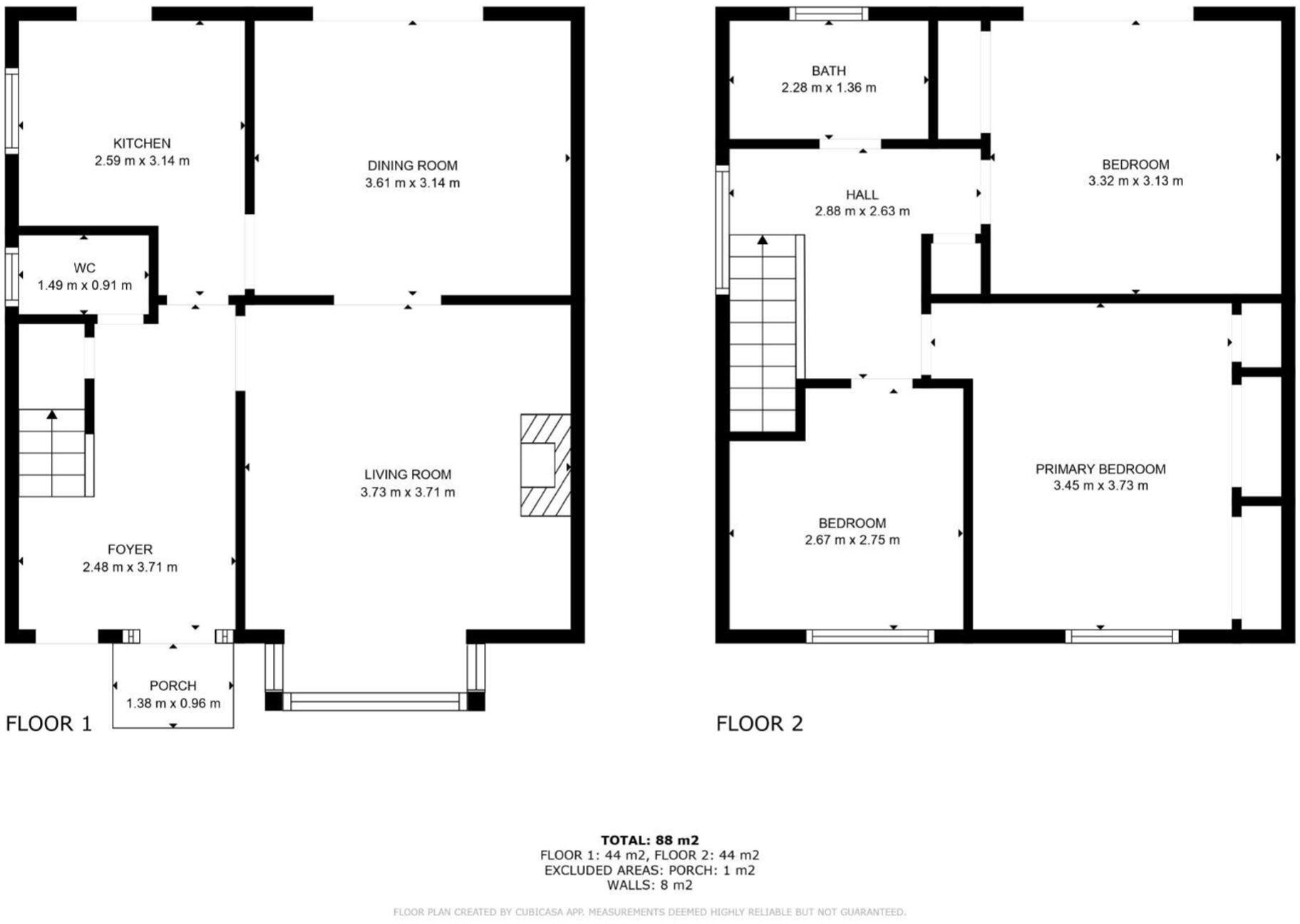
Three bedrooms and one family bathroom, about 958 sq ft
This three-bedroom semi-detached house on Brundall Crescent offers a practical family layout and usable outdoor space. The living room is naturally lit and the property includes a private garden, garage and driveway, useful for parking and storage. Broadband and mobile signal are reported strong, and the house is freehold with mains gas central heating.
Built in the 1930s–40s, the home has been updated in parts but retains post‑war construction characteristics: double glazing is in place though installation date is unknown, and cavity walls are assumed uninsulated. There is one family bathroom and approximately 958 sq ft of accommodation, suited to young families or downsizers seeking a manageable home with some improvement potential.
A drainage survey was undertaken in November 2022; no remedial work was carried out and no drainage problems have occurred since February 2024. The property sits in an area classed as very deprived with above-average crime levels, which buyers should weigh against the house’s practical benefits and commuter-friendly position with good transport links nearby.
Practical considerations: the EPC is rated D and the house may benefit from loft or cavity wall insulation and other targeted upgrades to improve energy efficiency and long-term running costs. The layout and garden provide scope for updating to suit modern family living.
3 bedroom semi-detached house for sale in Glyn Simon Close, Danescourt, Cardiff, CF5 — £300,000 • 3 bed • 1 bath • 728 ft²
4 bedroom semi-detached house for sale in Brundall Crescent, Culverhouse Cross, Cardiff, CF5 — £299,950 • 4 bed • 2 bath • 1284 ft²
3 bedroom semi-detached house for sale in Gough Road, Cardiff, CF5 — £225,000 • 3 bed • 1 bath • 786 ft²
3 bedroom semi-detached house for sale in Laureate Close, Llanrumney, Cardiff, CF3 — £270,000 • 3 bed • 1 bath
3 bedroom detached house for sale in James Court, St. Mellons, CF3 — £300,000 • 3 bed • 2 bath • 851 ft²
3 bedroom detached house for sale in Knightswell Close, Cardiff, CF5 4NA, CF5 — £300,000 • 3 bed • 2 bath • 954 ft²


















































































































































