Extended three-bed detached with home office and big garden, close to schools and transport..
Detached three-bedroom home on a large corner plot
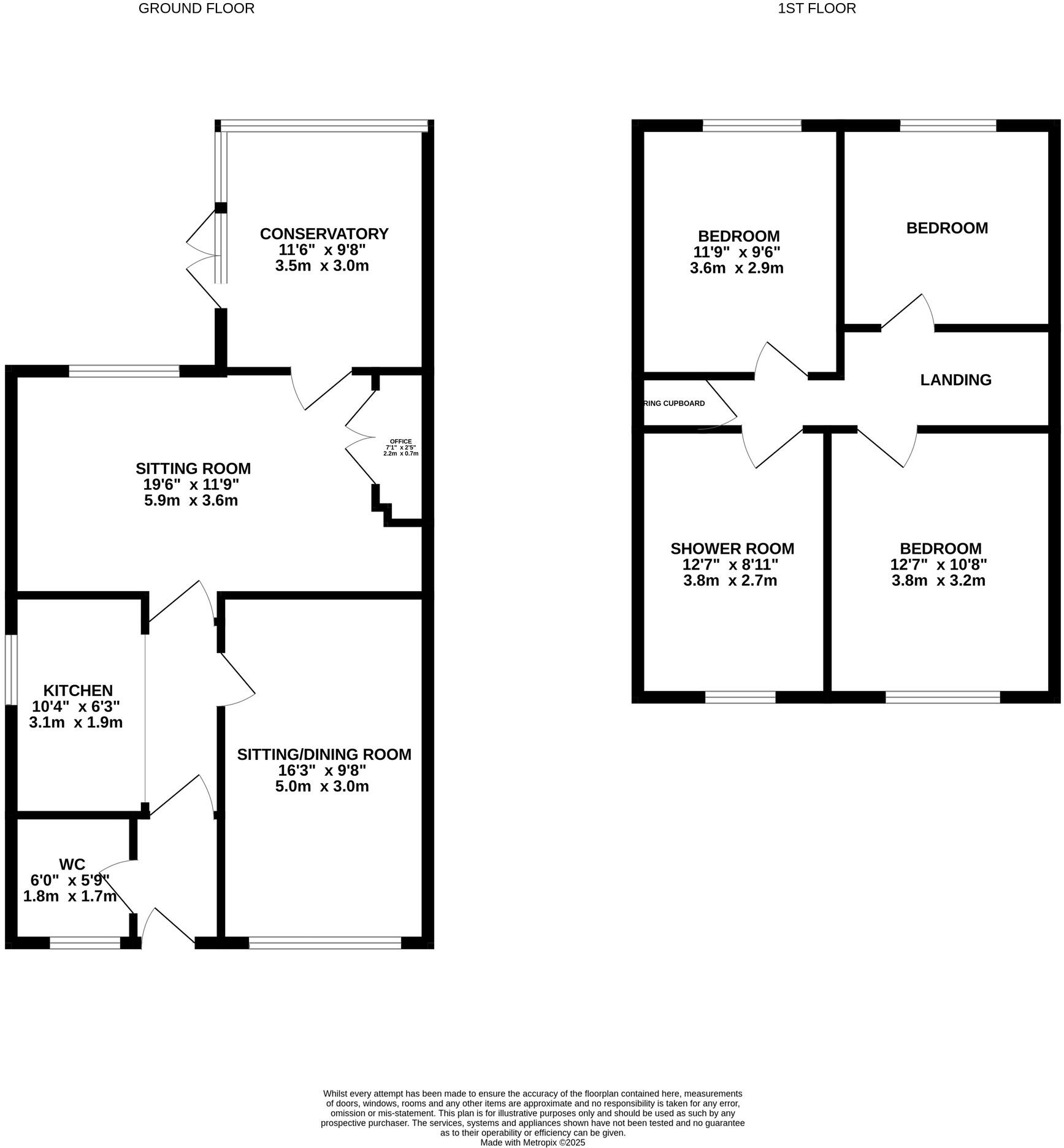
Set on a generous corner plot at the end of a quiet cul-de-sac, this three-bedroom detached house has been extended and newly renovated for modern family life. Flexible ground-floor living includes a conservatory and a bespoke-built home office, while a 2–3 car driveway and off-street parking make school runs and errands straightforward.
Practical upgrades include a 2018 Ideal 30kW combi boiler, uPVC double glazing, and a Hive smart thermostat. The enclosed low-maintenance garden with artificial lawn and patio offers secure outdoor space for children and pets, plus scope for further landscaping or expansion if desired. The property is freehold and offers around 954 sq ft of accommodation across multiple storeys.
Location is strong for families: quiet private development, nearby parks, shops, cafés, and good transport links to Cardiff Centre, the M4 and A4232. Nearby schools are within easy reach, supporting daily routines and after-school activities.
Notable practical points: the EPC is a D, and the area records above-average crime and high deprivation indices, which may affect perceived resale value. Council tax is band D. The house was built in the 1980s and, while recently refreshed, is average in size and may suit buyers seeking a ready-to-move-in family home rather than a large-scale project.
Overall, this property will suit families wanting an immediately usable, well-maintained detached home with generous outdoor space, a dedicated office and solid transport links — provided buyers are comfortable with the EPC rating and local area factors.
4 bedroom detached house for sale in Cae Bedw, Caerphilly, CF83 — £425,000 • 4 bed • 2 bath • 1217 ft²
4 bedroom detached house for sale in Gareth Close, Cardiff, CF14 — £435,000 • 4 bed • 1 bath • 1403 ft²
4 bedroom detached house for sale in Ffordd Cwellyn, Penylan, Cardiff, CF23 — £795,000 • 4 bed • 4 bath • 1998 ft²
3 bedroom detached house for sale in Coopers Place, Caerphilly, CF83 — £375,000 • 3 bed • 2 bath • 1119 ft²
3 bedroom semi-detached house for sale in Brundall Crescent, Cardiff, CF5 — £290,000 • 3 bed • 1 bath • 958 ft²
4 bedroom detached house for sale in Lauriston Close, Caerau, Cardiff CF5 5PT, CF5 — £315,000 • 4 bed • 3 bath • 1408 ft²






































































