Affordable shared ownership for first-time buyers near local schools and amenities.
Brand-new two-bedroom semi-detached home, energy-efficient design
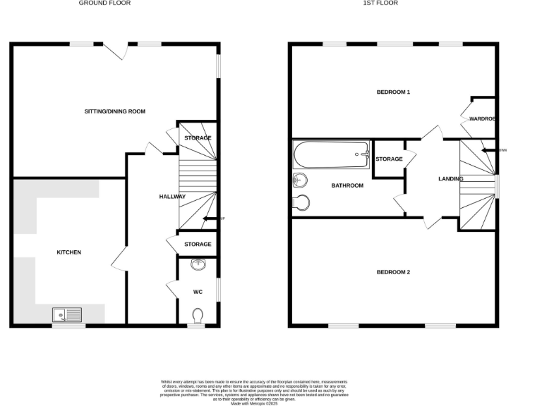
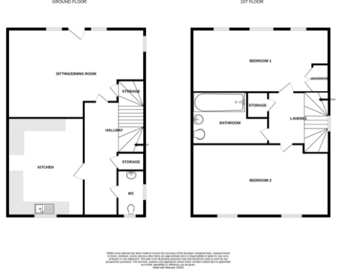
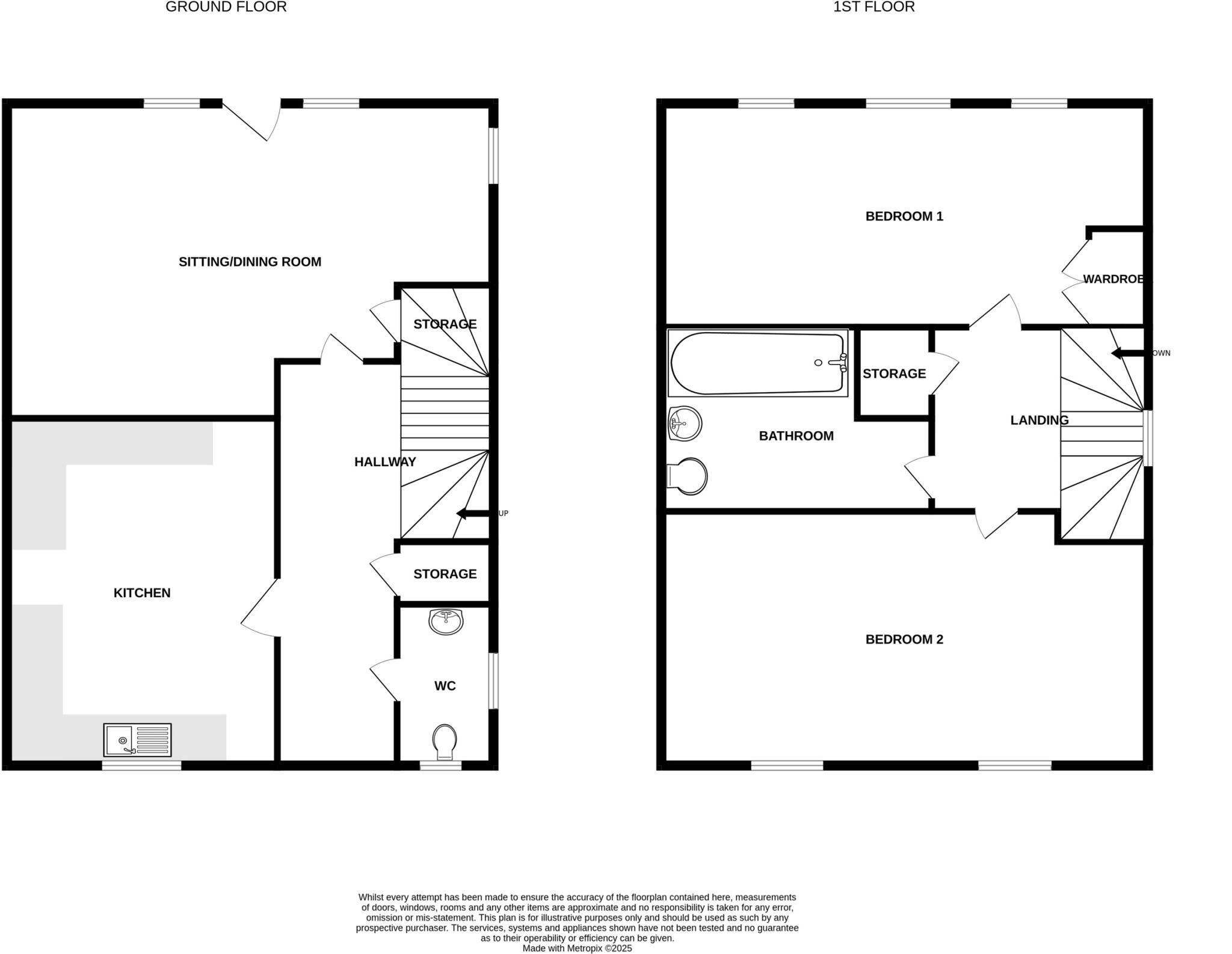
A brand-new two-bedroom semi-detached home offered through shared ownership, suited to first-time buyers seeking a modern, low-maintenance starter home. The house features a contemporary fitted kitchen, a spacious living/dining room and two well-proportioned bedrooms, arranged over approximately 665 sq ft. Outside there is an allocated off-street parking space and a private garden, with a long 990-year lease and no local flood risk.
The listing is for a 40% share priced at £102,000 (full market value £255,000). Other share options are available from 25% to 75%; the remaining equity is held by the landlord and carries a monthly rent (example for 60% rent: £350.63). A service charge applies (annual £738.24 / monthly £61.52), listed as below average.
This property will appeal to buyers wanting new-build finishes and secure tenure without the full purchase price. Important practical points: it is leasehold and sold via shared ownership, so purchasers should budget for ongoing rent and service charges and check eligibility and staircasing terms before committing. Overall, it offers a straightforward, energy-efficient starter home with clear running costs and long lease security.
2 bedroom semi-detached house for sale in Donegal Road, Thetford, Norfolk, IP24 — £102,000 • 2 bed • 1 bath • 665 ft²
3 bedroom semi-detached house for sale in Donegal Road, Thetford, Norfolk, IP24 — £116,000 • 3 bed • 1 bath • 724 ft²
2 bedroom semi-detached house for sale in Sails Way, Hadleigh, Ipswich, IP7 — £217,500 • 2 bed • 1 bath • 861 ft²
2 bedroom semi-detached house for sale in Sails Way, Hadleigh, Ipswich, IP7 — £145,000 • 2 bed • 1 bath • 861 ft²
2 bedroom semi-detached house for sale in Sails Way, Hadleigh, Ipswich, IP7 — £116,000 • 2 bed • 1 bath • 861 ft²
2 bedroom semi-detached house for sale in Maltings Meadow, Elmsett, Ipswich, IP7 — £124,000 • 2 bed • 1 bath • 368 ft²


































































