Short walk to station and schools, with a large garden and parking.
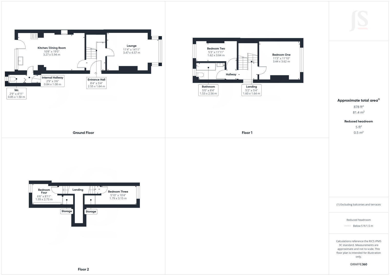
Four bedrooms across three floors, traditional layout
This well‑located four-bedroom semi-detached home sits within easy walking distance of Shoreham town centre and the mainline station, making daily commutes and local errands straightforward for families. The ground floor offers a separate south-facing lounge with a bay window and an open-plan kitchen/dining area that opens onto a long, private rear garden — ideal for children and outdoor entertaining. Off-street parking to the front adds practical convenience.
The house has genuine scope for improvement and will suit buyers prepared to renovate. It is offered freehold with mains gas central heating and double glazing, but the property requires updating in places and some modernisation throughout. Construction era cavity walls are presumed uninsulated, so buyers should budget for improving thermal efficiency and consider kitchen, bathroom and electrical upgrades to realise full value.
Internally the layout is traditional and practical: four bedrooms across three floors and a single family bathroom. The plot is a strong asset — a sizeable rear garden and useful external storage. With good local schools, low crime and fast broadband, the property is attractive to growing families or investors targeting rental demand once refurbished. Buyers seeking a move-in‑ready home should note the renovation requirement and single bathroom when deciding to view.
4 bedroom semi-detached house for sale in Kingston Lane, Shoreham by Sea, BN43 — £600,000 • 4 bed • 2 bath • 1236 ft²
3 bedroom semi-detached house for sale in Eastern Avenue, Shoreham-by-Sea, West Sussex, BN43 — £400,000 • 3 bed • 1 bath • 970 ft²
4 bedroom end of terrace house for sale in Victoria Road, Shoreham by Sea, BN43 — £700,000 • 4 bed • 2 bath • 1361 ft²
4 bedroom semi-detached house for sale in Adur Avenue, Shoreham-by-Sea, BN43 — £750,000 • 4 bed • 1 bath • 1492 ft²
4 bedroom end of terrace house for sale in Mile Oak Road, Southwick, BN42 — £425,000 • 4 bed • 2 bath • 1244 ft²
3 bedroom end of terrace house for sale in Old Shoreham Road, Shoreham-By-Sea, BN43 — £325,000 • 3 bed • 2 bath • 978 ft²














































