South‑facing private garden backing onto a nature reserve, minutes from stations.
Three double bedrooms with high ceilings and fitted wardrobes
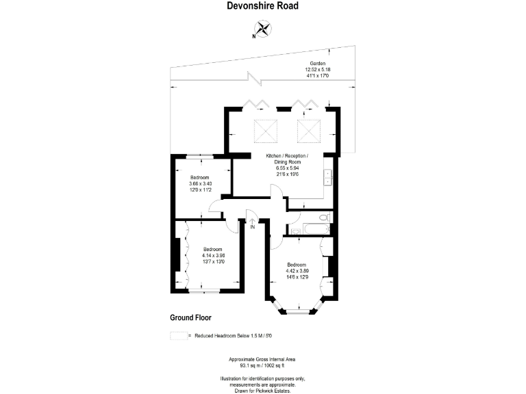
A beautifully renovated three-bedroom ground-floor apartment offering just over 1,000 sq ft of well-planned living space and a share of freehold. The open-plan kitchen/reception is the heart of the home, featuring skylights, bifold doors and a high-spec kitchen that opens directly onto a private south-easterly garden backing onto Devonshire Road Nature Reserve.
Well suited to families who need space and school choice, the layout places two large double bedrooms at the front with high ceilings and built-in wardrobes, and a third double bedroom overlooking the garden. The bathroom is contemporary and fully tiled. Practical extras include double glazing throughout, video entry and engineered parquet flooring across the living areas.
Positioned between Honor Oak Park and Forest Hill stations, the flat is a short walk to local cafés, shops and green spaces such as the Horniman Museum & Gardens. The long lease (c.990 years) and share of freehold reduce typical leasehold headaches, while the recent renovation means minimal immediate works are expected.
Note the property has a single bathroom serving three double bedrooms and occupies the entire ground floor, which may appeal to buyers preferring level access but could limit privacy between garden and front rooms. Overall this is a rare, roomy, period-home conversion combining contemporary finishes with strong outdoor space and excellent transport and school links.
3 bedroom flat for sale in Devonshire Road, Forest Hill, London, SE23 — £720,000 • 3 bed • 1 bath • 1014 ft²
3 bedroom maisonette for sale in Cranston Road, Forest Hill, SE23 — £750,000 • 3 bed • 2 bath • 1203 ft²
2 bedroom flat for sale in Devonshire Road, Honor Oak, SE23 — £495,000 • 2 bed • 1 bath • 951 ft²
2 bedroom ground floor flat for sale in 176 Devonshire Road, London, SE23 — £425,000 • 2 bed • 1 bath • 608 ft²
2 bedroom apartment for sale in Devonshire Road, London, SE23 — £575,000 • 2 bed • 2 bath • 800 ft²
2 bedroom flat for sale in Farren Road, London, SE23 — £500,000 • 2 bed • 1 bath • 850 ft²


















































