Spacious rural cottages with conversion upside and strong holiday-let history.
Two stone cottages providing generous combined accommodation
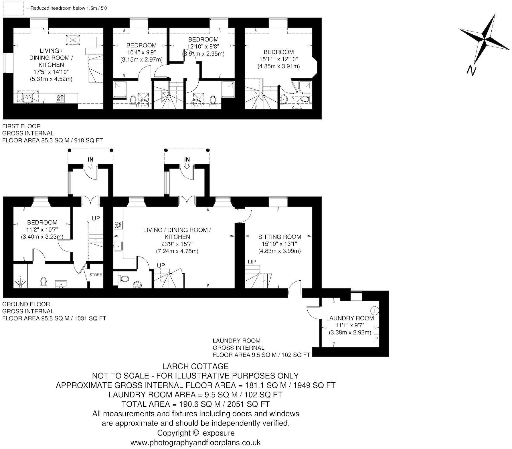
Two attached stone cottages in a scenic rural setting, offered as freehold and previously let successfully. The pair provide generous internal space across multiple floors with a combined footprint of about 2,051 sq ft, four bedrooms and four bathrooms, and a south-facing garden with open countryside and hill views.
The layout currently functions as two separate homes: Elm Cottage features a porch, sitting room, open-plan kitchen/dining/living room, separate WC and three first-floor bedrooms each with ensuites; Larch Cottage provides ground-floor bedroom with jack-and-jill ensuite, plus an open-plan kitchen/dining/living room on the first floor. There is off-street parking and a rear laundry/boiler room. Broadband is fast and mobile signal is excellent. EPC band C.
Key value drivers are the size, holiday-let history, scenic setting and clear conversion potential. The property could be retained as two income-producing cottages or, subject to obtaining necessary consents, altered into a single substantial family home — planning permission would be required for any structural change.
Material drawbacks: the site sits in an area classified as very deprived, which may affect local services and long-term demand. Any conversion to one dwelling requires formal consents. Council tax banding is unknown and should be confirmed. Buyers should carry out routine surveys and checks on services, planning history and any maintenance needs prior to offer.
3 bedroom semi-detached house for sale in Dallavon Cottages, Taybridge Road, Aberfeldy PH15 2BH, PH15 — £350,000 • 3 bed • 3 bath • 1688 ft²
2 bedroom detached bungalow for sale in Mill Brae Cottage, Mill Street, Aberfeldy, Perthshire, PH15 — £275,000 • 2 bed • 1 bath • 792 ft²
4 bedroom detached house for sale in Grandtully, Perth And Kinross, Perthshire, PH15 — £490,000 • 4 bed • 2 bath • 2249 ft²
1 bedroom cottage for sale in 7A Tom-na-moan Road, Pitlochry PH16 5HL, PH16 — £125,000 • 1 bed • 1 bath • 666 ft²
2 bedroom cottage for sale in 1 Farragon Cottages, Farragon Drive, Aberfeldy PH15 2BQ, PH15 — £210,000 • 2 bed • 1 bath • 664 ft²
5 bedroom detached house for sale in Brae of Cluny, Strathtay, Aberfeldy, PH15 — £600,000 • 5 bed • 2 bath • 2816 ft²






























































































