OX14 2JR - Land for sale in Radley/Kennington Border, OX14

View on Property Piper

Land for sale in Radley/Kennington Border, OX14

Summary - Radley/Kennington Border OX14 2JR

1 bed 1 bath Land

**Standout Features:**
- Large plot of land on the border of Radley and Kennington, OX14
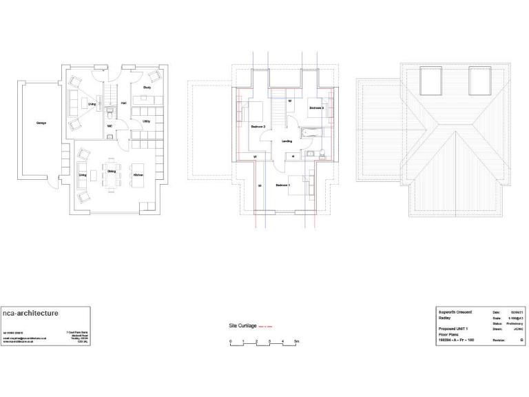
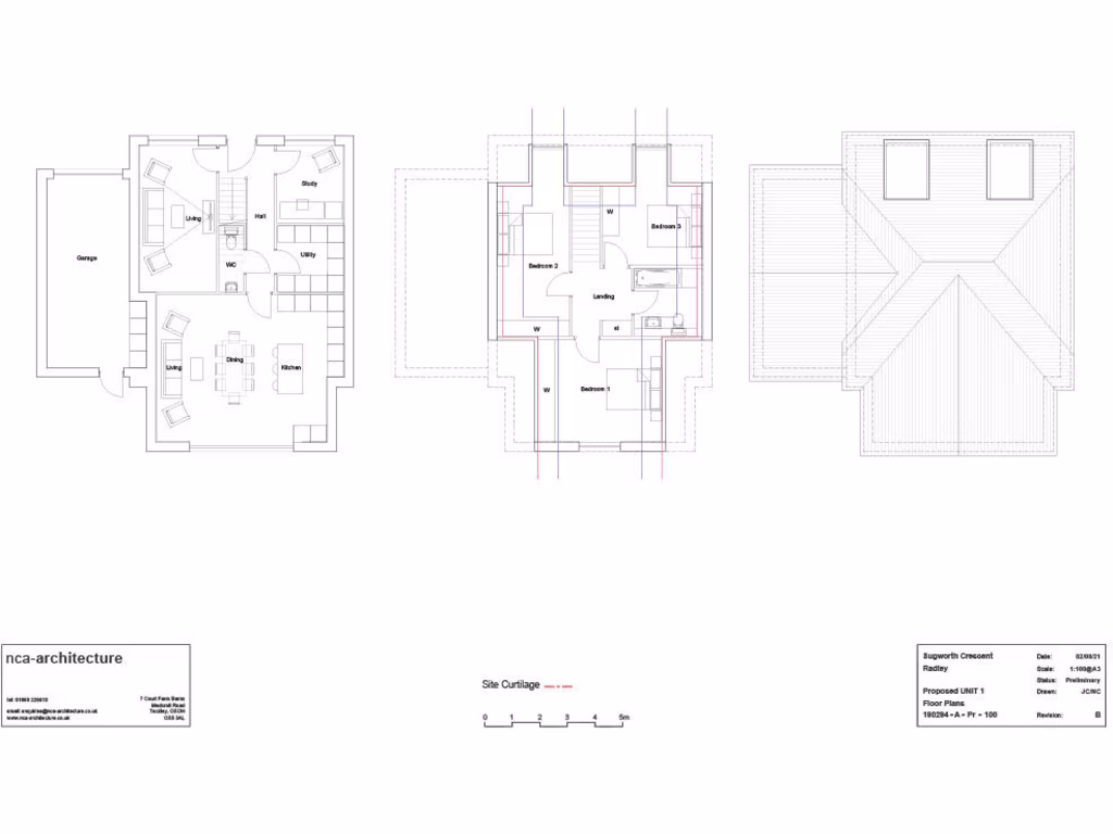
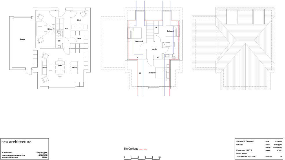
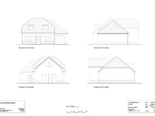
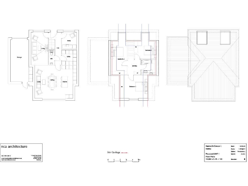
- Approved planning consent for a detached chalet house (P21/V3119/FUL)
- Mains water, drainage, gas, and electric services available on-site
- Foundations already laid and CIL payment made
- Garage included, along with good parking options
- Excellent bus route nearby, providing access to Oxford and Abingdon
- Low crime area and affluent neighborhood with fast broadband

**Summary:**
Seize the unique opportunity to develop this expansive plot on the Radley/Kennington border, already equipped with planning consent for a modern detached chalet house. The foundations are laid, and all essential services—mains water, drainage, gas, and electric—are available, providing a solid starting point for your dream home. This freehold land not only offers a secure investment but also convenience, as it sits on a good bus route with easy access to Oxford and Abingdon.

The surrounding area hosts a wealth of amenities such as shops, schools, and recreational facilities. Families will appreciate the excellent local schools, including Radley Church of England Primary and the esteemed Radley College, while investors will find strong rental potential. This generous plot in an affluent neighborhood, paired with low crime rates, presents a rare chance to build your ideal retreat in a desirable location. Don't miss out on the potential to create a tranquil family home in this thriving community; properties like this are seldom available for long!

Property Details

Image Descriptions

Floorplan Description

Rooms

Textual Property Features

Detected Visual Features

Nearby Schools

Nearest Bars And Restaurants

,,,,}

Nearest General Shops

,,}

Nearest Grocery shops

,,}

Nearest Supermarkets

,,}

Nearest Religious buildings

,,}

Nearest Medical buildings

,,,}

Nearest Leisure Facilities

,,,,}

Nearest Tourist attractions

,,}

Nearest Train stations

,,,,}

Nearest Bus stations and stops

,,,,}

Nearest Hotels

,,}

Tags

Local Market Stats

Similar Properties

Meta

High Res Images

Compatible Images

Low res Images

Thumbnails

Raw Images

High Res Floorplan Images

Compatible Floorplan Images

Low res Floorplan Images

FloorplanImages Thumbnail

Raw Floorplan Images