W12 0QS - 5 bed spacious corner townhouse in Hemlock Road, W12 0QS

View on Property Piper

5 bedroom end of terrace house for sale in Hemlock Road, Shepherd's Bush, W12

Summary - 39 HEMLOCK ROAD LONDON W12 0QS

5 bed 3 bath End of Terrace

Large garden and private parking ideal for growing families or rental investors.
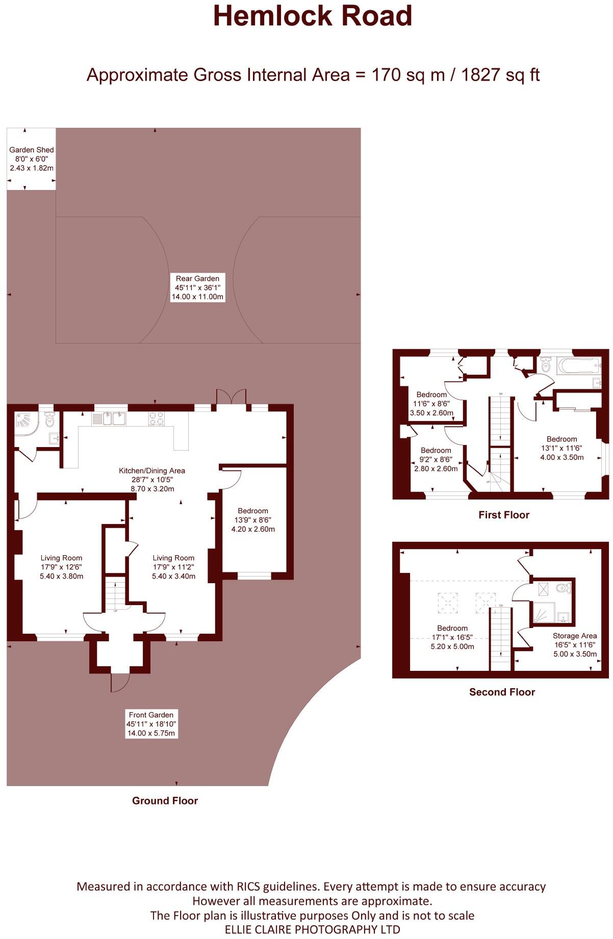
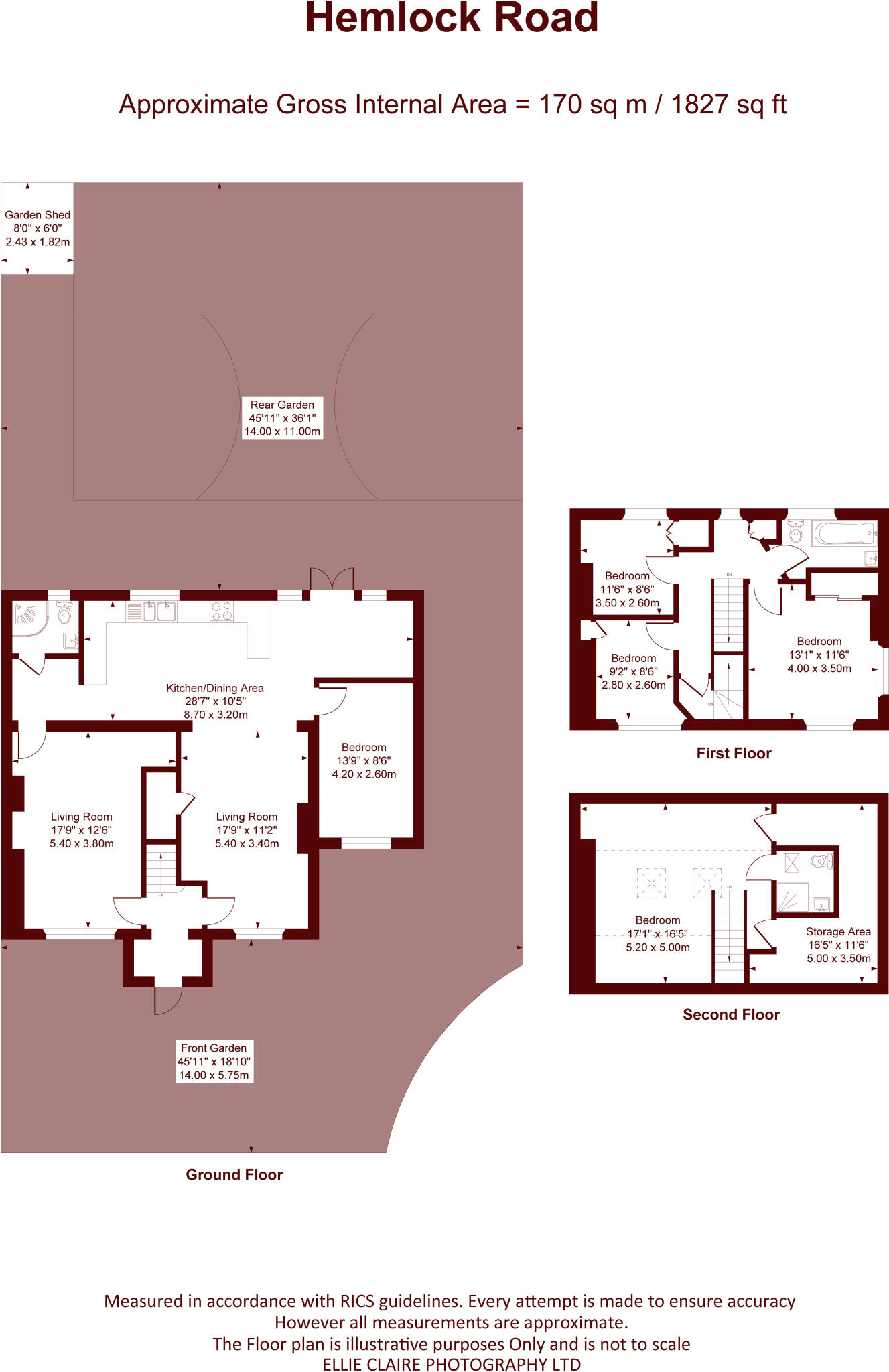
Five bedrooms and three bathrooms across two floors
Wrap-around garden on three sides, substantial outdoor space
Private driveway for two to three cars, off-street parking
Freehold and chain-free — straightforward purchase process
Double glazing fitted post-2002; gas boiler and radiators
Council Tax band E — above average local tax cost
Area recorded as very deprived — affordability with local challenges
Good broadband and excellent mobile signal, near Central line
This spacious five-bedroom end-of-terrace sits on a generous corner plot in Shepherd's Bush, offering flexible accommodation across two floors and plentiful outdoor space. The large garden wraps around three sides, creating room for children to play, entertaining, or further landscaping. A private driveway provides off-street parking for two to three cars — a rare local convenience.

Internally the house provides five bedrooms and three bathrooms, with reception, dining room and a contemporary-feeling kitchen with good natural light. The property is freehold and offered chain-free, making it straightforward for families seeking immediate move-in or investors wanting quicker turnaround. Modern double glazing was fitted post-2002 and the main heating is a gas boiler with radiators.

Buyers should note the wider area scores as very deprived; that brings both affordability and some local challenges. Council Tax is band E, above average for the borough. Although the house presents excellent potential and a strong footprint for reconfiguration or refurbishment, purchasers should inspect to confirm scope and any upgrade costs for finishes or services.

Well placed for local schools rated from Good to Outstanding and with fast broadband and excellent mobile signal, this property will suit growing families needing space and parking or investors seeking rental demand in an established urban neighbourhood. Transport links to Shepherds Bush and Acton are close by, including the Central line at East Acton for city access.

Property Details

Image Descriptions

Floorplan Description

Rooms

Textual Property Features

Target Audience

AI Tags

Detected Visual Features

EPC Details

Nearby Schools

Nearest Bars And Restaurants

,,,,}

Nearest General Shops

,,}

Nearest Grocery shops

,,}

Nearest Supermarkets

,,}

Nearest Religious buildings

,,}

Nearest Medical buildings

,,,}

Nearest Airports

,}

Nearest Leisure Facilities

,,,,}

Nearest Tourist attractions

,,}

Nearest Train stations

,,,,}

Nearest Bus stations and stops

,,,,}

Nearest Hotels

,,}

Tags

Local Market Stats

AirBnB Data

Similar Properties

Meta

High Res Images

Compatible Images

Low res Images

Thumbnails

Raw Images

High Res Floorplan Images

Compatible Floorplan Images

Low res Floorplan Images

FloorplanImages Thumbnail

Raw Floorplan Images