Spacious, renovated five-bedroom house near Clapham Common for modern family living.
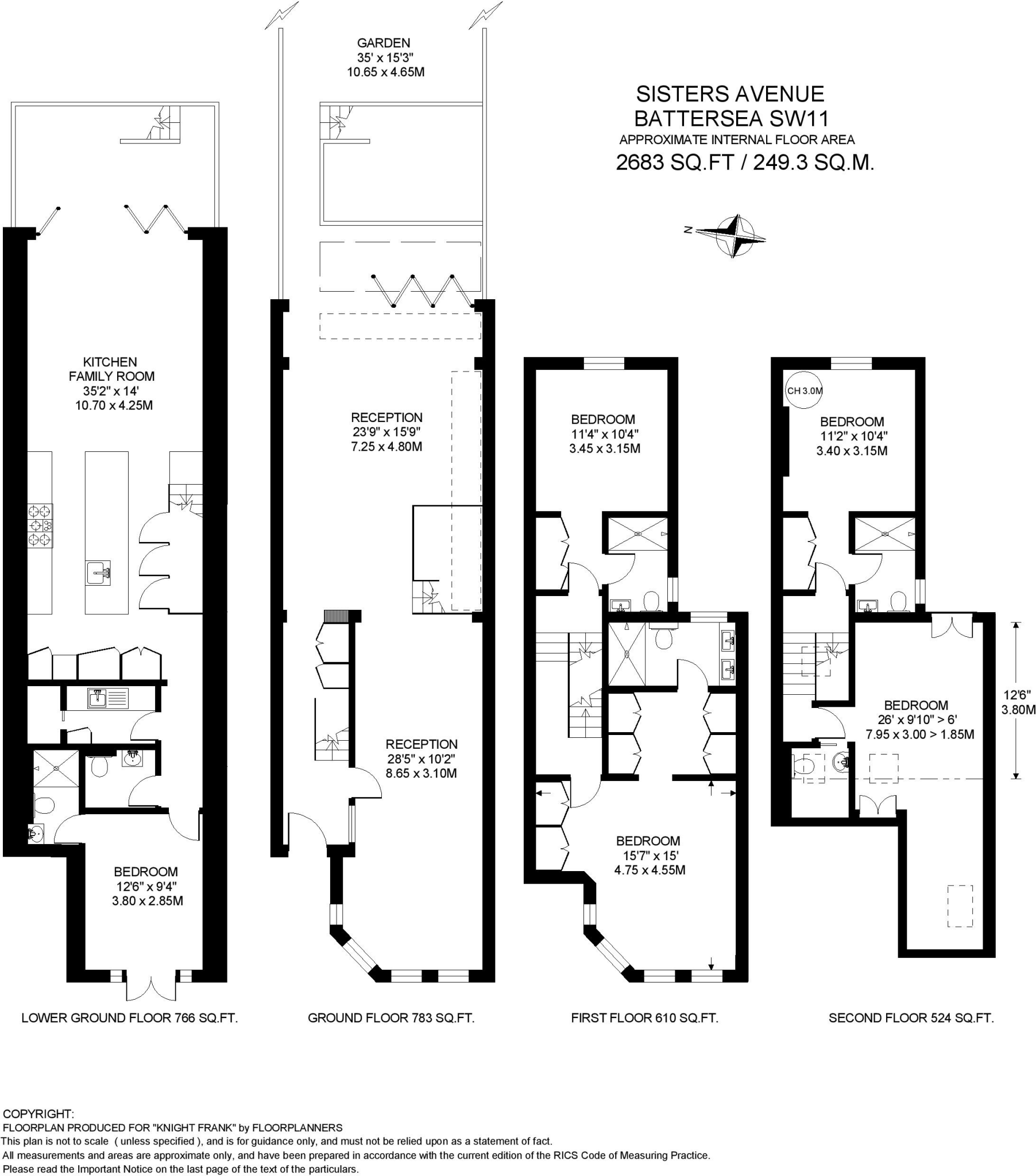
Substantial 2,683 sq ft family home across multiple floors
Lower-ground bespoke kitchen with Miele and Gaggenau appliances
Underfloor heating and engineered oak flooring throughout
Principal suite with dressing room and ensuite plus two more ensuites
Small plot with compact decked garden and paved patio
Built before 1900; solid brick walls, insulation may be limited (assumed)
Council tax level described as quite expensive
Average local crime; inner-city cosmopolitan location
Beautifully renovated and arranged over four floors, this five-bedroom Victorian terrace blends period proportions with contemporary finishes to suit a growing family. The lower-ground kitchen and family room is the social heart, with bespoke Miele and Gaggenau appliances, durable Neolith/Dekton surfaces and full-width bi-fold doors that open to a paved patio and decked garden. Underfloor heating and engineered oak floors run throughout for comfort and a consistent, modern aesthetic.
The home offers flexible living with two reception rooms on the ground floor, a principal suite with dressing room and ensuite on the first floor, and two double bedrooms plus an additional ensuite and WC on the top floor. There is generous built-in storage and practical spaces including a utility room and guest bedroom on the lower ground floor — useful for multi-generation living or home working.
Positioned on a quiet, tree-lined street moments from Clapham Common, the house sits in a very affluent area with excellent schools nearby and strong transport links via Clapham Junction and Clapham Common stations. Local shops, cafés and restaurants on Northcote Road and Clapham Old Town add everyday convenience and leisure options for family life.
Important considerations: the property occupies a relatively small plot with a compact garden and mid-terrace positioning, which limits outdoor space. Constructed before 1900 with solid brick walls, there may be limited cavity insulation (assumed), so buyers should consider future insulation or energy-improvement works. Council tax is described as quite expensive. Crime levels are average for the area.
5 bedroom terraced house for sale in Narbonne Avenue, London, SW4 — £2,895,000 • 5 bed • 4 bath • 2905 ft²
5 bedroom terraced house for sale in Broxash Road, London, SW11 — £1,890,000 • 5 bed • 3 bath • 2098 ft²
5 bedroom terraced house for sale in Altenburg Gardens, London, SW11 — £1,895,000 • 5 bed • 2 bath • 2245 ft²
3 bedroom terraced house for sale in Chatham Road, London, SW11 — £1,500,000 • 3 bed • 2 bath • 1520 ft²
4 bedroom end of terrace house for sale in Forthbridge Road, London, SW11 — £1,550,000 • 4 bed • 3 bath • 2214 ft²
4 bedroom semi-detached house for sale in Orbel Street, London, SW11 — £1,599,999 • 4 bed • 3 bath • 1669 ft²






















































































































































































































































