CW8 2TD - 3 bed hillview single level retreat in Waste Lane, CW8 2TD

View on Property Piper

3 bedroom detached house for sale in A one off characterful single level Cuddington home, CW8

Summary - 7 WASTE LANE CUDDINGTON NORTHWICH CW8 2TD

3 bed 2 bath Detached

Quiet, characterful single-level home with large garden and detached office/gym near village amenities.
Single-level detached home set on large, landscaped plot
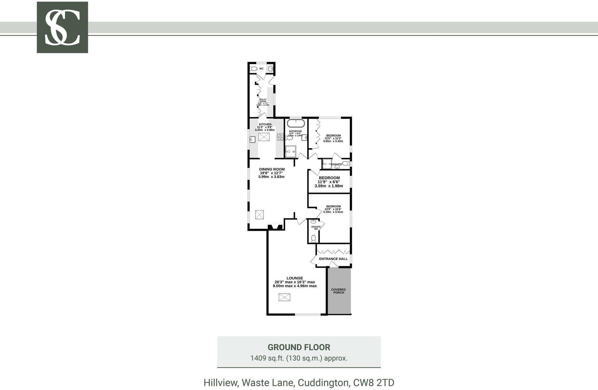
Set back on peaceful Waste Lane, Hillview is a one-off, single-level detached home blending character with contemporary living. Recently remodelled throughout, the house offers a high-spec open-plan living/dining kitchen with vaulted ceiling, an oak-framed picture window overlooking woodland and well-proportioned bedrooms — ideal for family life or downsizers seeking calm and convenience.

The plot is a major strength: a large, landscaped garden rising to a detached garden building currently used as a gym and home office, plus a widened driveway and detached garage providing secure parking and storage. Practical touches include generous built-in storage, a utility room, and scope to add an island in the kitchen.

Notable practical points: the property is solid-brick (likely uninsulated as built), broadband speeds in the area are very slow, and the house dates from the early 20th century. EPC is C. Buyers should note these matters and may wish to commission a survey to confirm insulation, services and any further improvement work. Overall, Hillview is a quietly appointed family home with strong outdoor space and excellent local walking routes.

Property Details

Image Descriptions

Floorplan Description

Rooms

Textual Property Features

Target Audience

AI Tags

Detected Visual Features

EPC Details

Nearby Schools

Nearest Bars And Restaurants

,,,,}

Nearest General Shops

,,}

Nearest Grocery shops

,,}

Nearest Supermarkets

,,}

Nearest Religious buildings

,,}

Nearest Medical buildings

,,,}

Nearest Airports

,}

Nearest Leisure Facilities

,,,,}

Nearest Tourist attractions

,,}

Nearest Train stations

,,,,}

Nearest Bus stations and stops

,,,,}

Nearest Hotels

,,}

Tags

Local Market Stats

AirBnB Data

Similar Properties

Meta

High Res Images

Compatible Images

Low res Images

Thumbnails

Raw Images

High Res Floorplan Images

Compatible Floorplan Images

Low res Floorplan Images

FloorplanImages Thumbnail

Raw Floorplan Images