**Standout Features:**
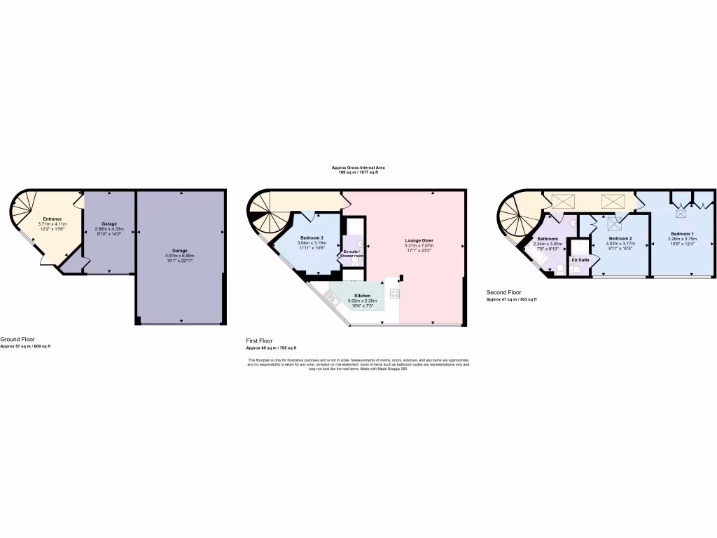
- Detached home with three double bedrooms and three bathrooms
- Spacious open-plan living area with vaulted kitchen
- Two garages (double and single), with single garage previously used as games room
- Close proximity to Poole Quay and Old Town
- No forward chain, ideal for quick move-in
**Potential Concerns:**
- High crime rate in the area
- Plot size is small and may limit outdoor space
- Requires standard maintenance
This impressive, contemporary detached house offers an abundance of space and a stunning location just moments from the historic Poole Quay and Old Town. With three spacious double bedrooms and three bathrooms arranged over two floors, including a desirable ensuite, this home is perfect for families, holiday retreats, or Airbnb investors.
The open-plan living space boasts vaulted ceilings and a glass-fronted design, flooding the home with natural light. Further enhancing the property's appeal are two garages—one double and one single—providing ample parking solutions and flexibility for additional entertaining space. The charming entrance leads up a spiral staircase, creating an inviting atmosphere for family gatherings.
Located in a vibrant area with excellent bus and train links, this home offers both comfort and convenience. Families will appreciate access to several highly-rated primary and secondary schools nearby, fostering an ideal environment for children. The allure of Poole Harbour, with its water sports enthusiasts and scenic walks, makes this an exclusive opportunity not to be missed. Act quickly, as this gem with no forward chain will attract swift interest!
3 bedroom terraced house for sale in Market Street, Poole, BH15 — £430,000 • 3 bed • 2 bath • 1012 ft²
4 bedroom town house for sale in Perry Gardens, Poole, BH15 — £390,000 • 4 bed • 1 bath • 1236 ft²
3 bedroom semi-detached house for sale in Emerson Close, Poole, Dorset, BH15 1QU, BH15 — £365,000 • 3 bed • 1 bath • 1259 ft²
4 bedroom semi-detached house for sale in Poplar Close, Poole, BH15 — £585,000 • 4 bed • 2 bath • 1475 ft²
3 bedroom house for sale in Poplar Close, Poole, BH15 — £549,000 • 3 bed • 2 bath • 1324 ft²
4 bedroom semi-detached house for sale in St. Aubyns Court, Poole, Dorset, BH15 — £415,000 • 4 bed • 2 bath • 1184 ft²


























































































