Three-bedroom home close to the marina ideal for families seeking coastal value.
- Classical Victorian bay window and high ceilings
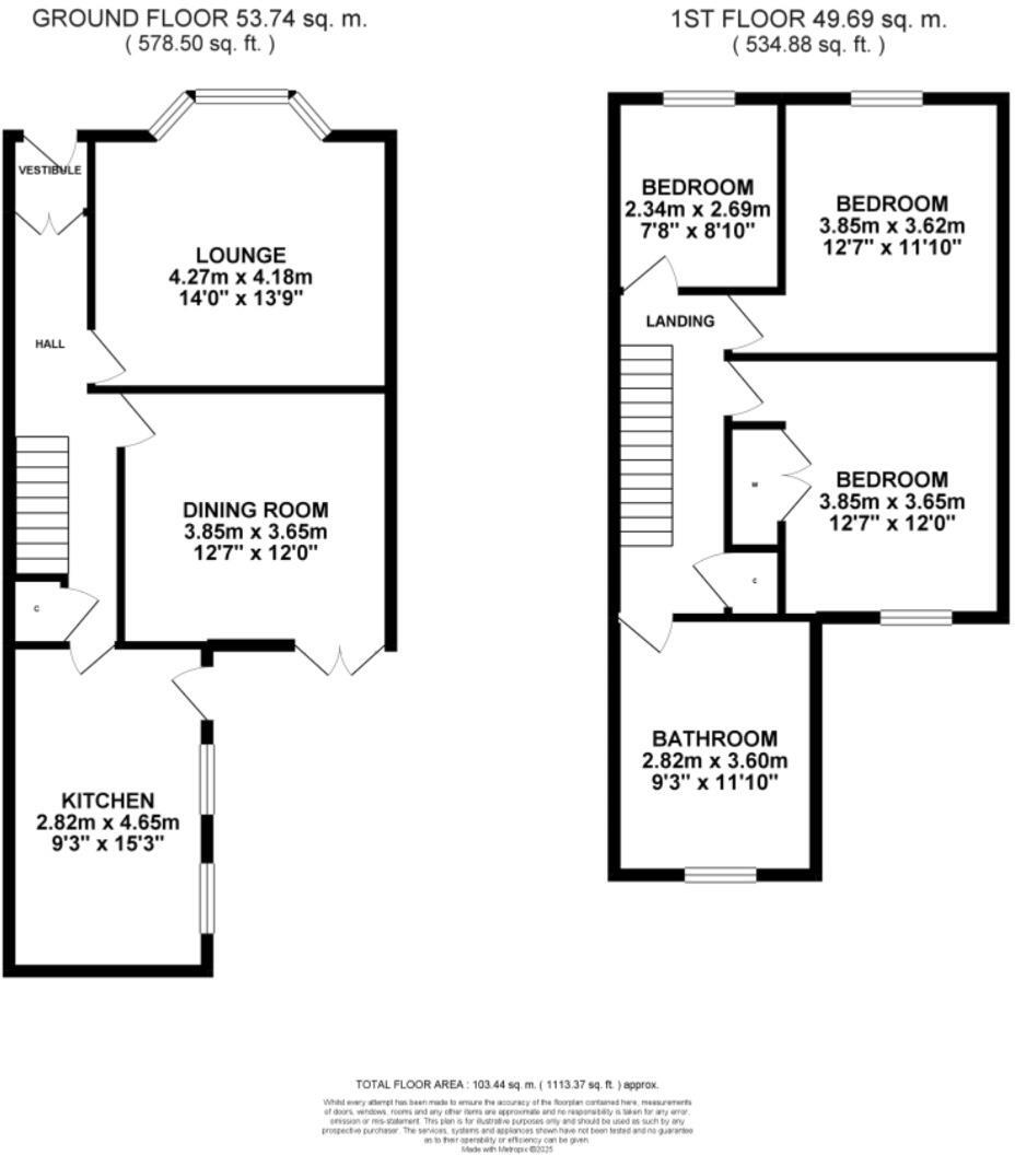
- Three bedrooms and one family bathroom (two-storey layout)
- Separate dining room plus modern-style kitchen
- Double glazing fitted since 2002 and mains gas heating
- Freehold with conventional mid-terrace footprint
- Small plot and limited garden/courtyard space
- Solid brick walls assumed without insulation — upgrade likely
- Local area: convenient amenities but higher crime and deprivation
Set a short walk from the marina and Crosby coastline, this mid-terrace Victorian house combines original period detail with practical living space. High ceilings, a bay-front reception and a feature fireplace give the front room character, while a separate dining room and modern-style kitchen provide family-friendly circulation on the ground floor.
The property offers three bedrooms and a single family bathroom across two floors — a conventional, efficient layout suited to young families or buyers seeking a rental opportunity. Double glazing and a gas-fired boiler with radiators are already in place, and the freehold tenure simplifies ownership.
Buyers should note the plot is a typical narrow urban terrace with a small front area and a modest rear/courtyard rather than expansive gardens. The building is solid-brick construction with no obvious wall insulation (assumed), so there is scope — and likely cost — for thermal improvements. The local area scores higher for deprivation and records above-average crime rates, though council tax is very low and transport, shops and schools are nearby.
This home will suit buyers who value period character and proximity to the coast and are prepared for modest updating to improve energy performance and outdoor space. An internal inspection will confirm room proportions and exact garden arrangement.
4 bedroom terraced house for sale in Blucher Street, Waterloo, L22 — £350,000 • 4 bed • 3 bath • 1099 ft²
3 bedroom terraced house for sale in Glendower Road, Waterloo, Liverpool, Liverpool, L22 — £230,000 • 3 bed • 1 bath • 1098 ft²
3 bedroom terraced house for sale in Glendower Road, Waterloo, Liverpool, L22 — £230,000 • 3 bed • 1 bath • 846 ft²
3 bedroom terraced house for sale in Handfield Road, Waterloo, L22 — £280,000 • 3 bed • 1 bath • 1329 ft²
4 bedroom terraced house for sale in Galloway Road, Liverpool, L22 4QX, L22 — £300,000 • 4 bed • 2 bath • 1389 ft²
4 bedroom terraced house for sale in Thorndale Road, Waterloo, L22 — £260,000 • 4 bed • 1 bath • 1324 ft²














































































































