N8 8HU - 3 bed crouch end garden flat in Hornsey And Wood Green, N8…

View on Property Piper

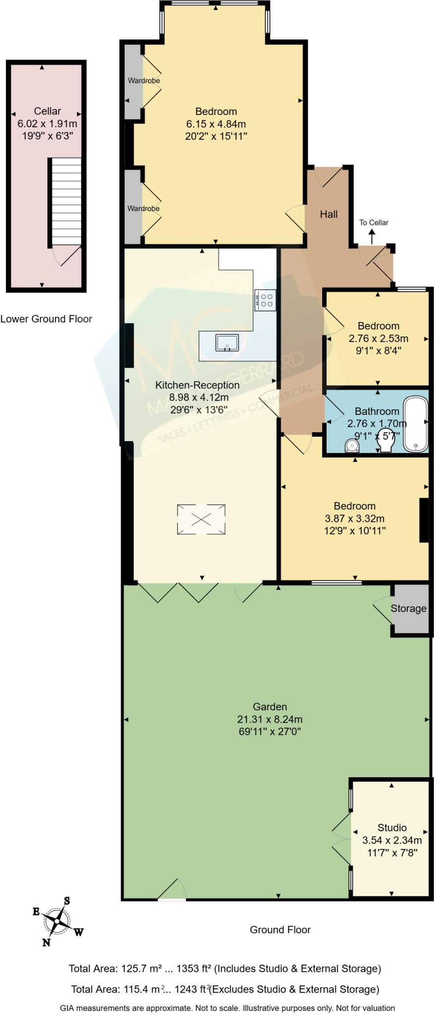
3 bedroom apartment for sale in Crouch Hall Road, London, N8

Summary - Crouch Hall Road, London, N8 N8 8HU

3 bed 1 bath Apartment

Spacious light-filled ground-floor flat with a long private garden and studio.
Three bedrooms, principal with bay window and fitted wardrobes
Extended rear open-plan kitchen/living with skylight and bi-fold doors
Private rear garden approximately 69ft with decked studio
Tastefully finished interiors; ready to move into
Leasehold: 244 years 7 months remaining
One bathroom only; compact-to-medium overall footprint
Solid brick construction (insulation not defined)
Council tax above average; broadband speeds average
Set on one of Crouch End’s most prestigious tree-lined streets, this three-bedroom ground-floor flat combines period character with contemporary living. A rear extension creates a generous open-plan kitchen/living space lit by a skylight and full-height bi-fold doors, delivering a seamless flow onto a deep, private 69ft garden and a decked studio — ideal for a home office or gym.

The principal bedroom benefits from a bay window and bespoke fitted wardrobes; interiors are tastefully finished throughout and the accommodation is ready to move into. The layout is compact-to-medium in footprint but well planned, with strong natural light and contemporary fixtures that suit family life or professional occupants seeking workspace at home.

Practical points to note: the property is leasehold with 244 years remaining and has one bathroom. Constructed before 1900 with solid brick walls (insulation not defined), and council tax is above average. Broadband speeds are average, but mobile signal is excellent and transport links — including nearby Highgate station and the local bus network — are convenient for central London access.

Property Details

Brochure Descriptions

Image Descriptions

Floorplan Description

Rooms

Textual Property Features

Target Audience

AI Tags

Detected Visual Features

EPC Details

Nearby Schools

Nearest Bars And Restaurants

,,,,}

Nearest General Shops

,,}

Nearest Grocery shops

,,}

Nearest Supermarkets

,,}

Nearest Religious buildings

,,}

Nearest Medical buildings

,,,}

Nearest Airports

,}

Nearest Leisure Facilities

,,,,}

Nearest Tourist attractions

,,}

Nearest Train stations

,,,,}

Nearest Bus stations and stops

,,,,}

Nearest Hotels

,,}

Tags

Local Market Stats

AirBnB Data

Similar Properties

Meta

High Res Images

Compatible Images

Low res Images

Thumbnails

Raw Images

High Res Floorplan Images

Compatible Floorplan Images

Low res Floorplan Images

FloorplanImages Thumbnail

Raw Floorplan Images