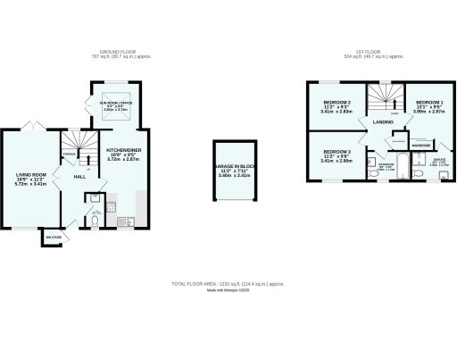
Three double bedrooms and three bathrooms, good family layout
This well-presented three-bedroom semi-detached house in Hidderley Park offers practical family living across multiple levels. The layout includes a generous kitchen/diner, separate living room and a sun room with a sky lantern that brightens the rear of the house and opens onto a well-kept garden.
Practical benefits include a garage, driveway parking and fast broadband, making the house suitable for home working and family life. The property is freehold and currently has one year remaining on an LABC warranty, giving short-term reassurance to a buyer but meaning longer-term cover will need consideration.
Location is suburban and convenient, with shops, bus links and several primary and secondary schools nearby. Buyers should note the local area is classified as more deprived and includes communities of social renters; nearby schools are mixed in performance, with some rated ‘Requires improvement’. The plot is modest in size, so outdoor space is manageable rather than expansive.
Overall this is a tidy, modern family home offering comfortable accommodation and good connectivity, best suited to buyers prioritising move-in readiness, local amenities and school access rather than large grounds or premium neighbourhood status.
3 bedroom semi-detached house for sale in Hidderley Park, Camborne, Cornwall, TR14 — £269,950 • 3 bed • 1 bath • 946 ft²
3 bedroom house for sale in Hidderley Park, Camborne - Well presented, TR14 — £285,000 • 3 bed • 2 bath • 870 ft²
3 bedroom semi-detached house for sale in Stannary Road, Camborne, Cornwall, TR14 — £260,000 • 3 bed • 2 bath • 801 ft²
3 bedroom semi-detached house for sale in Polgine Lane, Troon, Camborne, Cornwall, TR14 — £230,000 • 3 bed • 1 bath • 952 ft²
3 bedroom end of terrace house for sale in Helston, Cornwall, TR13 — £270,000 • 3 bed • 2 bath • 740 ft²
4 bedroom semi-detached house for sale in Willoughby Way, Connor Downs, Hayle, Cornwall, TR27 — £369,950 • 4 bed • 2 bath • 998 ft²


















































































































