Freehold 3-bed semi near hospital, park and transport — compact family starter with low running costs..
- Freehold three-bedroom semi-detached house
- Around 797 sq ft; small overall footprint and plot
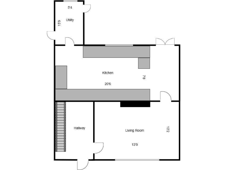
- Modern kitchen and separate utility; compact layout
- Single bathroom; family-sized but not ensuite
- EPC rating C; mains gas boiler and radiators
- 0.6 miles to Wythenshawe Hospital; 0.2 miles to Rodgers Park
- Very deprived local area / hampered neighbourhoods (affects resale)
- Council Tax Band A (low running costs)
Set back on a quiet Comrie Walk, this freehold three-bedroom semi-detached house offers a practical family layout and solid local links. The ground floor has a living room, a long kitchen/dining area with a modern fitted kitchen and separate utility, while three first-floor bedrooms and a single bathroom suit everyday family life. A small rear garden and front garden provide outdoor space without heavy maintenance.
Location is a clear strength: Rodgers Park is 0.2 miles away, Wythenshawe Hospital 0.6 miles, and Manchester Airport about 2.7 miles. Good bus and rail links give straightforward access to Manchester city centre. Broadband speeds are reported as fast and mobile signal is excellent — useful for home working and commuting.
The house dates from the mid-20th century with cavity wall construction and double glazing (install date unknown). It has mains gas central heating via boiler and radiators and an EPC rating of C. Council tax is band A, so running costs are relatively low.
Important considerations: the property sits in an area classed as very deprived / hampered neighbourhoods, which may affect resale or rental demand in the short term. The overall footprint is modest (circa 797 sq ft) and the plot is small — suitable for a small family or first-time buyer rather than those needing large living spaces. Fixtures, services and measurements have not been independently tested and should be checked at survey.
3 bedroom terraced house for sale in Piper Hill Avenue, Manchester, M22 — £280,000 • 3 bed • 1 bath • 533 ft²
3 bedroom house for sale in Roundthorn Road, Manchester, M23 — £265,000 • 3 bed • 1 bath • 925 ft²
3 bedroom terraced house for sale in Calcot Walk, Manchester, M23 — £250,000 • 3 bed • 1 bath • 899 ft²
3 bedroom house for sale in Birling Drive, Manchester, M23 — £265,000 • 3 bed • 1 bath • 696 ft²
3 bedroom house for sale in Oldwood Road, Manchester, Greater Manchester, M23 — £240,000 • 3 bed • 1 bath • 919 ft²
3 bedroom end of terrace house for sale in Aldfield Road, Manchester, Greater Manchester, M23 — £275,000 • 3 bed • 1 bath • 1129 ft²


















































































































