Extended home with conservatory and private garden ideal for first-time buyers.
Two double bedrooms on the first floor
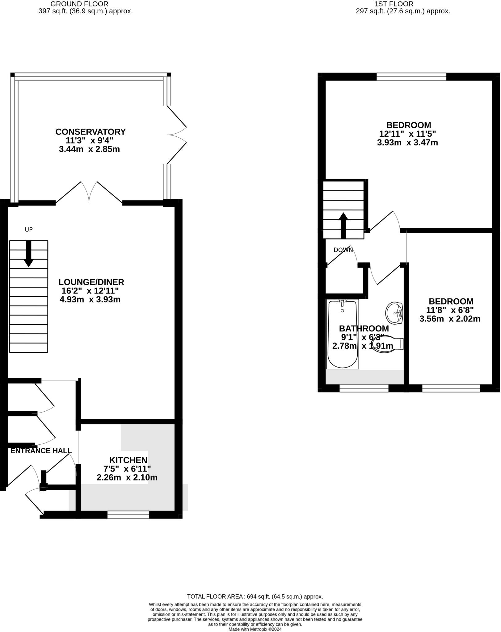
This extended two-double-bedroom end-of-terrace in Codicote offers practical, ready-to-use accommodation for a first-time buyer or young couple. The ground floor flows from a spacious living room into a fitted kitchen, with a conservatory adding useful extra reception space that looks over the private rear garden.
Upstairs are two good-sized double bedrooms and a family bathroom. The home has modern kitchen fittings, mains gas central heating with a boiler and radiators, and double glazing (install date unknown). The property sits on a small corner plot with a front garden, patio and lawn to the rear, and a driveway providing limited off-street parking; additional residents’ parking bays are nearby.
Set in a quiet, sought-after Codicote location, the house benefits from very low local crime, fast broadband and excellent nearby schools including an Outstanding primary. It is freehold, council tax is affordable, and there is no flood risk.
Considerations: the plot and overall internal size are modest (approximately 694 sq ft) and there is a single bathroom, which may feel restrictive for some households. The double glazing install date is unknown and, as with many homes of this era, there may be maintenance or improvement items to address over time.
Overall, this property offers a straightforward entry into village living with scope to personalise and add value, particularly for buyers prioritising location and sensible layout over large garden or extensive living space.
2 bedroom end of terrace house for sale in Valley Road, Codicote, Hitchin, SG4 — £350,000 • 2 bed • 1 bath • 689 ft²
3 bedroom end of terrace house for sale in Old School Close, Codicote, Hitchin, SG4 — £390,000 • 3 bed • 1 bath • 655 ft²
3 bedroom semi-detached house for sale in Valley Road, Codicote, Hertfordshire, SG4 — £435,000 • 3 bed • 2 bath • 950 ft²
2 bedroom semi-detached house for sale in High Street, Codicote, Hertfordshire, SG4 — £290,000 • 2 bed • 1 bath • 619 ft²
2 bedroom cottage for sale in New Town, Codicote, SG4 — £318,000 • 2 bed • 1 bath • 544 ft²
3 bedroom semi-detached house for sale in Grange Rise, Codicote, Hertfordshire, SG4 — £500,000 • 3 bed • 1 bath • 839 ft²














































