S42 6RW - 4 bedroom link detached house for sale in Heathfield Close,…

View on Property Piper

4 bedroom link detached house for sale in Heathfield Close, Wingerworth, S42

Summary - 17 HEATHFIELD CLOSE WINGERWORTH CHESTERFIELD S42 6RW

4 bed 1 bath Link Detached House

**Standout Features:**
- Four-bedroom link detached house
- Stunning open-plan kitchen/dining/living space
- Modern fitted kitchen with integrated appliances
- Inviting conservatory with solid roof
- Enclosed rear garden with lawn and patio
- Off-street parking at the front
- Low-maintenance garden, ideal for families
- Located in a quiet cul-de-sac

This beautifully presented four-bedroom family home offers modern elegance and comfort, perfect for family living. The highlight is the expansive open-plan kitchen, dining, and living area, ideal for entertaining and creating treasured moments. A stylish conservatory invites you to relax while enjoying views of your lovely enclosed garden, framed by a neatly manicured lawn and patio space for outdoor dining.

The property's features extend to a chic modern bathroom and a convenient downstairs W.C., ensuring ease for daily routines. With off-street parking and a peaceful setting in a quiet cul-de-sac, enjoy both tranquility and practicality in your new home.

Located in the desirable area of Wingerworth, families will appreciate access to beautiful green spaces like the Avenue Country Park, alongside reputable schools and vibrant local amenities within walking distance. Affordable maintenance and a very low crime rate make this home perfect for young families or first-time buyers looking for community charm.

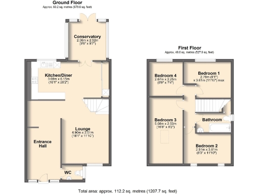
With an excellent energy rating of C and a total area of 1,206 square feet, this freehold property is a unique opportunity not to be missed. Seize the moment—properties in this sought-after area won't last long!

Property Details

Image Descriptions

Floorplan Description

Rooms

Textual Property Features

Detected Visual Features

EPC Details

Nearby Schools

Nearest Bars And Restaurants

,,,,}

Nearest General Shops

,,}

Nearest Grocery shops

,,}

Nearest Supermarkets

,,}

Nearest Religious buildings

,,}

Nearest Medical buildings

,,,}

Nearest Leisure Facilities

,,,,}

Nearest Tourist attractions

,,}

Nearest Train stations

,,,,}

Nearest Bus stations and stops

,,,,}

Nearest Hotels

,,}

Tags

Local Market Stats

AirBnB Data

Similar Properties

Meta

High Res Images

Compatible Images

Low res Images

Thumbnails

Raw Images

High Res Floorplan Images

Compatible Floorplan Images

Low res Floorplan Images

FloorplanImages Thumbnail

Raw Floorplan Images