Four double bedrooms, double garage, and low-maintenance gardens in sought-after Wingerworth.
Four double bedrooms providing flexible family accommodation
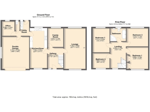
Set on a large plot in sought-after Wingerworth, this four-double-bedroom detached home suits growing families who need space and flexibility. The dual-aspect lounge with a log-burning stove and the open-plan kitchen/diner create generous day-to-day living and entertaining space, while a separate family room and home office support hobbies and remote working.
Practicality is strong: a utility room, downstairs WC, ample off-street parking and a double garage with electric door make family life easier. The enclosed, low-maintenance rear and side gardens provide private outdoor space without heavy upkeep. Constructed in the early 1990s with double glazing and gas central heating, the house sits in a very low-crime, affluent area with excellent mobile and broadband connectivity.
Buyers should note there is a single family bathroom serving four double bedrooms, which may prompt consideration for an additional shower room or en-suite in the future. Tenure details are not confirmed in the supplied information; interested buyers should verify tenure and the EPC rating (listed as D) during due diligence.
Local amenities, green spaces such as Avenue Country Park and Bluebell Woods, and highly regarded schools are nearby, making this a practical family choice in a well-connected village setting. The property offers comfortable, move-in-ready accommodation with scope for modest updating to personalise and add value.
4 bedroom detached house for sale in Joseph Fletcher Drive, Wingerworth, Chesterfield, S42 — £430,000 • 4 bed • 2 bath • 1229 ft²
4 bedroom detached house for sale in Burton Street, Wingerworth, S42 — £275,000 • 4 bed • 2 bath • 1207 ft²
3 bedroom detached house for sale in Deerlands Road, Wingerworth, S42 — £375,000 • 3 bed • 2 bath • 990 ft²
4 bedroom bungalow for sale in Birkin Lane, Wingerworth, S42 — £575,000 • 4 bed • 3 bath • 1708 ft²
4 bedroom detached bungalow for sale in Hayfield Close, Wingerworth, S42 — £650,000 • 4 bed • 2 bath • 2707 ft²
3 bedroom detached house for sale in Davids Drive, CHESTERFIELD, Derbyshire, S42 — £355,000 • 3 bed • 1 bath • 1070 ft²


















































































































































